MCA atelier, s.r.o. - Revitalizace Masarykova náměstí v Jihlavě
Návrh akcentuje a posiluje hlavní hodnotu náměstí, s počátky v založení města, kterou je silná prostorová a významová hierarchie. Ta je dnes oslabena, místy setřena a nevyužita. Hierarchie je založena na protínání příčných os v západovýchodním směru, které jsou hlavními komunikačními propojeními a sledují vrstevnice a podélné osy v severojižním směru, která jde po spádnici svahu a tvoří hlavní výhledovou osu.
V příčných západovýchodních osách návrh otevírá pohledové segmenty (rozestoupením stromů, uvolněním nároží ulic apod.), které podporuje novým členěním plochy a umístěním drobných objektů stejně jako otevřením a směrováním přízemních prostorů upraveného Špalíčku. V podélné ose posiluje sestupný, prostupný a průhledný charakter náměstí – sestupné hlediště.
Makro – mezo – mikro měřítko
Návrh vytváří jednotný charakter náměstí jako celku, který ale zároveň poskytuje přiměřenou míru detailu, důležitou pro kvalitu obývání místa.
Makro měřítko
Cílem je posílení charakteru náměstí jako čitelně jednotného celku. Nástrojem je zapojení obvodové fronty domů – funkčně (partery) i významově (pohledy). Použití jednotných principů pro mezo a mikro měřítko. Náměstí výhledů a dějových situací, komponovaných významově, morfologicky, prostorově.
Mezo měřítko
Mezi makroměřítkem (vymezení náměstí hmotou domů) a mikroměřítkem (stromy, drobné objekty) dnes schází přechodové střední měřítko, důležité pro jejich vzájemnou komunikaci. A také pro uživatele - pro orientaci a pocit přiměřenosti. Nástrojem k vytvoření mezoměřítka prostoru je členění náměstí na 3 pole. Ztvárnění rozhraní je velmi jemné, nekontrastní. Vychází z významové a prostorové logiky založené historií. Každé pole může být v různých situacích samostatnou scénou i hledištěm. Orientace členění posiluje směřování významových pohledů, zejména k vertikálním dominantám na východní straně. Každá část tvoří prostor, který je pokojem města s vlastním detailem – mikroměřítkem.
Západní - profánní pobytová strana je posílena zdvojenou alejí s kavárnami a tvoří pobytovou páteř náměstí. Protilehlá východní strana je oživena pobytovými místy skupin stromů, do kterých jsou orientovány i nově otevřené partery upraveného Špalíčku.
Mikro měřítko
V mikroměřítku je cílem vytvoření pobytového, uživatelsky přívětivého a dotýkatelného detailu. Každé pole – pokoj – má svůj pevný prvek (Mariánský sloup, kašny) s charakteristickou podlahou - utkaným kobercem z dlažeb ukrývajících vzor průpletu tkalcovských osnov. (Jihlava bylo město tkalců). Každé pole doplněno pobytovou skupinou stromů, kde lze spočinout ve stínu korun v krajině města, s vodním prvkem či pítkem v rovině dlažby. Uvnitř pobytových skupin jsou pobytové hrany – lóže s výhledem na scénu krajiny města s viditelným přesahem do krajiny Moravy.
Struny širšího města
Všechny úpravy náměstí jsou navrženy s vědomím jejich role v širších vztazích vyšší prostorové koncepce města. Jsou kontrolovány konceptem „Strun města“, propojujících společné charaktery města vně i uvnitř řešené oblasti.
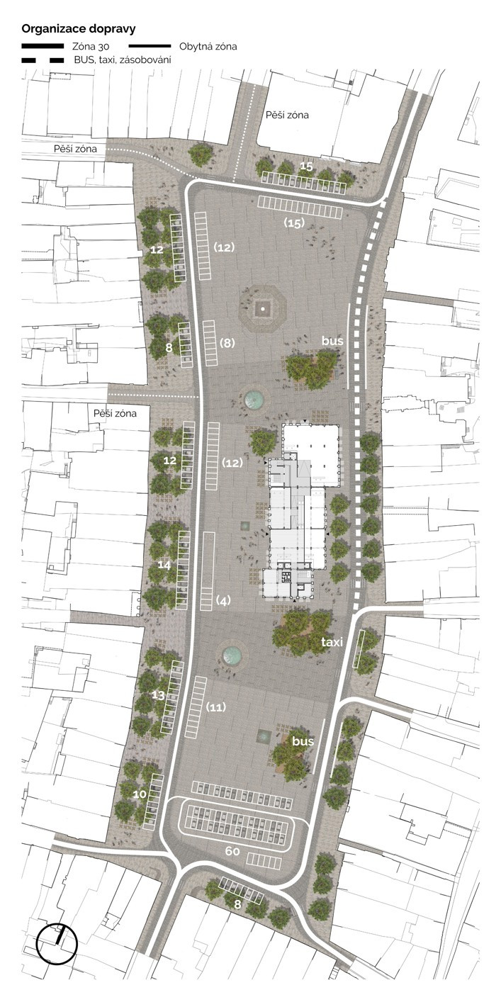
Doprava
Dopravní zatížení v severojižním směru je tlumeno a rozděleno na pomalejší obvodové komunikace (Zóna 30, nebo obytná zóna). Západní linie obsluhuje partery domů, východní odkloněná linie slouží primárně pro městskou hromadnou dopravu. Napravuje se tak situace, kde vedení cest je reliktem náměstí průjezdného hlavním tahem dopravy. Doprava v klidu je pravidelně rozptýlena v rámci celé plochy. Variabilita parkování při západní straně umožňuje pohodlnou obsluhu středu náměstí v době trhů.
Zeleň
Návrh předpokládá kompoziční uchování stávajících alejí a jejich doplnění novými. Stromy ve stávajících alejích, které jsou už věkově za zenitem a projevují se u nich choroby a poškození kmenů, budou postupně a dlouhodobě nahrazovány novými. Dále je navrženo dosazení nových pobytových stromových skupin. Stávající stromy zakrývající dnes Mariánský sloup, budou ponechány do doby zapěstování stromů v nových pobytových skupinách. V rámci rekonstrukce by mělo dojít ke zvýšení druhové pestrosti stromů. Dosadby jsou voleny tak, aby zajišťovaly lepší stabilitu prostředí s ohledem na měnící se klima. Solitéry se středními korunami by měly být přiměřené měřítku historického centra.
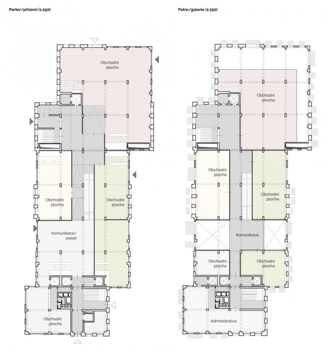
Špalíček
Cílem je synergické zapojení domu do náměstí- prostorově i dějově. Dnes dům nekomunikuje s okolním prostorem vizuálně ani uživatelsky, nenavazuje terénně na podlahu náměstí. Rampa do podzemí vytváří bariéru.
Měřítko, rytmus, materialita
Upravené členění odpovídá jak měřítku parcelace, tak detailu stávajících objektů. Plášť domu je taktován v rytmu a měřítku místa, dostává individuální tvář, charakter, výraz, informaci.
Terén, odstranění bariér, otevřenost parteru
Východiskem úprav je morfologie terénu náměstí. Upravujeme vstupní úroveň domu tak, aby usedl přirozeně do terénu náměstí a mohl s ním i komunikovat po celém obvodu na pobytovém rozhraní. Přízemní prostory se otevírají a propojují s náměstím. Rušíme rampy a příkopy, zásobujeme dům stolovými nákladními výtahy v chodníku. V suterénu tak přibývá prostor pro další obchod a zázemí komplexu obchodního domu.Dům komunikuje vizuálně s kontextem historického místa a doby. Zároveň uživatelsky - otevřením parterů do náměstí
Zapojení do hierarchie pohledů, pobytu a pohybu náměstí
Dům je ostrovem s vlastní morfologií, která členěním navazuje na morfologii náměstí. Na platformě hran střech vznikají příležitosti dalších pobytových rovin s výhledy do krajiny vně a uvnitř města.
- Autoři: Miroslav Cikán, Pavla Melková, Radek Novotný
- Ateliér: MCA atelier
- Spolupráce: Jiří Opl
- Země: Česká republika
- Město: Jihlava
- Ulice, číslo: Masarykovo náměstí
- Datum projektu: 2018
- Spoluautor dopravního řešení: Ing. Jan Špilar
Související projekty
Související architekti
Související ateliéry a firmy
Mohlo by vás zajímat