OTA ateliér - Pivovar Kamenice nad Lipou

Kamenický pivovar je spolu se zámkem zásadní dominantou městského centra již od poloviny 19. století. Od svého uzavření po druhé světové válce sloužila stavba jako sklad zeleniny a původní velkorysé prostory byly dodatečně rozděleny a přepatrovány. Návrh obnovy tak měl tři zásadní roviny. Očistit hodnotné části stavby od necitlivých přestaveb, navrhnout efektivní provozní řešení výrobních prostor a nových funkcí a doplnit stavbě soudobý architektonický výraz, adekvátní novému využití.
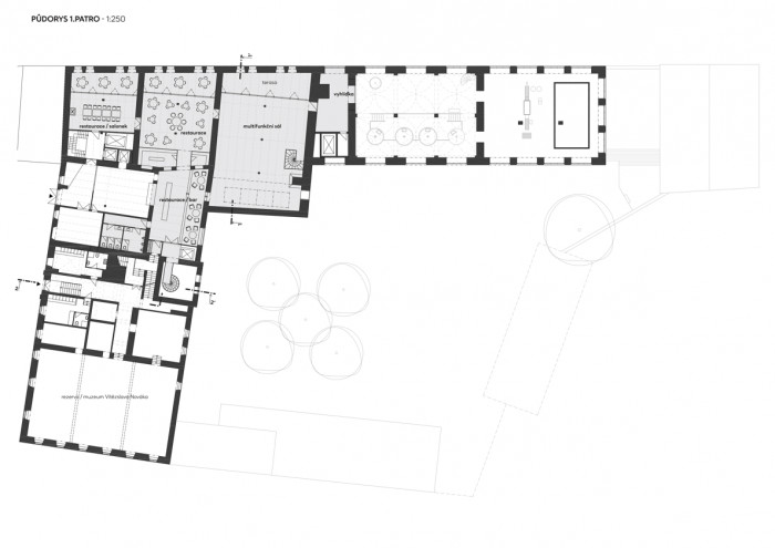
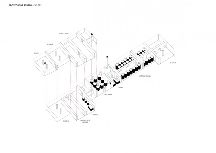
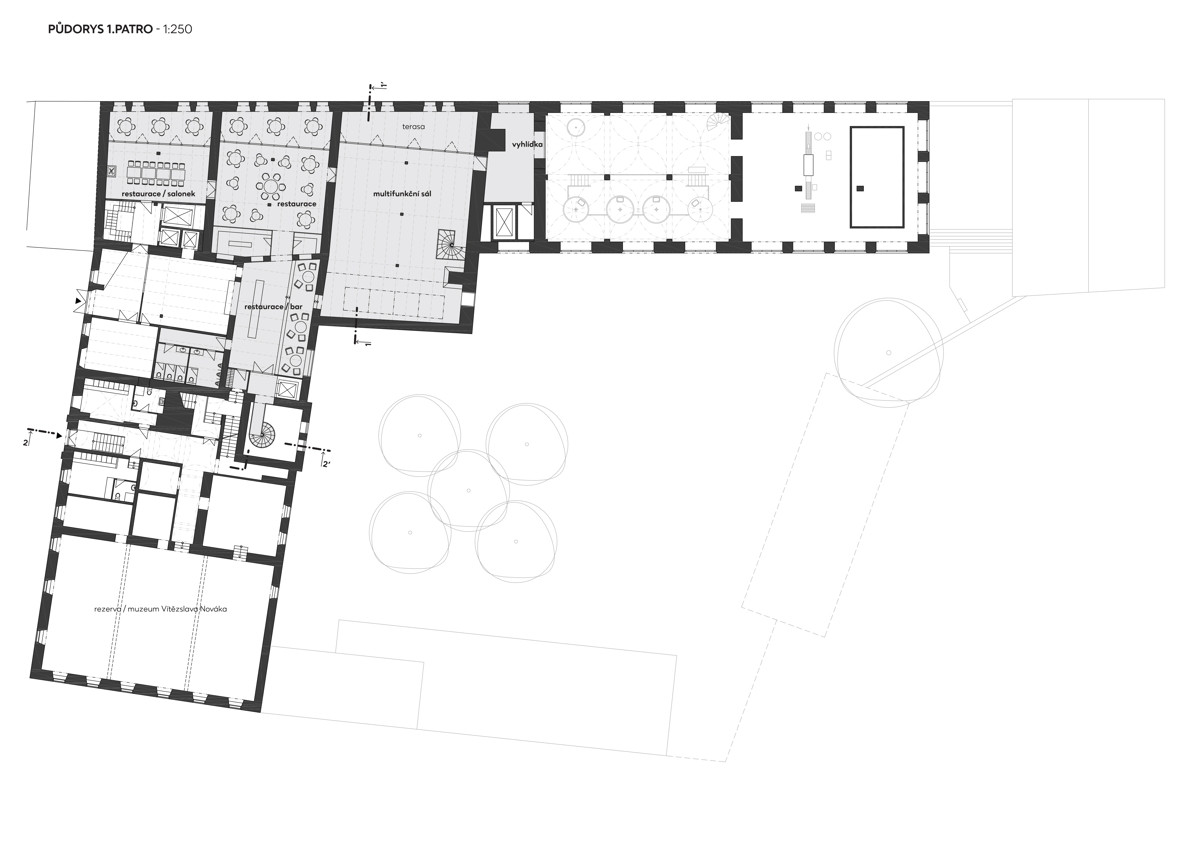
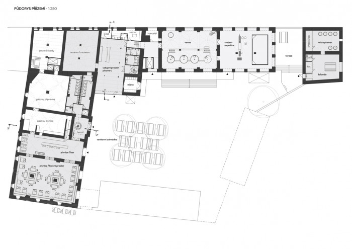
Rekonstrukce probíhá ve více etapách. V první, dokončené fázi, bylo jejím předmětem zprovoznění pivovaru, testovacího minipivovaru se šalandou a pivnice, včetně všech nezbytných zázemí.
Klíčové provozy pivovaru umisťujeme v rámci stavby tak, aby byly otevřeny do veřejných prostor a zatraktivnily tak celé nejbližší okolí. Pivnici směrujeme do náměstí a novými okny propojujeme s pivovarským dvorem. Ve varně, po obnově původního velkorysého prosklení, vzniká atraktivní průhled z náměstí skrz pivovarský dvůr až do zámeckého parku. Veškerá provozní a technická zázemí jsou skrytá v prostorách sklepů a podkrovích.
V designu stavby jsme zvolili přístup, kdy se primárně snažíme využít její prostorové kvality, odprezentovat původní materiálové a konstrukční řešení a případně také rekonstruovat zásadní prvky do původní podoby. V místech, kde bylo třeba navrhnout nové části související s dnešním provozem, se naopak chováme zcela současně. Se soudobým tvaroslovím i materiály, vždy s důrazem na funkčnost a pravdivost celkového přístupu.
- Ateliér: OTA ateliér
- Spolupráce: Eva Hrubanová, Klára Stachová
- Země: Česká republika
- Zodpovědný projektant: Projekt Centrum NOVA, s.r.o.
- Město: Kamenice nad Lipou
- Datum projektu: 2016
- Realizace: 2018
Související projekty
Související architekti
Související ateliéry a firmy
Mohlo by vás zajímat
































