Quartéis de Santa Justa
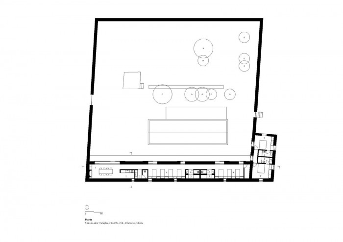
Rehabilitační projekt využívá existujících budov a stávajících obvodových zdí. Rozmístění budov a jejich prostorové členění vychází právě z původních typologií domů. Původní konstrukce byly zachovány s jedinou výjimkou, jíž je střecha hlavní budovy. Ta je nově navržena jako plochá, pokrytá kovovými pláty. Na severní straně přesahuje objem budovy a vytváří tak ochranu pro stezku pod ní.
Původní kamenné stěny hlavní budovy byly odborně restaurovány. Prostor mezi původním zdivem a novou střechou byl využit k přivedení denního světla ke vstupu do budovy skrze severní stěnu domu. Rozdělení funkcí v budově vychází z původního využití prostor. Zůstala zachována původní pec, k níž byla přirozeně připojena jídelna a kuchyně v západní části hlavní budovy. Dvě ložnice využily původních příček. Interiér je pojat jednoduše. Dřevěná podlaha plynule přechází přes materiál sklopných postelí až do krovu a přináší tak jednotný dojem z prostoru, stejně jako domácí a hřejivou atmosféru.
Hlavní budova byla na východní straně kolmo zakončena dvoupatrovým objemem, v němž se nachází další dvě ložnice s menším počtem lůžek v horním patře a skladovacími, hygienickými a technickými prostory v přízemí. Celek doplňují ochranné zdi, jež objekt chrání před okolními vlivy. Uvnitř, na ploše bez přesně určeného programu se nachází travnaté plochy pro ubytování poutníků ve stanech během významných poutí a dalších akcí.
- Autoři: José Manuel Carvalho Araújo, Sandra Ferreira, Emanuel de Sousa, Ana Vilar, Hugo Melo
- Ateliér: Carvalho Araújo
- Země: Portugalsko
- Zodpovědný projektant: Inovlima - Engenharia E Construção
- Město: Ponte de Lima
-
GPS souřadnice:
Latitude: 41.7853
Longitude: -8.67917 - Realizace: 2017
- fotografie: ©NUDO
Související projekty
Související architekti
Související ateliéry a firmy
Mohlo by vás zajímat