Rezidence Na Dračkách

Stavba byla vždy využívána k bydlení. Původní dům – funkcionalistická vila je z počátku 30. let 20. století. U Antonína Mendla, profesora ČVUT (1932), ho pro své dvě dcery objednal pan Vojta Beneš, samotné stavby se ujal stavitel Václav Jíra. Do současnosti se zachovala v podstatě s původními dispozicemi, během let byly měněny sanitární předměty, obklady atd. Rostislav Švácha ji ve své knize Od moderny k funkcionalismu (kapitola Kvalitní vila, s. 394) popisuje jako (…) dobrý příklad své doby, velmi úsporný dům s jasnou dispozicí a „malým raumplanem“ – nižší jídelnou nad obytným prostorem (…). Jak uvedl Heinrich Kulka, „v souladu s účelem a významem nejsou místnosti jen různě velké, ale i různě vysoké.“
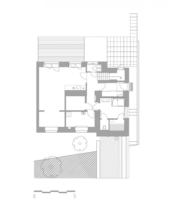
Funkcionalistický objekt má tři nadzemní a jedno podzemní podlaží a využívá svažitého terénu – vstup do 1. NP je z nivelety chodníku realizován pomocí vyrovnávacího schodiště, do zahrady je přímý vstup ze suterénu. Součástí objektu byla garáž (později nevyužívaná kvůli příliš prudkému sjezdu a pro dnešní auta nevyhovujícím rozměrům), připojená v úrovni suterénu k čelní fasádě, její strop pak tvoří pochozí vstupní plató.
Předmětem návrhu byla úprava dispozic pro trojčlenou rodinu a odstranění všech technických závad morálně dožívajícícho objektu při zachování a podpoření původního ducha stavby. Bylo vyřešeno odstranění vlhkosti, renovace střešního souvrství spojená s položením dřevěné terasy, sejmutí nánosů lina a koberců z původního terazza na schodišti, zlepšení akustiky a tepelně-technických parametrů, kompletní výměna oken včetně replik dřevěných žaluzií, repasování a doplnění všech původních kastlíků na radiátory, nahrazení předimenzovaného otopného systému novodobým, oprava a doplnění zámečnických prvků, přezdění části plotu a návrh nové posuvné brány při respektování typického charakteru oplocení.
Exteriér domu byl takřka intaktně zachován. Konstrukčně se jedná o nosný stěnový systém se železobetonovými věnci – „dvoutrakt“ se střední komínovou stěnou, bedničkovými stropy a rovnou střechou, kde kvalita stavebního detailu a konstrukcí odpovídá době vzniku. V interieru pak bylo z původních prvků zachováno schodišťové zábradlí, dveře a dřevěné stěny, kování oken i dveří, dřevěné vyrovnávací schodiště se zábradlím do obytného prostoru, byly dochovány dnes nefunkční dřevěné žaluzie oken.
Vzhledem k vertikalitě uspořádání bydlení byl navržen a realizován centrální vysavač. Navržené povrchové materiály navazují na ty původní (stěrky, lak, dubové vlysy), při použití soudobých technologií tak zajišťuj provozní a uživatelskou funkčnost. Byly též odstraněny dispoziční nedostatky jako úzké vstupy, absence zádveří, průchozí pokoje nebo předimenzované technické zázemí. Vzhledem k lokalitě bylo cílem v rámci citlivé rekonstrukce získat maximum opravdu užitných ploch, v suterénu se proto do tloušťky nosné zdi vešla komfortní vestavěná skříň.
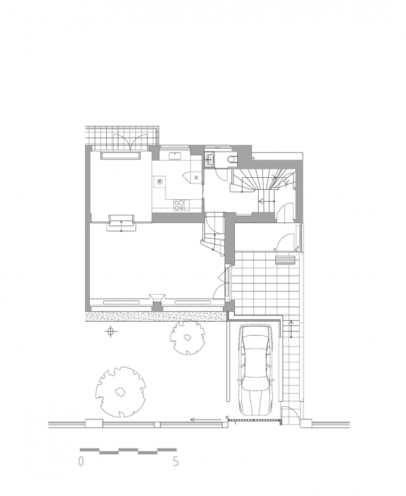
Hlavní obytný prostor na přízemí, řešený jako drúza do sebe zakleslých, různě vysokých prostor, byl citlivě opraven a původně oddělená kuchyň se zazděným podávacím okénkem připojena k obytnému prostoru. Vybavení a řešení kuchyně bylo navrženo interiérovým studiem Inspiro. Domu citelně chybělo zádveří a předsíň, v rámci přestavby přibyla před stávající vstup bezrámová skleněná přístavba, respektující vzdušnou lehkost původního návrhu.
Na základě zadání vznikly na patře dvě koupelny (rodičovská a dětská) a bylo zazděno propojení obou ložnic. V posledním poschodí byla vyvedena příprava pro čajovou kuchyň a vznikla tak příjemná pracovna sloužící jako zázemí pro venkovní střešní dřevěnou terasu.
Dle projektu byly provedeny stavební úpravy suterénu za účelem „zobytnění“ prostor dosud sloužících pouze jako technické zázemí. Vybouráním stávajících parapetů a návrhem nových francouzských oken, stylově odpovídajících původním, bylo posíleno propojení se zahradou. Tímto směrem také vznikla prostorná dřevěná terasa a celá zahrada byla nově osázena pod taktovkou zahradní architektky Ing. Evy Teplické.
Parapety do ulice též doznaly mírného snížení, čímž se prostor provzdušnil a prosvětlil. Ze suterénu se stalo obytné podlaží s přípravou pro případné oddělení (kuchyň, koupelna). Úzký, stísněný a vlhký vstup na zahradu byl zrušen, do domu se vstupuje nově ze strany přes prostornou šatnu a původní vstup je využit jako sklad kol, přístupný zvenku.
Nevyhovující garáž byla zateplena a připojena vybouraným otvorem k obytnému prostoru. Slouží nyní jako prostorná pánská koupelna a domácí wellnes s přirozeným, kterému nechybí ani přirozené osvětlení. Vjezd byl zazděn a na náspu vzniklo odstavné stání pro automobil.
Mohlo by vás zajímat


















