Škola od Harquitectes

Hlavními zásahy jsou kompletní rekonstrukce interiérů a malá rozšíření o 240 m2 předchozích 1200 m2 s novou jižní fasádou. Návrh zahrnuje také dvě nová hřiště: jedno na vrcholu budovy a další na střeše vstupu do sportovního centra. Konečně je pak také k verandě přidán východ do hlavní ulice.
Obnova
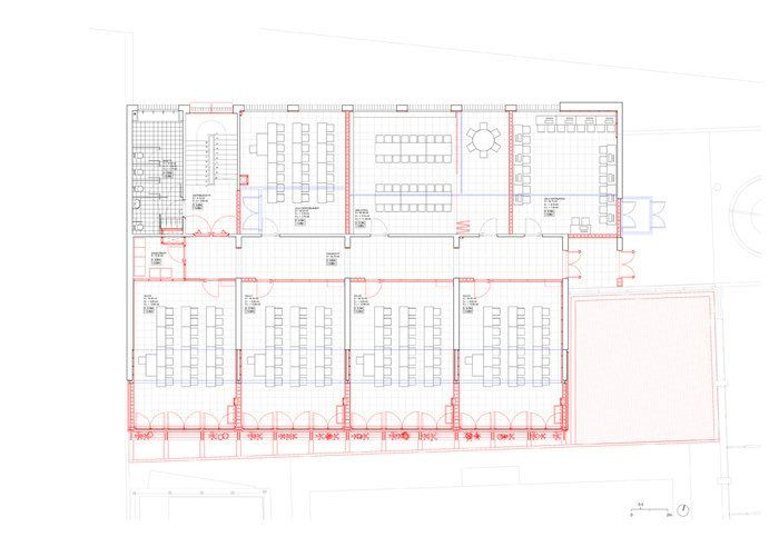
Původní budova nemá hodnotu jako památka, ale její hodnota tkví v množství užitečného a použitelného materiálu. Zároveň vytváří jakési charisma, působí zde kouzlo času, jaký už budova stojí. Vzhledem k materiálu to znamená například patinu na stěnách ( také se zde najdou zdiva s potopenými klouby, skryté stropy keramických klenutí a betonových nosníků aj). Nás zajímá původní materiál jako konstruktivní prvek s duší. Hlavním cílem je ovšem do této budovy zasáhnout - a to jak v interiéru, tak v původní fasádě směrem do ulice. To podle nás posiluje vztah a napětí mezi starými a novými částmi staré školy.
Rozšíření
Nejdražší zásah projektu je rozšíření budovy, které jsme ospravedlnili nedostatkem plochy stávajících učeben umístěných na straně budovy, která je u ulice. Paradoxně se rozšíření ukazuje na vnitřní fasádě - samozřejmě není možné roztáhnout budovu do ulice – a sahá od 15,5 m až 18,5 m hloubky. V přízemí zachováváme stávající chodbu na svém původním místě, zatímco předškolní učebny se rozšiřují na stranu do dvora a zvětšují se z 35 na 50 m2. Na druhou stranu, pro první a druhé patro je chodba přesunuta na opačnou stranu centrální ložné stěny tak, aby všechny učebny směřující k ulici mohly být rozšířeny. Tato změna dává místo jedné z nejsilnějších koncepcí návrhu: otevření nového koridoru, který překračuje 30 cm.
Struktura
Rozšíření budovy se skládá z kovové (parazitové) struktury. Ta je podporováno kovovými pilíři. Jižní fasáda měla vždy několik problémů se slunečním světlem, které svítilo do učeben v průběhu roku. Návrh je založen na pasivním systému pevných kovových a perforovaných žaluzií, které regulují nepříjemné sluneční světlo. Zároveň zajišťují dobré větrání učeben. Kovové roletové žaluzie jsou také dostatečně odolné, aby snesly míčové nárazy dětí na školních hřištích.
Naše fasáda
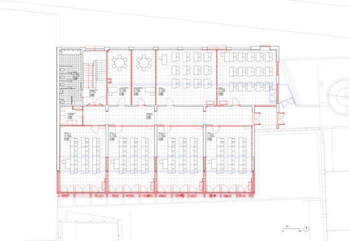
Zásah na severní fasádu - předem izolovanou - je minimální, ale zásadní. Zachováváme stávající zednické práce i stávající složení fasády. Společně s vnitřními stropními klenbami je to také poslední stopa původní budovy. Bílé dřevo zůstává nedotčeno. A šest nových oken zlepšuje příčné větrání s jihem. Nové venkovní prostory Polovina jižní střechy, která dříve nebyla přístupná, je přeměněna na nové venkovní hřiště s krásným výhledem na města. Další nové nádvoří, pro malé děti, se objeví pod schodištěm sportovního centra. Betonová střecha u výtahu -40m2- se stává také hřištěm s pisčitou plochou a tribunou pro děti.
Nakonec byl přehodnocen i přístup k budově: některé dveře jsou zděné a nové jsou přidané. Veranda hlavního vchodu je zvětšena, takže se může stát novým průsečíkem přímek. Chová se totiž jako závěs, který spojuje čtyři hlavní části budovy: sekundární školní budovu, centrální terasu, sportovní centrum v suterénu a předškolní a základní školu.
Mohlo by vás zajímat







































