S

Student Emila Přikryla navrhuje radikální dostavbu kostela v centru Prahy

Autorská zpráva Miroslava Pazdery

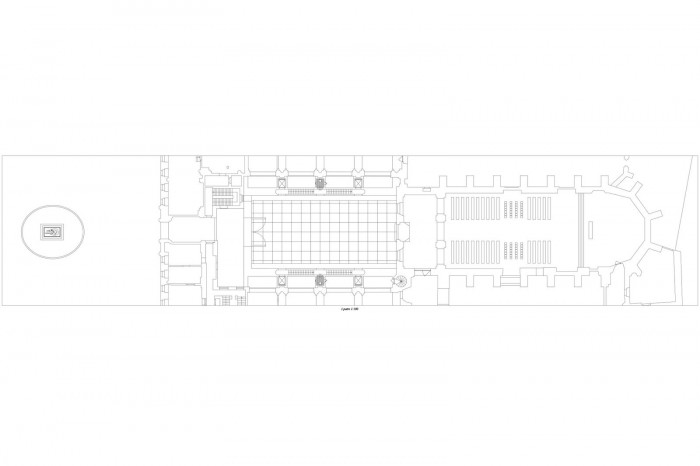
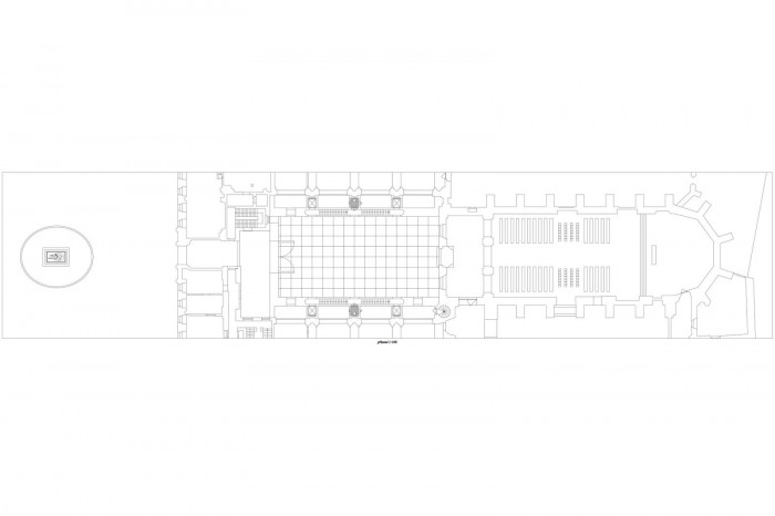
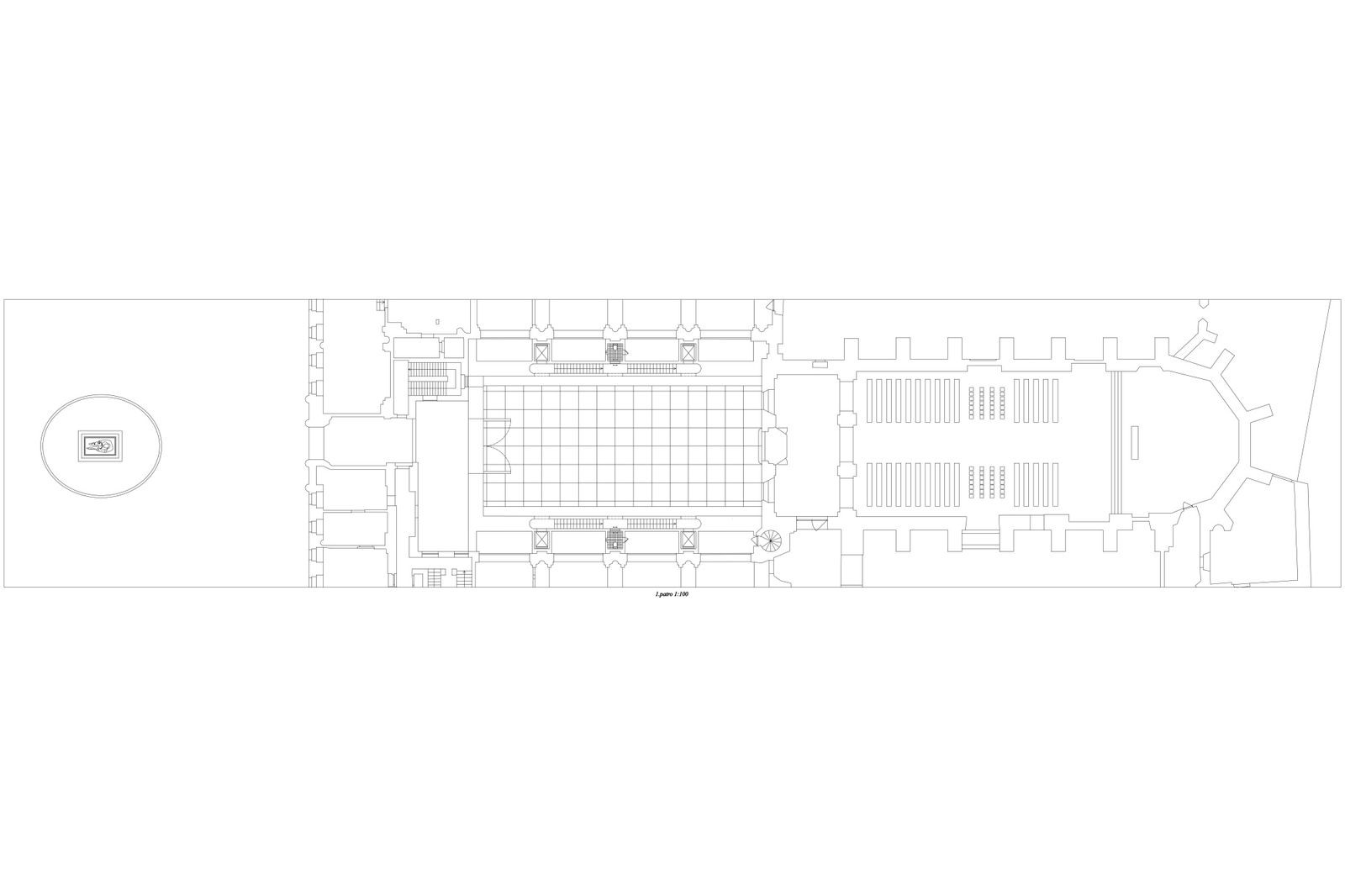
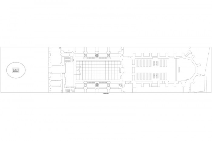
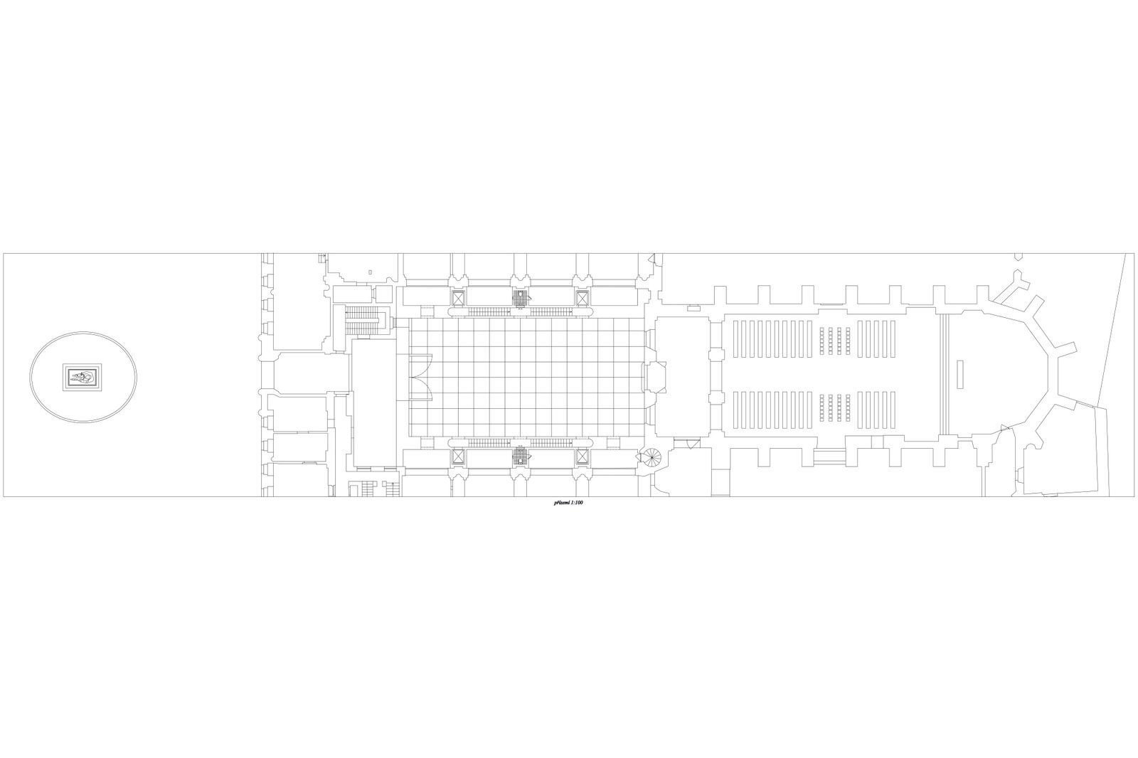
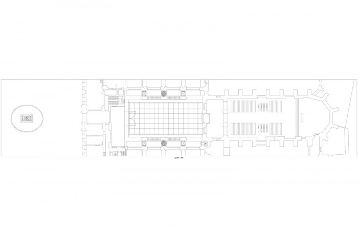
Není nic zvláštního na dostavbě domu. Navrhovat znamená nevyhnutelně přidávat. Historie je nekonečně velká a chaotická zásobárna strategií, technik, idejí, mód a zvyků. Architekturu lze chápat jako komentář, nebo anotaci existujícího textu. Nebo také jako postprodukci existujícího díla. Zjišťujeme, že každý projekt je nakonec dostavbou. Tématem práce je zkoumání potence při kostele Panny Marie Sněžné na hraně Starého a Nového Města pražského. Zabýval jsem se možnostmi aktivace potenciálu, který skýtá historická stopa nikdy nedostavěného chrámu. Místo bylo potřeba podrobit jak objektivnímu tak subjektivnímu pátrání, prostorovému zkoumání a ověřování.

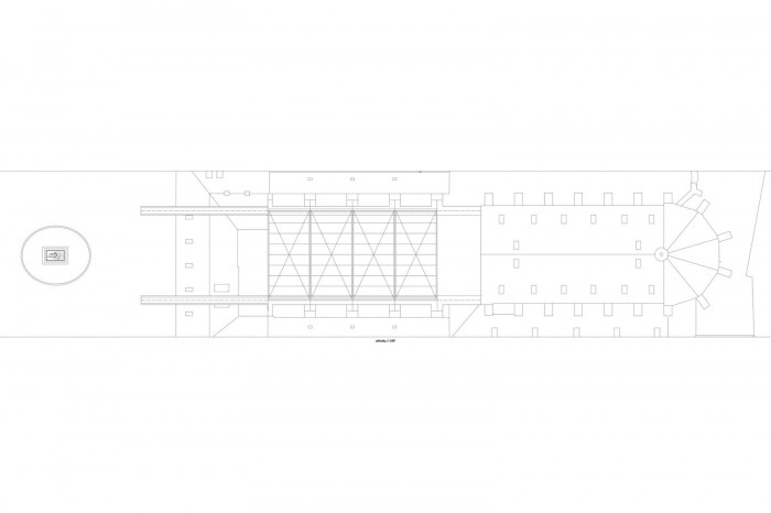
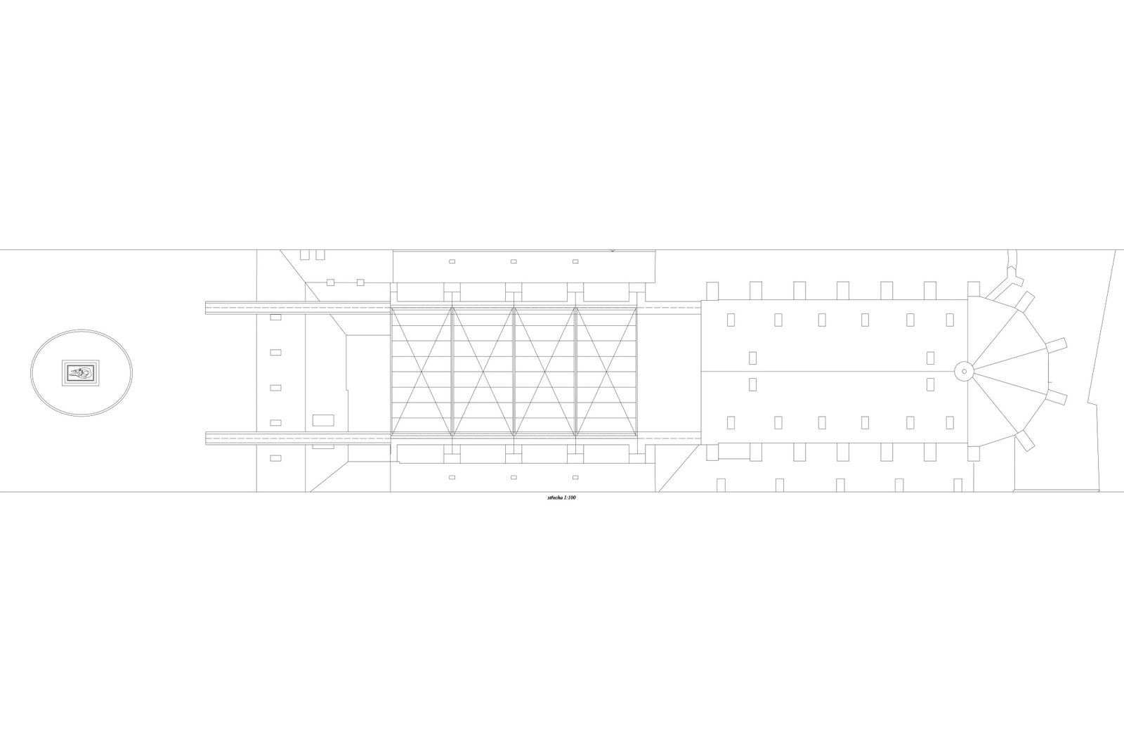
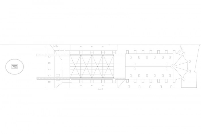
Při navrhování jsem sledoval především geometrické vztahy a rastry, které jsou v místě již vepsané. Dostavuji zamýšlené stěny chrámu bez použití historizujících forem. V tlustých zdech se nacházejí schodiště, v mohutných pilířích jsou výtahy a zázemí. Projekt balancuje na hraně architektury a scénografie. Vodorovně putující střecha chrání náměstí před nepřízní počasí. Výsledkem je vysoká hala s ochozy – prázdno. Šlo mi o účinek zastřešeného náměstí. Analogii mi poskytoval Krierův projekt pro Piazza Navona, nebo Městská hala v Gentu od Robbrecht en Daem. Hala je místem pro výstavu, divadlo, nebo trh.

Hodnocení poroty

Projekt, který by se nepochybně stal ikonickým místem. Téma dostavby kostela Panny Marie Sněžné jako městské haly se blíží nikdy nerealizované soutěži na Staroměstskou radnici. Při možné realizaci by projekt vyvolal nejen bouřlivou diskuzi nad dostavbami historických staveb, ale jistě i řadu kontroverzí. Diplomová práce tedy vypovídá o sebevědomí autora a předložený výsledek je nepochybně přesvědčivý. Gesto, socha, zážitek. I přes nedůsledné zpracování prezentace, zejména s nejasným vztahem novostavby ke svému okolí, se porota rozhodla ocenit projekt 3. cenou.

Cenu za nejlepší diplomní projekt roku 2017 získala absolventka FA ČVUT Veronika Indrová za projekt přestavby strahovského stadionu v Praze. Druhé místo porota udělila trojici studentů Michala Kuzemenského z FA ČVUT, kteří navrhovali novou typologii porodního domu na komplikované parcele u pražských Letenských sadů.

Generální partner
Hlavní partneři