Studio Hangár - Ťoupalíkova vila
 
                                
                                Ťoupalíkovu vilu v Nádvorní ulici v pražské Troji navrhnul v roce 1935 architekt Václav Ittner v progresívním funkcionalistickém stylu. Stavba byla ještě téhož roku zrealizována.
Vila není nijak rozsáhlá ani výjimečná, avšak svou neokázalou jednoduchostí přesně odpovídá tehdejšímu inovativnímu ideovému proudu kladoucímu důraz na nadčasovost, účelnost, ekonomičnost a čistou eleganci.
Dům s puristicky čistými průčelími a plochou střechou byl osazen na západní svah nad údolím Vltavy. Hlavní průčelí směřují na západ a na jih. Z kompaktního kubusu domu vystupuje v jeho jižní části rizalit, zakončený terasou s působivým výhledem na pražské panorama.
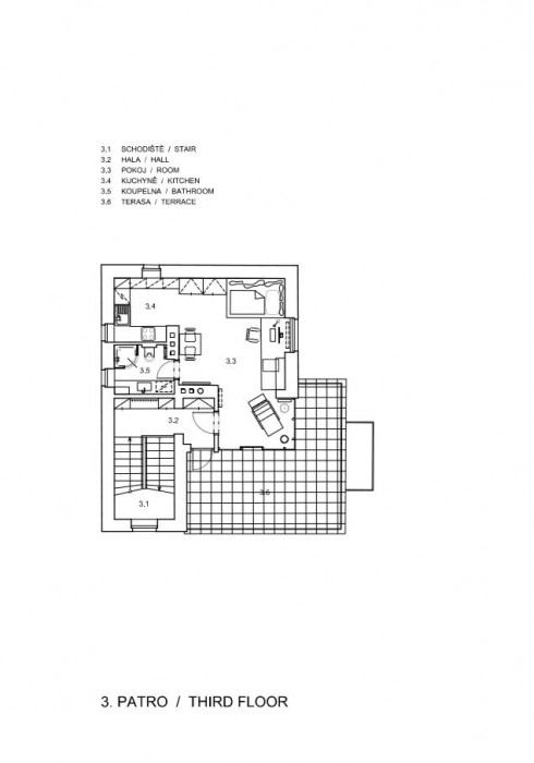
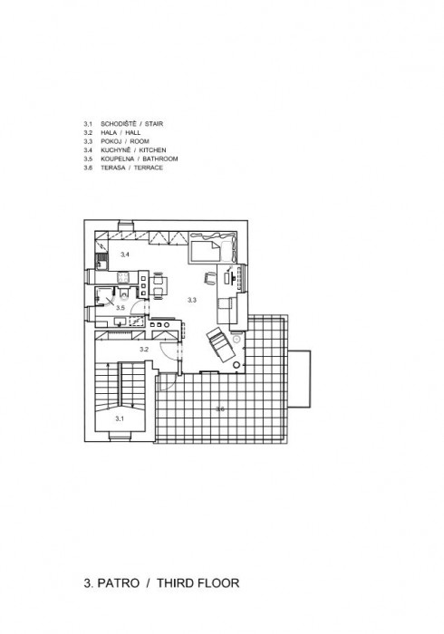
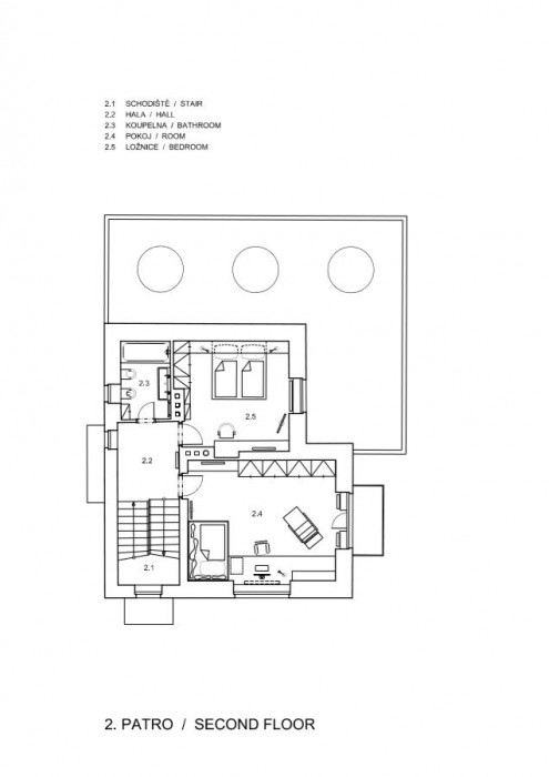
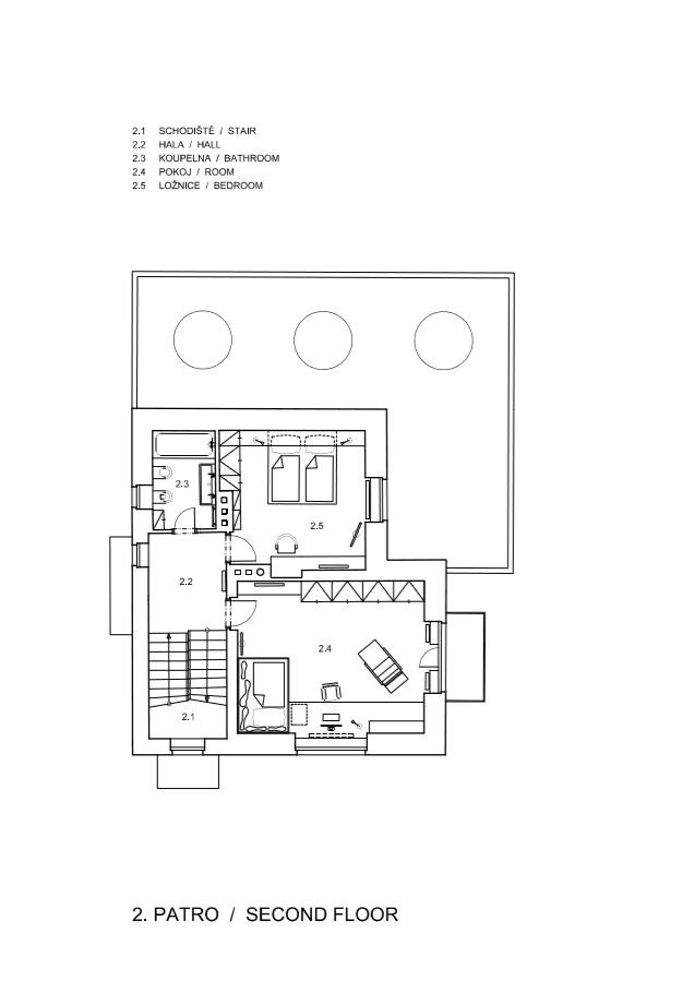
Plošně úsporná vila s téměř čtvercovým půdorysem má jedno podzemní a tři nadzemní podlaží, která propojuje schodiště situované v severozápadní části domu. Původně byl suterén určen pro skladové zázemí domu, v přízemí byl pokoj, kuchyň a pokoj služky, v patře pokoj s ložnicí a koupelnou. V nejvyšším podlaží se původně nacházely technické místnosti – prádelna a sušárna, které byly následně přeměněny na obytné místnosti.
Dům je obklopen nepříliš rozlehlou, ale příjemnou, mírně svažitou zahradou, která ze severu a z východu přímo přiléhá k areálu pražské botanické zahrady.
Současný vlastník zakoupil vilu v poměrně zanedbaném stavu od přímých potomků původního stavebníka v roce 2014 s ideou citlivě upravit dům tak, aby při zachování jeho dobového výrazu mohl sloužit pro soudobé bydlení jeho rodiny.
Hlavní ideou návrhu rekonstrukce objektu byl respekt k místu a respekt k domu. Novotvary nově přidaných hmot, jež rozšiřují možnosti využití domu, nemají za cíl stávající hmotě jakkoli konkurovat či dominovat, spíše tiše doprovodit její čistou eleganci.
Klasický problém funkcionalistických staveb - absence šatny u vstupu - byl vyřešen rozšířením haly v úrovni přízemí o nově navržený kubus arkýře, vybíhající ze severního průčelí. Obývací pokoj byl propojen s kuchyní a rozšířen o prosklenou přístavbu jídelny, dodávající hlavnímu obytnému prostoru potřebnou dimenzi, dostatek slunce z jižní strany a zajišťující jeho přímé propojení se zahradou. Na přístavbu jídelny přímo navazuje zakrytá terasa, tvořící nejintimnější část venkovního prostoru. Obytná plocha nejvyššího podlaží byla rozšířena prosklenou přístavbou směřující na střešní terasu.
Přestože se při úpravách domu použily novodobé systémy, konstrukce a materiály, bylo snahou vcítit se do uvažování tehdejších funkcionalistů a promlouvat jejich jazykem; nesnažit se však o doslovné citace, ale spíše o nové formulace shodných myšlenek. Byly použity klasické materiály jako jemnozrnná omítka, okna s dřevěnými a kovovými rámy, titanzinkový plech, neleštěné nerezové zámečnické prvky, kamenné dlažby, dubové parkety, bělninové obklady apod.
Komplikací při stavebních pracech bylo zjištění obvyklého nešvaru prvorepublikových staveb: nekvalitní materiály a konstrukční prvky. V tomto případě se jednalo především o základy, betonové stropní konstrukce a zdivo některých stěn, jejichž sanace či náhrady si vyžádaly velké časové i investiční náklady. Dalším požadavkem bylo kultivovaně se vypořádat se situováním zařízení mobilního operátora na střeše objektu.
Řešení interiéru vychází z funkcionalistických principů a tradic přetavených do nového jazyka. Interiér je řešen kompletně z atypických interiérových prvků dle autorského návrhu s typovými doplňky, s důrazem na kvalitu použitých materiálů a detailů zpracování.
Obtížným úkolem byl návrh garáže pro dvě vozidla tak, aby nekonkurovala stávajícímu objektu a neznehodnotila stávající, relativně malý pozemek. Hmotově vhodnější a funkcionalismu bližší řešení z původního návrhu se zcela zapuštěnou garáží pod úrovní terénu, zpřístupněnou šikmou rampou, bylo finálně nahrazeno méně náročným řešením s polozapuštěnou garáží přimknutou k oplocení. Garáž je provedena z pohledového strukturovaného betonu.
Původně navržené plné oplocení z odstupňovaných prvků ze strukturovaného pohledového betonu bylo po marných pokusech o dohodu s pražskou botanickou zahradou nahrazeno obligátním ocelovým pletivem. Veškeré exteriérové podezdívky a opěrné stěny jsou z pohledového strukturovaného betonu, sjednoceny s garáží. Terénní schodiště a chodníčky jsou z litého kartáčovaného betonu.
- Autoři: Antonín Juštík
- Ateliér: Studio Hangár
- Spolupráce: Vladimír Tůma
- Země: Česká republika
- Město: Praha 7 - Troja
- Datum projektu: 2014
- Realizace: 2017
Související architekti
Související ateliéry a firmy
Mohlo by vás zajímat
 
				 
				 
				 
				 
				 
				 
				 
				 
				 
				 
				 
				 
				 
				 
				 
				 
				 
				 
                             
                             
                             
                             
                             
                                 
                             
                             
                             
                             
                             
                             
                             
                             
                             
                             
                             
             
             
             
            		 
            		 
            		 
            		 
            		 
                                                                                                             
                                                         
                                                         
                                                                                                             
                                                         
                                                         
                    