studio OBJEKTOR - Ateliérový dům v Ratiboři
Koncepce
Parcela se nachází ve středové části obce Ratiboř. Zástavbu zde tvoří nesourodé rodinné domy s jasně definovanou uliční čarou. Náš dům nastavuje zrcadlo svému okolí a navrhuje alternativu ke každodennímu cestování za prací do měst.
Variabilita interiérů a vnější výraz domu reflektuje jeho funkci. Celek je tvořen menšími objemy hmot, jejichž kompozice v přízemí vytváří dvě krytá parkovací stání. Pozemek není oplocen, přízemí domu je z části otevřeno do uliční fronty vesnice a z části se otevírá do intimní zahrady. Ta se stává společným těžištěm všech uživatelů domu. Figura domu pracuje s rytmem, vrstevnatostí vztahů, střídá plno a prázdno. Hmota domu časem poroste vegetací a nahradí zelené koruny stromů.
Provoz
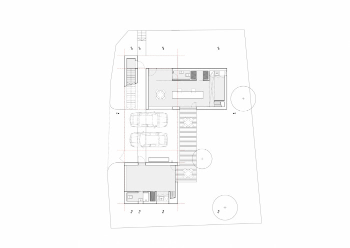
Stavba je rozdělena na tři samostatné jednotky. V přízemí je navržen ateliér A s jednacím prostorem, kuchyňkou, toaletou se sprchou a vestavěným patrem na spaní. Ateliér B je centrální prostor s vyšší světlou výškou se zázemím (toaleta, sklad, kuchyňka) s vestavěným polopatrem. V patře se nachází hala s kuchyňkou, koupelna a volný pracovní prostor – ateliér C. Ten je možné rozdělit pomocí velkoformátových otočných stěn na tři malé nebo jeden velký ateliér. Na severní straně směrem k ulici je prostor ukončen balkónem s pozinkovanou sítí pro popínavé rostliny. Vstup do ateliéru A a C je z uliční fronty, vstup do ateliéru B je průchodem skrze parkovací stání.
Konstrukce
Svislé nosné i nenosné konstrukce jsou navrženy z dřevěných masivních panelů. U vybraných nosných stěn jsou provedeny sádrokartonové předstěny pro vedení instalací. Vodorovné konstrukce jsou také z dřevěných masivních panelů. V místech největšího statického namáhání dřevěných konstrukcí jsou navrženy ocelové nosníky. Fasáda je realizována jako kontaktní s tenkovrstvou omítkou v bílé a mírně kontrastní šedé barvě. Střecha je navržena jako plochá, nepochozí. Střešní krytinu tvoří PVC folie se zátěžovou vrstvou z kačírku. Výplně okenních otvorů jsou navrženy jako tepelně izolační trojskla s dřevohliníkovým rámem. Zpevněné plochy tvoří betonová dlažba a dřevěná terasa.
- Autoři: Jakub Červenka
- Ateliér: studio OBJEKTOR
- Země: Česká republika
- Město: Ratiboř
- Datum projektu: 2015
- Realizace: 2017
- Zastavěná plocha: 142.00m2
Související projekty
Související architekti
Související ateliéry a firmy
Mohlo by vás zajímat