Totalstudio - Administrativní sídlo firmy Jolly Joker
Po zásadnej spoločenskej zmene začiatkom 90-tych rokov min. storočia a než ako svedectvo nevydarených privatizačných procesov ostalo na Slovensku množstvo morálne a technicky zastaralých, opustených, zchátraných či zničených občianských stavieb. Keďže sa nejedná o hodnotné a zaujímavé architektonické diela, nekladie spoločnosť pri ich rekonštrukcii, revitalizácii a obnove takmer žiadne nároky. Neodborné zásahy a úpravy týchto objektov zväčša motivované banálnym zhodnotením minimálnych investičných nákladov vytvárajú lacné plastové monštrá v mestskej krajine. Vzhľadom na množstvo opustených stavieb v našom prostredí sa otvára mnoho zásadných otázok o ich ďalšom osude. Je ekonomicky a ekologicky udržateľné a etické zbúrať staré a postaviť nové? Je efektivne transformovať opustené stavby a prispôsobiť ich aktuálnym požiadavkám nového programu? Je možné z obyčajnej a nudnej stavby vytvoriť autentické a zaujímavé priestory?
Zadaním klienta bolo dostať pod jednu strechu tri rôzne prevádzky, ktoré pôvodne fungovali na rôznych miestach a vytvoriť nové a kvalitné pracovné prostredie pre zamestnancov (sklad techniky, sklad zdravotníckych pomôcok, administrativne, obchodné a reprezentativne priestory). Úlohu navrhnúť nové administrativne sídlo sme prijali ako výzvu vytvoriť súčasné priestory pre nový program v starej budove. Stavba sa nachádza v areáli (pôvodný názov Krásna Hôrka – Kramáre) kde fungovali štátne zdravotnícke zariadenia. Po privatizácii areálu koncom 90-tych rokov min. storočia väčšina z týchto zariadení z rôznych dôvodov prestala fungovať a objekty začali chátrať. V súčasnosti areál prechádza celkovou revitalizáciou a z pôvodných zdravotníckych zariadení sa transformuje na polyfunkčný areál, ktorý ponúka bývanie, sociálne služby, obchodné a administrativne priestory. Urbanisticky areál funguje ako slepá ulica po oboch stranách lemovaná líniovými domami a obkolesená lesom.
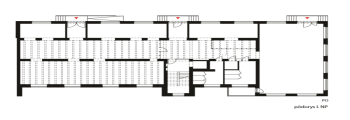
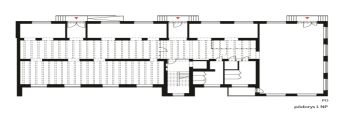
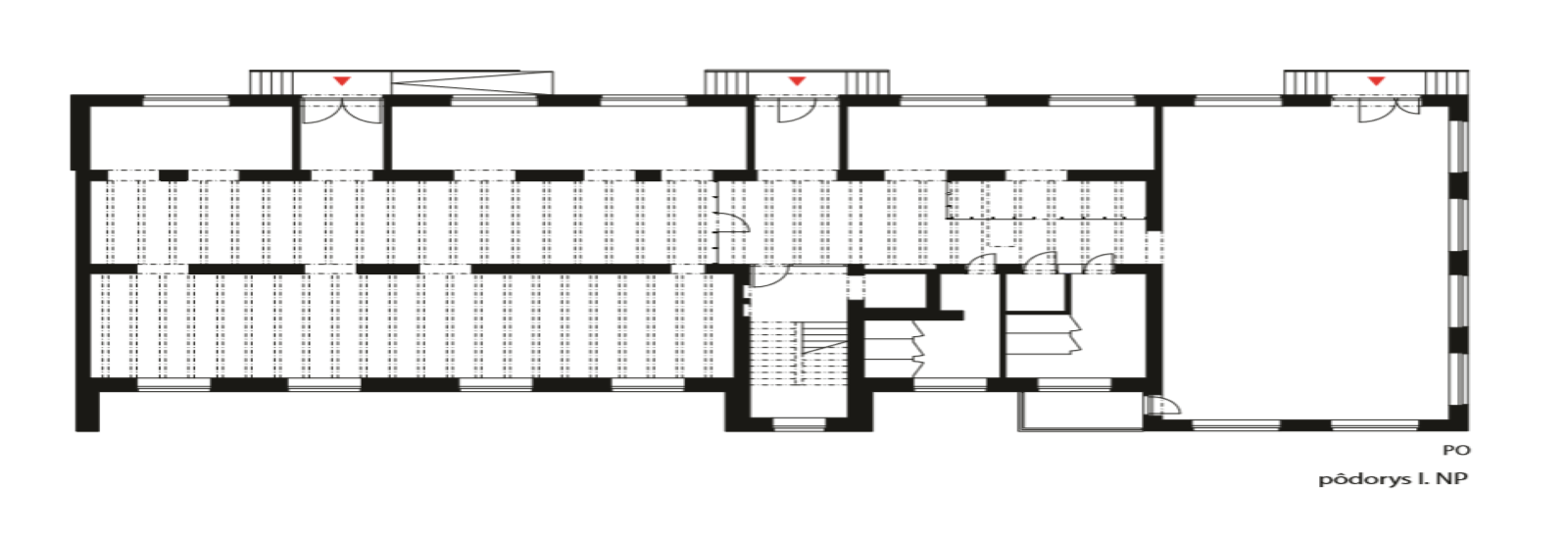
Rekonštruovanýobjekt je umiestnený na začiatku zástavby na ľavej strane ulice a je len tretinou z celého 5 podlažného líniového objektu, ktorý bol pôvodne koncipovaný ako jeden líniový dom, ale v súčasnosti je rozdelený na dve samostatné časti. Administrativno-obchodné priestory v prvej tretine a polyfunkčnú časť s bývaním, službami a parkovaním v zvyšnej časti objektu. Vzhľadom na osadenie stavby v svahovitom teréne má podstavec výšku dvoch podlaží, pričom obe sú prístupne z úrovne terénu. hlavnú ulicu a zadný dvor spája popri východnej fasáde terénna rampa a terénne schodisko. Časti vonkajších spevnených plôch tvoria bloky pieskovaných betónových prefabrikátov.
V parteri hlavnej ulice je navrhnutý priestor pre showroom, predaj a „čistý“ sklad distribúcie zdravotníckeho materiálu. Solídny charakter prevádzky v prízemných podlažiach vytvára exteriérový obklad z rezanej tehly, prerušovaný pravidelným rytmom veľkých presklených otvorov.
Na dvoch typických podlažiach (2.NP a 3.NP) sme do dispozície premietli konštrukčný dvojtrakt so stredovou nosnou stenou. Jedna časť funguje ako „open space“ pracovisko a druhá časť ako tradičné kancelárie pre vedenie firmy. V rámci otvorenej časti voľne plávajú zasadacie kóje. Pozdĺž vnútornej nosnej steny je navrhnutý dominantný interiérový prvok administrativnych podlaží. Funkčná policová stena funguje ako hranica medzi open-space priestorom a kanceláriami resp. zázemím a komunikačným jadrom. Delenie na otvorené, polootvorené a uzavreté pracovné priestory definujeme rovnakou farebnosťou kobercových podláh a vstavaného nábytku v rámci traktov.
Podkrovie funguje ako otvorený flexibilný priestor, ktorý slúži ako rezerva pre budúci rast firmy ale zároveň je využívaný na prezentačné a vzdelávacie účely spoločnosti. V celom objekte sme odhalili a priznali pôvodné železobetónové rebierkové konštrukcie stropov, ktoré odkrývajú minulosť stavby a dodávajú novej funkcii autentický charakter. Naším zámerom bolo využiť pôvodné časti konštrukcie a tektoniku stavby ako výrazové prvky a budovu zvonku aj zvnútra kultivovať solídnou materialitou. Striedmosťou architektúry a prevedenia sme chceli do areálu Krásna Hôrka prispieť udržateľnou priestorovou kultúrou a poukázať na otvorené možnosti prístupu k zhodnocovaniu zdanlivo nehodnotných stavieb.
- Autoři: Tomáš Tokarčík, Aleš Šedivec, Michal Kontšek
- Země: Slovensko
- Město: Bratislava - Kramáre
- Ulice, číslo: Ďumbierska, 3
- Datum projektu: 2016
- Realizace: 2018
- Užitná plocha: 1 550.00m2
Související projekty
Související architekti
Mohlo by vás zajímat