Totalstudio - Letný dom

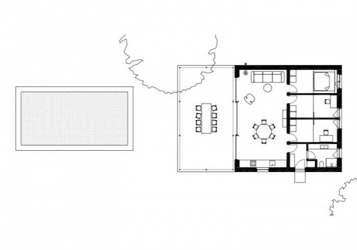
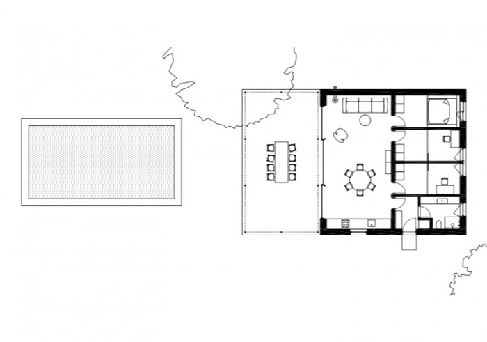
Ambíciou Letného domu vo Vajnoroch bolo splynutie s veľkou záhradou. Formálne dom odkazuje k dočasným kempingovým konceptom bývania, k záhradným domom, ale aj k tradičnému stavaniu vo Vajnoroch. Výsledkom je „troika“ - kompozícia troch domov, tvoriacich jeden dom. Nočný dom je rozdelený na 4 identické časti – 3 utilitárne spálne a kúpeľňu so vstupom. Denný dom je otvorený priestor s priamym napojením na terasu, ktorá je v teplejších mesiacoch hlavným miestom domu.
Dispozičná schéma je banálne jednoduchá, v dome nie je chodba a izby sú ako kajuty napojené priamo z hlavného denného priestoru. Konštrukčne sa jedná o jednoduchú murovanú stavbu s oceľovou konštrukciou strechy. Dom je omietnutý, má drevené okná a strešná krytina je z vlnitého plechu. Terasa je prekrytá vlnitým polykarbonátom, pod ktorým je stienenie z látky s reflexnými alumíniovými pásmi. Táto látka sa dá posúvať a meniť intenzitu preslnenia podľa potreby počas celého roka.
Dom je vykurovaný tepelným čerpadlom na vzduch, distribúcii a udržaniu tepla pomáha akumulačná podlaha z brúseného betónu.
- Autoři: Tomáš Tokarčík, Aleš Šedivec
- Země: Slovensko
- Město: Bratislava - Vajnory
- Datum projektu: 2017
- Realizace: 2020
- Užitná plocha: 81.00m2
- Zastavěná plocha: 100.00m2
- Plocha pozemku: 1 317.00m2
- Poznámka: Terasa 50 m2, bazén 50 m2
Související projekty
Související architekti
Mohlo by vás zajímat
























