XTOPIX - Mateřská škola Přístavní ve Stříbře
S nadsázkou zvolená tématika moře, prázdnin u moře, vychází s umístěním budovy na menším terénním výběžku, kdy objekt pomyslně evokuje koráb připravený k plavbě. Zároveň však celý záměr představuje iniciační impuls pro své okolí. Zaujímá pozici jakési vlajkové lodi, která ukazuje nový směr vývoje celé lokality, dnes neutěšené transformační plochy bývalých kasáren představující menší brownfield sousedící s hranicí historického jádra města. Svým umístěním dává okolí vyhlídky pro budoucí koncepčnější rozvoj jak z hlediska dopravní infrastruktury (nová městská napojení), tak z hlediska programového mixu.
Pozemek vymezený budově školky leží na rozmezí zástavby rodinných domů a měřítkově větších budov bytových domů, škol či food marketů koncentrujících se kolem blízkého autobusového nádraží. S ohledem na stavební program a požadovanou podlažnost novostavby (max. 2 podlaží) se zastavěná plocha školky blíží ke svým plošnějším sousedům, nicméně v maximální snaze o redukci zastavění zahrady.
Právě venkovní pobytové plochy školky se staly zásadní během formování urbánního řešení. Zvolená figura reflektuje požadavek na vytvoření dvou oddělených venkovních hřišť, zároveň všem třídám umožňuje vychutnávat si nejhodnotnější výhledy směrem k historickému jádru města (posílení sounáležitosti s místem). Pootočení budovy vůči okolní zástavbě reflektuje trasu budoucího prodloužení ulice Prokopa Holého, hmota domu se ideálně otevírá slunci po celém svém vnějším obvodu, přičemž vhodně definuje velkorysý předprostor mateřské školy.
Dramatický svah v jihovýchodní části pozemku je ponechán venkovním aktivitám dětí. V rovinných úsecích zahrady se nacházejí dvě hřiště, každé s jiným charakterem – jedno se slunci otevírá více, druhé méně. Jedno se zaměřuje více na pohybové aktivity (koloběžková dráha), rozvoj rovnováhy i kreativity, druhé preferuje hru, zahradničení a dovádění (maják, skluzavky a jiné herní prvky).
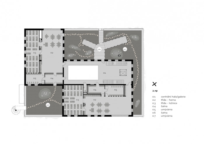
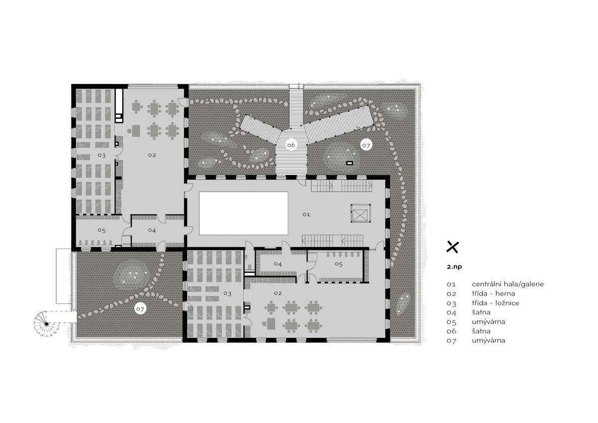
V obklopení různorodé zahrady zůstává osazen kompaktní objekt novostavby mateřské školy. Umírněné hmotové řešení s ustupujícím druhým podlažím reaguje svým pojetím na jinak pestré okolí, jehož architektonické hodnoty se značně různí. Přes sevřenost hmoty objektu se uvnitř domu odehrává prostorová hra. Skrz kryté bezbariérové závětří uživatel objektu vstupuje do vstupní haly propojené se sousedním centrálním atriem, jež představuje srdce budovy, kolem něhož jsou semknuty všechny ostatní prostory školky dělené na čisté a špinavé. Vedle funkce jídelny slouží atrium jako galerie dětských výtvarných plodů, dějiště besídek, anebo tělocvična.
Jednotlivé třídy jsou orientovány směrem ke slunným stranám, nicméně vhodným natočením nikdy nedochází k absolutní exponovanosti, jež by způsobovala přehřívání pobytových místností. Servisní zázemí je situováno u severních fasád tak, aby zároveň disponovalo vlastním vstupem, mimo hlavní vstup do budovy.
Využití střech nad přízemím násobí plochu venkovních pobytových prostor a navádí k pobytu v bačkůrkách či venkovním přezutí. Krytá terasa, přístupná z ochozu nad centrálním atriem je řešena v parafrázi venkovního altánku či zahradního domečku. Střešní extenzivní zahrada tvořena barevnou skladbou rostlin zpomaluje během dešťových srážek odtok vody, přispívá ke snížení prašnosti a přehřívání okolního prostředí.
Koncepce interiéru budovy
Řešení interiéru pomocí nehmotných prostředků nachází východiska, kterými dává v kompaktní hmotě domu vyniknout každé z jednotlivých jednotek interiéru – třídám a zázemí. Daného dosahuje především pomocí barev. Těmi definuje všechny dílčí soubory budovy. Barevná odlišnost provozních jednotek skrze okenní otvory jemně prosakuje do exteriéru, ale především uvnitř školky zprostředkovává jednoduchou orientaci vlastním uživatelům – dětem. Ty se v budově snadno orientují, a především pak identifikují se svou vlastní třídou. K tomu jim dále pomáhá grafický orientační systém.
Třídy - řešení vybavení
Každá třída sestává ze soustavy čtyř místností: herny, lehárny, umývárny a šatny. Všechny prostupuje jednotný styl řešení. Herna, centrum každodenního pobytu dětí, se dále dělí do dvou pomyslných (nestavebně separovaných) částí – část kreativní a část herní.
V první z výše uvedených jsou situovány výškově stavitelné stoly obdélníkového půdorysu, které umožňují různé sestavy složení. Zde děti mají prostor pro vlastní tvorbu a seberealizaci. Druhá část třídy zůstává otevřená hrám. Každá třída pojímá skříňovou stěnu tvořenou pravidelným rastrem pro uskladnění pomůcek a hraček. Vyjmutím jednotlivých polí gridu vznikají v rámci stěny nejmenší prostorové jednotky třídy, tzv. zašívárny, kde se děti mohou ukrýt při jejich toulkách za dobrodružstvím.
Zahrada školky
Motto: Mateřská škola se nachází na hraně svahu, na okraji sídla, na ostrohu, na kraji moře… je čas vyplout…
Hmota domu dělí zahradu na dvě části – severozápadní a jihovýchodní. Rovinatější severozápadní části dominuje okruh pro odrážedla obepínající dvě pískové dopadové plochy s „písečnými dunami“ – kopečky a dalšími tematickými herními prvky. Zahrada je primárně určena pro klidnější hry menších dětí. Dopadové plochy mohou zároveň sloužit k hrám v písku.
Severní část zahrady je poměrně úzká a vzhledem k prudkému svahu mezi budovou mateřské školy a novou opěrnou zdí na hranici pozemku je pro umístění klasických herních prvků nevyužitelná. I přesto se zde dají hrát různé hry robinsonádního charakteru – na schovávanou mezi kameny a porosty vrb, pod korunami stromů. Do budoucna keřové vrby vytvoří domky a bludiště z větví.
Východním směrem se zahrada postupně rozšiřuje a vytváří druhý herní prostor. V návaznosti na dům vzniká rovina, která je opět využita jako velká herní písková plocha. Přechod z domu do centrální herní plochy je řešen přes dřevěnou palubu/molo, která děti dovede k hlavnímu hernímu prvku celé zahrady – majáku se skluzavkou, sítěmi, lezeckou stěnou a prostorným ochozem. V okolí majáku jsou navrženy dva dřevěné herní domky, jeden na nožičkách a druhý přízemní. Zvláště pak domek na nožičkách svým vzhledem evokuje přímořskou atmosféru. V horní části zahrady se pod korunami stávajících dřevin nachází sprcha s dřevěnou palubou, kde se děti mohou ochladit za horkých dní. Za skupinou stávajících stromů je ukrytá klasická závěsná dvoujhoupačka a travnatý plácek pro míčové hry.
Díky snaze zachovat maximum ze stávajícího terénu jsou v této části zahrady dvě výškové úrovně, přičemž na tu spodní se bude možné dostat díky skluzavce nebo po dřevěných schodech. Na nejnižší úrovni vznikne další herní plocha v rovině, tzv. Krajina pokladů. Poblíž ztroskotaného vraku, leží dvě truhly a všude kolem jsou v oblázcích rozsypané „drahokamy“, které tu zapomněli piráti. V nejvýchodnějším rohu zahrady se nachází dětská zeleninová zahrada se záhonky, ovocnými keři, kompostem, zahradním kohoutem s přípojkou pro hadici ale i ohništěm s posezením.
Obě zahrady doplňuje výsadba borovic, listnatých stromů, popínavých dřevin a keřových vrb se stříbrnými listy (odkaz na jméno města Stříbro). Druhy rostlin jsou voleny tak, aby navodily přímořskou atmosféru.
Střešní zahrada
Pokud je budova školky „korábem“, který veze malé námořníky k vytouženému cíli, je střešní zahrada horní palubou, kde má kapitán své dalekohledy ke správnému nastavení kurzu plavby. Má zde i lodní telefon/tichou poštu na předávání instrukcí dalším námořníkům a spoustu vlajek a větroznaků, aby měl přehled, odkud vane vítr do plachet.
Střešní zahrada navazuje na jednotlivé třídy, přičemž rozšiřuje venkovní pobytový prostor. Plochu zahrady tvoří extenzivní střecha osázená suchomilnými rostlinami. Lokálním navýšením terénu vznikají kopečky osazené vyššími okrasnými travinami a látkovými větroznaky na stožárech, krmítka pro ptáky a vlaječky s námořní tématikou. Zděné zábradlí střešních zahrad v celé délce korunuje linie pěstebních nádob pro okrasné traviny a popínavky.
Autor zahrady: Land05 Ateliér zahradní a krajinářské architektury (Martina Forejtová, Martina Havlová)
Grafika objektu: Artbureau (Jakub Wdowka, Tomáš Smrčka)
Fotografie: Ondřej Tylčer
- Autoři: Barbora Buryšková, Pavel Buryška
- Ateliér: XTOPIX
- Spolupráce: Michal Štěpař, Lukáš Makovský, Radek Prokeš
- Země: Česká republika
- Město: Stříbro
- Ulice, číslo: Prokopa Holého 1740
- PSČ: 349 01
- Suma: 66 000 000.00
- Měna: CZK
- Datum projektu: 2016
- Realizace: 2018
- Užitná plocha: 1 148.00m2
- Zastavěná plocha: 844.00m2
- Plocha pozemku: 2 658.00m2
Související projekty
Související architekti
Související ateliéry a firmy
Mohlo by vás zajímat