XTOPIX - KINONEKINO

Objekt původního kina (kino pohraniční stráže) byl postaven v letech 1958–1959 v rámci akce Z v západní části náměstí Svobody. Jednalo se o první větší stavební dílo místních obyvatel čerstvě osidlujících Planou po odsunu původní německé populace uskutečněném v roce 1946. Způsob lidové výstavby je čitelný ve výrazu budovy směrem do náměstí, ve stavebně technickém provedení, i v umístění na pozemku. Nepodsklepený jednopodlažní objekt nahradil dva původní městské domy. Hmotou nekoresponduje s výškovou hladinou okolních staveb a nepřijímá ani historickou parcelaci.
Budova, nacházející se v městské památkové zóně města, prošla několika částečnými opravami zaměřenými především na úpravu čelní fasády, poslední se realizovala v roce 2009. V průběhu těchto úprav byly mimojiné odstraněny původní výtvarné motivy mezi okny do náměstí. Prostorový plán budovy již delší dobu nereflektoval soudobé požadavky současných kinosálů a svým strnulým řešením bránil i jinému účelu užívání. Stáří a provozní neohebnost představovaly významnou příčinu úpadku návštěvnosti zařízení i kulturního života ve městě.
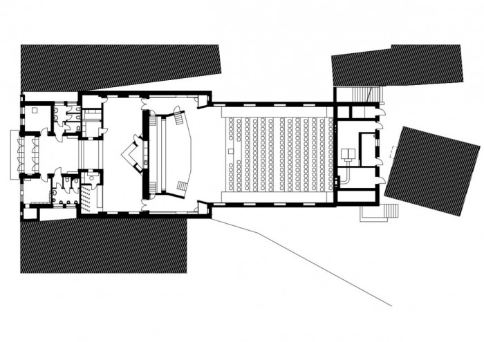
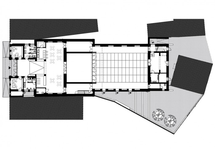
Upravená budova má potenciál stát se iniciační stavbou západní částí náměstí Svobody, v důsledku čehož by i právě ony, dříve významné a dnes upadající objekty zámku, mincovny a hotelu U Medvěda, nabraly nový dech. Nové dispoziční řešení reaguje na aktuální požadavky města – nahlíží na objekt jako na soustavu samostatných, na sobě nezávislých, avšak propojitelných provozů a zároveň se snaží zachovat výraznou osovost charakterizující celou budovu.
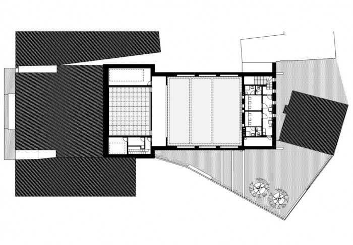
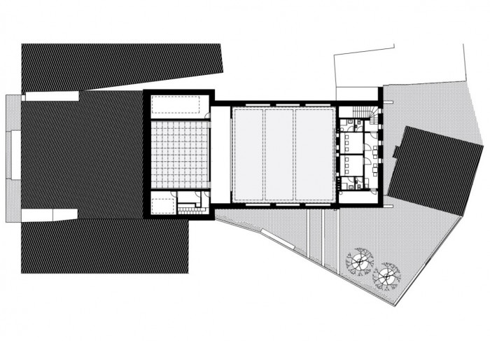
Původní kinosál pojímající fixní elevaci nahradil navzájem slučitelný velký a malý sál s podlahou v jedné výškové úrovni. Původní zahrada při zadní části domu je nově řešena jako veřejný dvůr přiléhající k hlavnímu sálu obohacující veřejný prostor města. Na vstupní prostory upravené v bezbariérovém standardu navazuje foyer, v jehož prostorách se vedle všech nutných servisních místností nachází i provozovna kavárny. S kavárnou přímo sousedí menší sál, tzv. black box s kapacitou min. 30 míst k sezení. Jednotka je provozuschopná bez ohledu na dění v okolních prostorách. Může nabídnout i propojení s kavárnou nebo hlavním sálem. Velikostí, technologiemi i provozní vazbou na servisní křídlo skladů a šaten pro účinkující se velký sál stává centrem kulturních možností. Je vybavený elevovatelnou podlahou, technickým balkonem s live postem pro zvukaře i osvětlovače a s vymezeným prostorem pro promítací techniku.
Hlavní bezbariérový vstup se orientuje do náměstí Svobody. Místnosti za severní fasádou interagují s veřejným prostorem náměstí, stávají se „výkladní skříní“ programové náplně objektu, čemuž je podřízena jejich náplň – prodejna lístků a salonek kavárny. Jižní „záda“ budovy jsou cloněna předstupující sousední budovou cukrárny. Výškový rozdíl sálu a terénu je řešen terasou a širokým vyrovnávacím schodištěm, jež vytváří pomyslný amfiteátr.
Přestože fasáda usiluje o předání výpovědi o vlastní náplni (významné lokální kulturní zařízení) úprava vnější schránky je střídmě volená – mírné snížení okenních parapetů, navrácení meziokenních reliéfů, rekonstrukce reliéfu jezdkyně na koni v čele štítu, volba lehkých odstínů světle šedé, mírně kontrastní zpracování vstupního portálu a soklu budovy kamenným obkladem, obnovení zapuštěného vstupu do objektu. Rámy oken i dveří, klempířské prvky a jiné detaily jsou v antracitovém probarvení.
Zadní fasády ke svému okolí promlouvají nenápadně. Nejvýraznější je vysoký řád tvořený třemi novými otvory (francouzská okna) do hlavního sálu skrze západní fasádu umožňující propojení interiéru s exteriérem či případné denní osvětlení sálu. Otvory jižní fasády servisního křídla jsou eliminovány na nejnutnější a okna v patře jsou proporčně upravena tak, aby odpovídala charakteru celého objektu.
Veškerá profilace říms na fasádě zůstala zachována jak v rozměrech, tak v materiálu. U jižní, východní a západní fasády proběhlo zateplení. U ostatních ploch to bylo vyloučeno z důvodu historické hodnoty, výrazného členění roviny fasády, nebo s ohledem na nedostupnost vnější strany fasády. Jako jemný akcent se v rovině fasády projevuje kamenné opláštění vstupního portálu a soklu na severní straně objektu. V případě dochovaných sgrafitových motivů došlo k šetrnému restaurování. Venkovní prostranství jsou řešena ve stejném materiálovém provedení jako příjezdová komunikace – dlažbou v půlkruhovém kladení tzv. kočičích hlav.
Na specifika dobové realizace objektu a na původní náplň budovy odkazují některé detaily řešení. Na severní fasádě je prostřednictvím Mgr.A. Libora Kalába obnovena meziokenní sgrafitová výzdoba. Její hlavní myšlenkou se nově stávají neurony. Neurony koordinují funkci celého těla. Mohou společně tvořit větší funkční celky, kterým říkáme jádro. S nadsázkou lze obdobně nahlížet na nové KINONEKINO – jako na jakýsi středobod, kde se navazují vazby, spojení a uskutečňuje se setkání všech jednotek obce. Spojuje se zde svět umění, kultury a společenského života. Vznikají tak nové kvalitativní vazby a obohacují tak intelektuální potenciál celého města. Díky tomu, že zde bude divadlo, kino, výstavy, přednášky, se vytvoří nekonečné množství spojení, a to nejenom kulturní, ale především lidské a myšlenkové.
Další detail zrcadlící původní funkci budovy lze objevit na stěnách baru a šaten pro návštěvníky. Ty pokrývá tapeta zobrazující sken 400 m dlouhého filmového pásku týdeníku, jenž se v kině kdysi promítal. Jen opodál, na stěnách foyer, se propisují fragmenty původních peesáckých reliéfů. Oproti zachování originálních výjevů bylo přistoupeno k jejích abstrahování opět rukou Mgr.A. Libora Kalába. Důvodem byla nízká výtvarná kvalita a tendenční dobová tématika. Skleněná plastika zavěšená na stěně knihovny salónku je vytvořena sbírkou starých a původních světel kina.
Odkaz na specifika dobové realizace budovy, tzv. stavbu Z, v rámci níž ruku k dílu přiložili místní obyvatelé, připomíná motiv na bráně oplocení, na níž je prostřednictvím perforace plechu přenesena fotka ze stavby kina z rou 1958.
- Autoři: Simona Ledvinková, Barbora Buryšková, Pavel Buryška
- Ateliér: XTOPIX
- Spolupráce: Lukáš Makovský, Libor Kaláb
- Země: Česká republika
- Město: Planá
- Ulice, číslo: náměstí Svobody
- Datum projektu: 2013
- Realizace: 2017
- Užitná plocha: 604.00m2
- Zastavěná plocha: 609.00m2
Související projekty
Související architekti
Související ateliéry a firmy
Mohlo by vás zajímat


































