Zahradnictví, Podzámecká zahrada v Kroměříži

Výstavba nového provozního a skladovacího zázemí zahrady nahrazuje původní staticky narušené objekty, plocha vzniklá prostorovou redukcí zahradnického provozu je přičleněna k návštěvnické části zahrady.
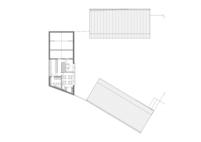
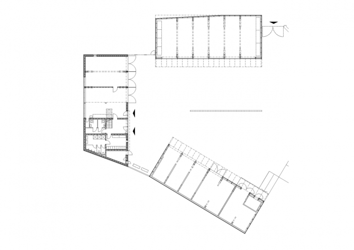
Jedná o současnou interpretaci tématu hospodářského dvora, jako reakce na roztříštěnost přilehlé zástavby se jevilo žádoucí vystavět jednoduchý celistvý areál přiměřeného měřítka způsobem, který je pro celkovou atmosféru zámeckého areálu akceptovatelný. V souladu s daným půdorysným konceptem zadání byla zvolena kompozice tří jednoduchých staveb obklopujících centrální dvůr a umístěných ve směrech odpovídajících postupně rostlému „měkkému“ charakteru místa. Jednotlivé stavby svým provedením detailů přiznávají dobu vzniku, současně ale jejich archaický tvar a lapidární konstrukce vytváří atmosféru hospodářských staveb dob minulých. Na západní straně je umístěn objekt skladů, naproti leží objekt pro garážování zahradní techniky a uprostřed kompozice se nachází budova zázemí zaměstnanců.
Při volbě modřínového dřeva jako hlavního materiálu fasád bylo zohledněno přirozené stárnutí materiálu, konečným stavem je zoxidovaná a vypršená textura dřeva, objekty se tak stanou organickou součástí staré zámecké zahrady. Myšlenka prorůstání nového a starého se realizuje v rámci areálu prostřednictvím využití starých litinových lamp a původní kamenné dlažby přímo v kontaktu s novostavbami.
Objekty jsou navrženy jako lehké zateplené (objekt zázemí zaměstnanců) a nezateplené dřevostavby (garáže a sklady), konstrukční systém všech tří staveb vychází ze základního modulu plných vazeb 3,3 metru, tento rozměr je dále členěn na třetiny a zdůrazněn šikmými prvky v čelních fasádách přízemních objektů. Přiznané nosné části jsou navrženy a provedeny jako klasická tesařská krovová konstrukce krovu s čepovanými a šroubovanými spoji, v zateplené dvoupodlažní části je použita rámová konstrukce zavětrovaná plošnými obklady. Založení objektů je navrženo na betonových pasech; část objektů je založena na pilotách, poněvadž po nimi procházejí velkoprůměrové kanalizační sběrače.
- Autoři: Antonín Novák, Petr Valenta, Eduard Štěrbák
- Ateliér: Architekti DRNH
- Spolupráce: Radek Štefka, Marie Veselá, Martin Daněk, Radomír Veselý, Zdeněk Sendler, Radka Táborová
- Země: Česká republika
- Stavebník: Národní památkový ústav
- Město: Kroměříž
- Ulice, číslo: Sněmovní nám. 1/2
- PSČ: 737 01
- Suma: 20 000 000.00
- Měna: CZK
- Datum projektu: 2010
- Realizace: 2012
- Zastavěná plocha: 803.00m2
- Foto ©: //www.earch.cz/cs/tomas-maly-0">Tomáš Malý
Související projekty
Související architekti
Související ateliéry a firmy
Mohlo by vás zajímat





























