Jaro, léto, podzim, zima… a jaro
Proč?
Když jsme jej objevili, zakázali jsme realizovat projekt, který by vyřezal táhla, tím poničil tektoniku konstrukce a vše nechával obalit sádrokartonem. Hledali jsme cestu, která zachová ducha a logiku prostoru, která vyhoví památkářským požadavkům a zároveň nabídne komfortní bydlení.
Jak?
Zásadní rozhodnutí bylo ponechat vše tak, jak to je. Jedna z našich hlavních zásad zní, že nejdůležitější je rozpoznat, kdy raději nezasahovat.
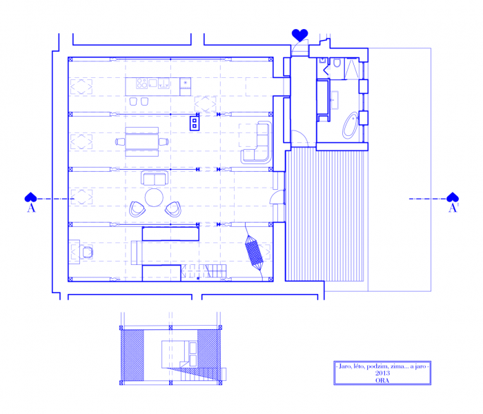
Ale bylo třeba prostor spojit a překonat táhla. Rektifikační oka jsme zvětšili do podoby průchodů. Táhla oddělují jednotlivé „pokoje“. Zdi jsou jen imaginární, stejně jako v Kim Ki-dukově filmu. Už zbývá jen najít kupce, který se pro projekt nadchne.
Komu?
Studie prošla několika fázemi, měli jsme i „rodinnou“ variantu. Nakonec se ozvali stavebníci až z daleké Austrálie – on Australan, ona původem Moravanka, kteří dokázali ocenit autenticitu prostoru. V Austrálii mají obecně úctu k čemukoliv starému, je to tam nedostatkové zboží. Díky tomu jsme mohli zrealizovat minimální variantu, která prostor nijak nedělí a nedrobí.
Se svými sto čtyřiceti metry je byt největší garsonkou široko daleko. Koupelna s chodbou se nachází v původním přístavku. Byt má vlastní rozlehlou terasu, která je přístupná nově proraženým vikýřem. Spí se na boxu v konečné sekci prostoru.
Projekt měl velmi napjatý rozpočet, což občas vedlo ke kompromisním řešením a některým surovým detailům. Nicméně celkovou koncepci se podařilo udržet.
- Autoři: Jan Hora, Barbora Hora
- Ateliér: ORA
- Spolupráce: Matěj Špaček
- Země: Česká republika
- Město: Mikulov
- PSČ: 692 01
- Datum projektu: 2011
- Realizace: 2013
- Užitná plocha: 140.00m2
- Foto ©: Jan Žaloudek
Související projekty
Související architekti
Související ateliéry a firmy
Mohlo by vás zajímat