Diverzita, experimenty, umělá inteligence. Rozdány ceny Olověný Dušan
31. ročník studentské soutěže Olověný Dušan zná vítěze, porota hodnotila projekty vytvořené na Fakultě architektury ČVUT v zimním semestru. Nejlepším architektonickým projektem je Bydlení Libeň Elišky Cibulkové, v kategorii Design získali ocenění Markéta Dvořáková a Petr Brancuský. Mezi architektonickými ateliéry bodoval ateliér Císler–Pazdera, v kategorii designérských ateliérů Fišer–Nezpěváková.
Fakulta architektury ČVUT v Praze , 20. 3. 2024
Soutěž pořádá Spolek posluchačů architektury s cílem přinést externí pohled na výuku a reflexi vyučujícím i studující. Letošní vyhlášení proběhlo ve čtvrtek 7. března na FA ČVUT. Novinkou tohoto ročníku bylo vysílání studentského rádia raDuše, které představilo nominované projekty prostřednictvím živého vysílání.
Vítěze vybíraly poroty složené z nezávislých tvůrců a tvůrkyň. V kategorii Architektura zasedli Tereza Rapsová, Jakub Mareš, Barbora Šimonová, Ivan Jarina a Anna Svobodová. Designérskou porotu tvořili Jakub Pollág, Markéta Kratochvílová a Ihor Sabadosh. Porota designérské části soutěže se tento rok rozhodla udělit ceny dvě: „V dnešní době je diverzita přístupů tak rozmanitá, že není možné ocenit pouze jednoho studenta a prohlásit, že toto je ta správná cesta. Proto jsme se letos rozhodli udělit ceny dvě,” říká porotce Jakub Pollág.
Více k tématu
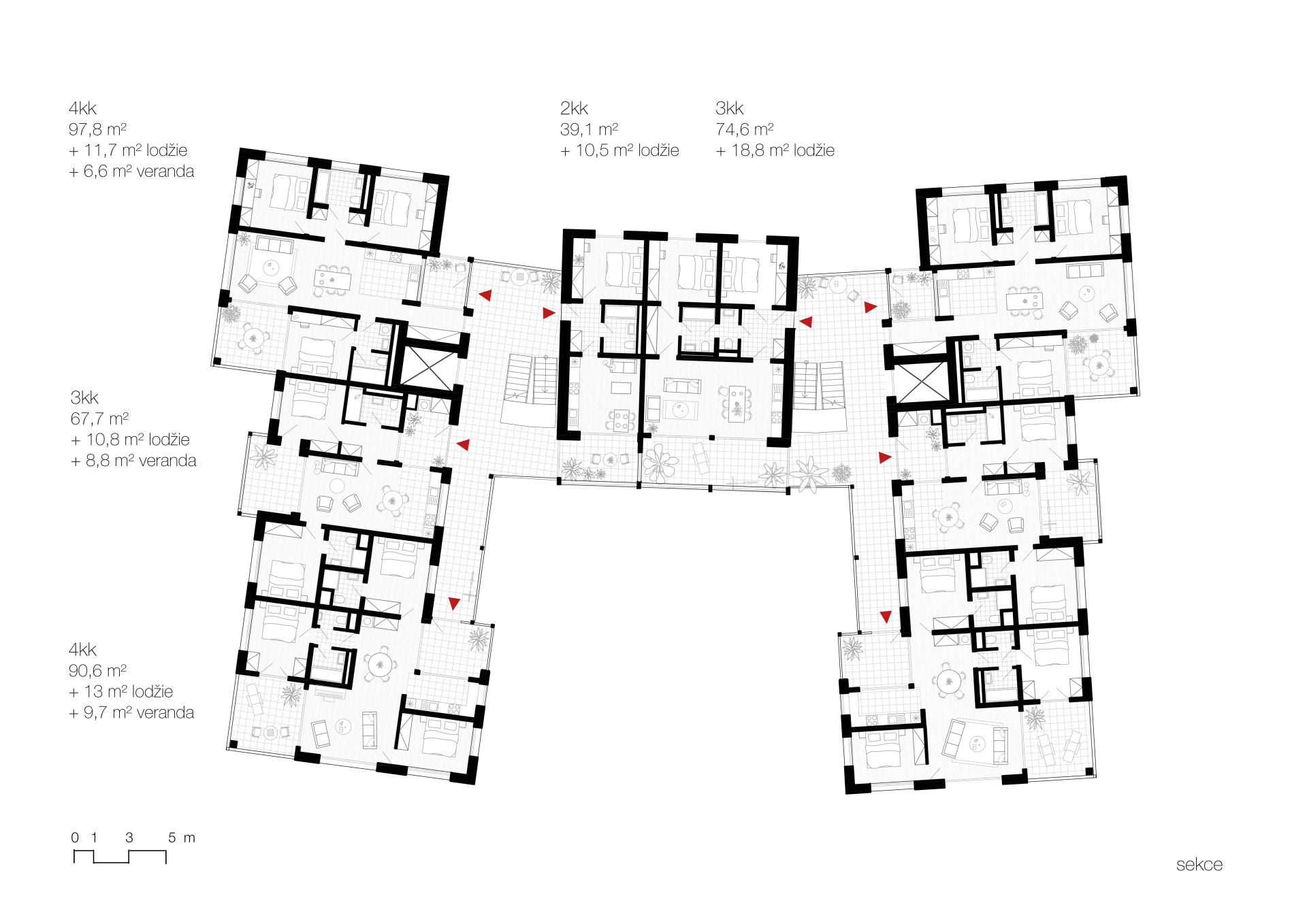
Nejlepší architektonickým projektem se stalo Bydlení Libeň od Elišky Cibulkové z ateliéru Kuzemenský. Návrh bytového souboru poskytuje otevřené, pohodlné a flexibilní bydlení. „Výraz domů není extravagantní či poplatný současnému architektonickému duchu doby. Působí však upřímně, adekvátně, kompozičně velmi vyváženě a v českém prostředí realisticky,” dodává porotkyně Anna Svobodová.

Cenu pro nejlepší architektonický ateliér získal ateliér Císler–Pazdera, který v zimním semestru pracoval na zadání Košíře – 4 bloky, 10 parcel. Porota ocenila vyvážený poměr variability zadání, kvalitu odvedené práce i prezentovaných výstupů: „Každé dílo má tak svojí směrovou linku postavenou na jiné, často odvážné až experimentální lince.”

Markéta Dvořáková z ateliéru Fišer–Nezpěváková získala ocenění v kategorii design za návrh kolekce módních oděvů Emotional Armor, vytvořený ve spolupráci s AI. „Projekt vnáší do světa módy cennou připomínku, že se při navrhování oděvu nejedná pouze o vizuální stránku, ale je důležitá také funkčnost a možnosti využití v současném kontextu problémů moderní doby,” píše v hodnocení porotkyně Markéta Kratochvílová.

Druhou oceněnou prací v této kategorii je návrh Hi–Fi litonových reproduktorů od Petra Brancuského z ateliéru Jaroš. Porotci a porotkyně ocenili detailní zpracování projektu a pečlivě zdokumentovaný proces. „Je zřejmé hluboké porozumění výrobním procesům a to, že Petr ve svém designu postoupil až k řešení komplexních detailů, což se na celkově harmonicky dotáhnutém projektu jasně projevuje,” dodávají v hodnocení.

Oceněným designérským ateliérem se stal Fišer–Nezpěváková se zadáním Umělá inteligence & Design. „V rámci projektů bylo patrné vynikající pedagogické vedení, kdy studující měli prostor pro experiment, hledání cest a pochopení různých nástrojů, které jsou jim aktuálně k dispozici. Dostali možnost nejprve si osvojit proces práce s AI a následně ho využít pro vylepšení svého projektu. Výsledné projekty ve spolupráci s umělou inteligencí měly vysoké reprezentativní a estetické kvality a v mnoha případech kolaborace s AI projekt posunula na výrazně vyšší úroveň,” uvedl za porotu Jakub Pollág.
Výstava v pravém atriu FA ČVUT potrvá do 22. března. Nominované práce jsou k nahlédnutí na stránce soutěže a na webu olovenydusan.cz.