Architektura / interiér

Autentický řád

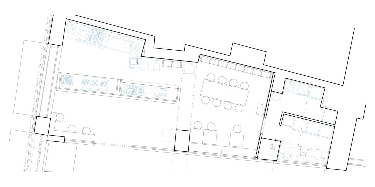
Na rohu Purkyňovy ulice v pražském Novém Městě vznikla restaurace, jejíž interiér je inspirovaném autentickým charakterem asijského tržiště. Představa chaosu či nepořádku je ale mylná, vše je totiž podřízeno čtvercovému rastru. Prostor, kterému vládne přirozená barevnost povrchů, pak zpestřuje zářivé modrozelené logo.

SOA architekti , 26. 10. 2016

  • Autoři: Ondřej Laciga, Ondřej Píhrt, Štefan Šulek
  • Země: Česká republika
  • Realizace: 2016
  • Město: Praha 1 - Nové Město
  • Ulice, číslo: Purkyňova 74/2
  • PSČ: 110 00
  • Realizace: 2016
  • Užitná plocha: 78.00m2
  • Foto ©: Tomáš Buble
  • autor: SOA architekti *
  • publikováno: * 26. 10. 2016
  • zdroj: * Autorská zpráva

Mohlo by vás zajímat

Generální partner
Hlavní partneři