Restaurace Yami Sushi House, kus Japonska v historické Praze
Rekonstrukce restaurace Yami Sushi House v historickém centru Prahy proměnila malý prostor s klenutými stropy v klidné a soudržné prostředí inspirované japonskou estetikou. Architektky z ateliéru annaMAT pracovaly s kontrastem otevřené kuchyně a teplého interiéru ze dřeva, rýžového papíru a tlumeného světla, které podporuje soustředění a intimní atmosféru stolování.
Kateřina Hrachová , 3. 2. 2026
Jít na sushi v historickém domě v samém centru Prahy má samo o sobě zvláštní kouzlo. Restaurace Yami Sushi House v Masné ulici spojuje svět japonské kuchyně s atmosférou staroměstské zástavby a po nedávné rekonstrukci i s interiérem, který na první pohled působí klidně, přirozeně a neokázale. Tlumené světlo, dřevo a bambus tu vytvářejí prostředí, kde se člověk snadno zpomalí a soustředí se na samotný zážitek z jídla.
Yami Sushi House si během let vybudovala silnou pověst mezi místními i zahraničními hosty. Korejský šéfkuchař Jisu Chon dlouhodobě staví koncept restaurace na kvalitě surovin a precizním zpracování, což se odráží i v přístupu k interiéru. Po letech intenzivního provozu bylo potřeba prostor obnovit a dát mu charakter, který by odpovídal současným nárokům, aniž by popřel jeho polohu v historickém domě.
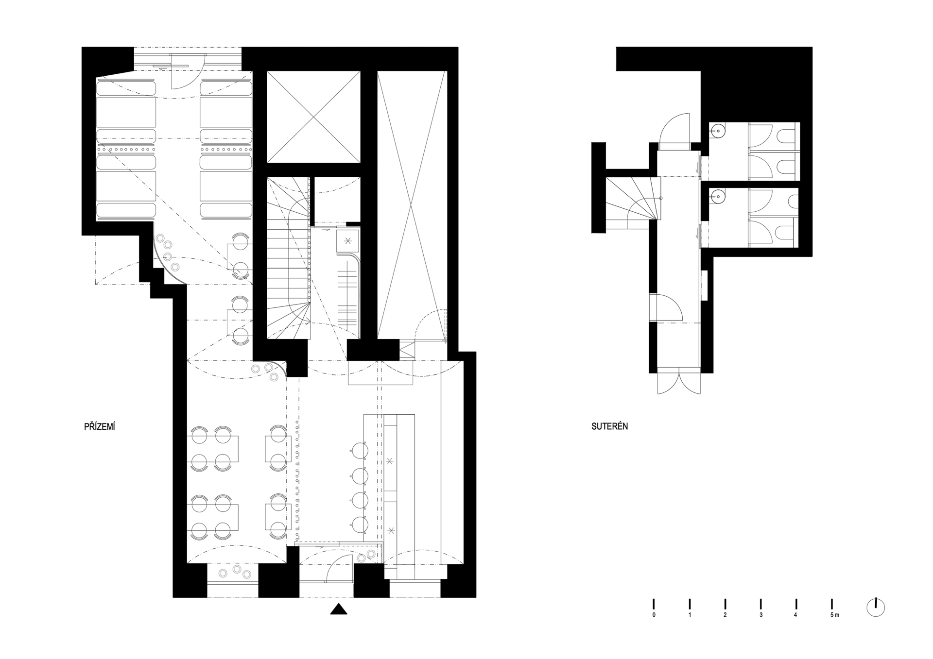
Interiér se nachází v parteru historické budovy s vysokými klenutými stropy. Na ploše pouhých 80 m² se architektkám z ateliéru annaMAT podařilo vytvořit prostor, který nepůsobí stísněně, ale naopak otevřeně a vzdušně. Základem návrhu bylo očištění interiéru od nánosů původních vrstev a doplnění nových prvků inspirovaných tradiční japonskou estetikou, materiálově jednoduchou, poctivou a nadčasovou.

Důležitým motivem je kontrast mezi otevřenou kuchyní, kde vznikají převážně studené pokrmy, a samotným interiérem restaurace, který pracuje s teplými tóny dřeva a jemným, rozptýleným světlem. Výsledkem je harmonické prostředí, které působí uklidňujícím dojmem a podporuje soustředění tedy kvalitu, jež je v rušném městském prostředí čím dál vzácnější. Tlumené osvětlení navíc zvýrazňuje strukturu omítek a přirozenou kresbu použitých materiálů.
Stěny doplňují jemné texturované malby, které odkazují k tradiční japonské krajinomalbě, konkrétně k motivům zapadajícího slunce za horskými masivy inspirovanými tvorbou Hokusaie. Původní zavěšené stropy byly odstraněny, čímž se otevřely pohledy do černé klenby symbolizující noční oblohu. Tato vertikalita v kombinaci se zavěšenými látkami dodává prostoru lehkost a jemný vizuální gradient.

Klíčovou roli zde hraje osvětlení. Teplé světlo je vytvářeno kompozicemi závěsných svítidel z organicky vrstvených plátů rýžového papíru, které světlo rozptylují a podporují intimní atmosféru. Pocit soukromí zajišťují dělící příčky z nepravidelně vrstvených bambusových kmenů – prostor člení, ale vizuálně jej neuzavírají. Motiv bambusu se objevuje i u zakázkových stojacích lamp, které oživují méně využívaná zákoutí restaurace.
Více k tématu
Dispozičně je restaurace rozdělena do tří zón. U vstupu se nachází barové sezení pro jednotlivce v těsném kontaktu s otevřenou kuchyní, kde mohou hosté sledovat práci kuchařů. Střední část tvoří menší stolky s tmavě červenými židlemi a v zadní části jsou umístěny větší stoly s čalouněnými lavicemi pro skupiny návštěvníků.
Veškerý zakázkový nábytek je vyroben ze dřeva ošetřeného tmavým olejem, který ladí s repasovanou dubovou podlahou. Hygienické zázemí se nachází v suterénu a je přístupné po schodišti doplněném nástěnnými malbami symbolizujícími sestup z horské krajiny pod povrch země.

Přestože interiér pracuje s řadou motivů a detailů, jejich sjednocení prostřednictvím materiálů, barev a citlivě regulovaného světla vytváří prostředí, které je klidné, soudržné a příjemné. Rekonstrukce Yami Sushi House tak ukazuje, že i malý prostor v historickém centru města může nabídnout silný a autentický zážitek, který přirozeně doplňuje samotné jídlo.
- Ateliér: Ateliér annaMAT
- Autoři: Anna Matoušková, Adéla Hajná
- Země: Česká republika
- Adresa: Masná 1051, Staré Město, 110 00, Praha
- Realizace: 2025
- Fotograf: Adéla Kremplová
- Osvětlení: Bulb
- Výroba nábytku: Devoto
- Dekorativní výmalby stěn: Vladimír Jeniš
- Užitná plocha: 80 m²