Betonová podesta propojuje sportovní areál nad rušnou silnicí
Sportovní areál v Belgii prošel celkovou revitalizací, během které si architekti dali záležet, aby vznikl jeden propojený celek, přestože jím prochází rušná silnice.
Tereza Staňková , 7. 9. 2023
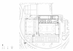
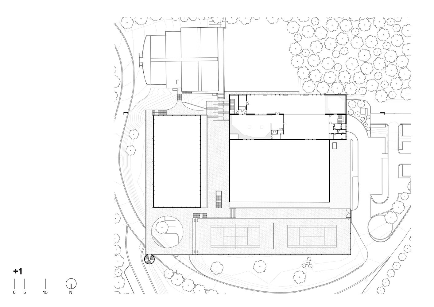
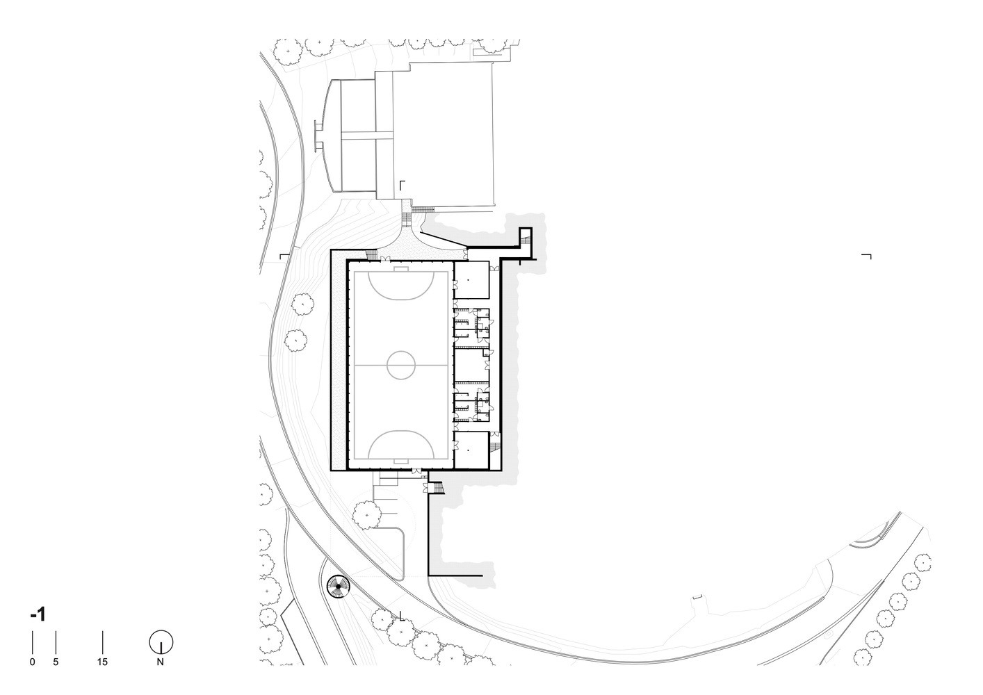
V obklopení lesů, nedaleko belgického města Charleroi navrhl bruselský ateliér Label Architecture nové pojetí místního sportovního areálu. Ve svém návrhu si architekti pohráli se stávajícími budovami, které doplnili o rafinovaně promyšlené novostavby. Areál s názvem La ferme du Château se skládá ze dvou částí, které od sebe dělí frekventovaná silnice.
První fáze projektu s názvem Love pt. I byla dokončena už v roce 2018. Návrh zahrnoval přestavbu starobylé stodoly patřící k blízkému zámku šlechtické rodiny Mérode. Prázdnou stodolu probudili architekti ze spánku díky vybourání šestnácti oblouků, které kdysi sloužily jako dekorativní cihlový vzor na slepých fasádách hospodářské budovy. Prosvětlené prostory byly využity pro potřeby administrativních kanceláří a v podkroví vznikl multifunkční sportovní sál. Kromě stodoly prošel proměnou také zámecký ubytovací trakt a jako bonus přibyla novostavba s garážemi a dílnami.
Více k tématu
Pokud byste se chtěli podívat i do druhé části sportovního areálu, musíte překonat zmiňovanou silnici. Proto se architekti rozhodli do svého projektu zakomponovat betonovou plochu, která sportovcům umožňuje příjemný a bezpečný přechod mezi sportovišti. Betonová podesta se vznáší nad silnicí a je ozvláštněna kruhovou výsečí, skrze kterou mohou návštěvníci sledovat projíždějící vozidla. Díky svažitému terénu je plošina z jedné strany podepřena velkým betonovým válcem s vnitřním schodištěm.
Tato druhá část sportovního areálu, jejíž úpravy probíhaly v rámci projektu Love pt. II, zahrnuje stávající halu s novou přístavbou. Ta funguje na principech zrcadlení. Svou formou a tvarem přebírá řešení původní haly. Jediným rozdílem je cihlová věžička s lezeckou stěnou umístěná na nároží budovy. Ke sportovním halám přiléhají v přehledném uspořádání také šatny a technické zázemí.

V areálu najdeme ještě jednu novou budovu. Poznáme ji podle dřevěné konstrukce, která se z interiéru propisuje až na fasádu. Dřevěné trámy a sloupy jsou zde modulově řazeny do pravidelného rastru. Budova funguje na podobných principech jako její sousedka.
Sportovní komplex provází a scelují cihlové obklady a plochy z vlnitého světle zeleného plechu. Jednotlivé fasády budov pokračují v dialogu díky uměleckému zásahu antverpského konceptuálního umělce Adriena Tirtiauxe, který fasády doplnil různými písmeny. Stačí se párkrát otočit kolem všech budov a můžete si je spojit do několika vět či říkanek.

- Ateliér: Label architecture
- Země: Belgie
- Město: Charleroi
- Realizace: 2021