
Ze starých stájí v Belgii vzniklo ekologické komunitní bydlení se sociálním přesahem
Antverpské studio B architecten dlouhodobě hledá cesty k udržitelné a ekologické architektuře. Názorným příkladem je konverze areálu bývalých zemědělských budov v co-housingové bydlení. Projekt s názvem Q-ville se nachází v památkově chráněné oblasti u belgického Essenu.
Tereza Staňková , 14. 7. 2022
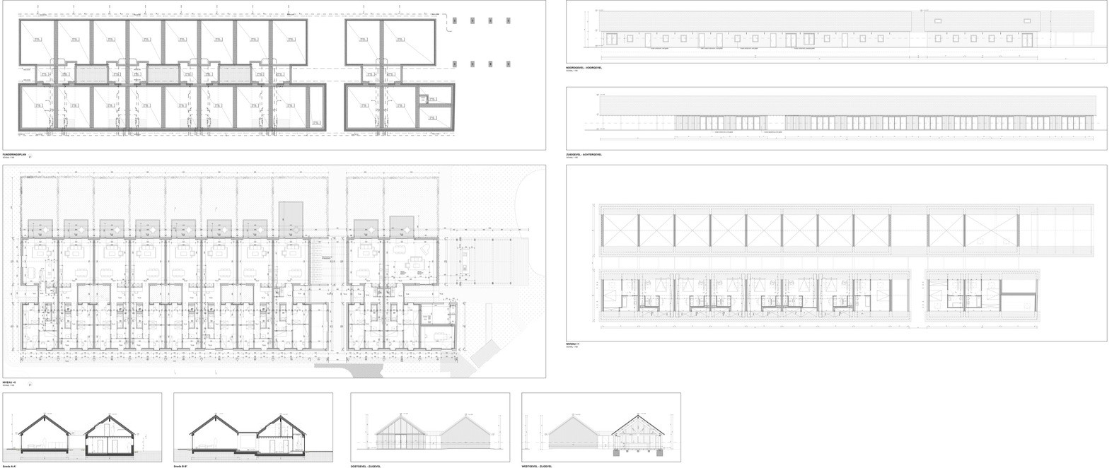
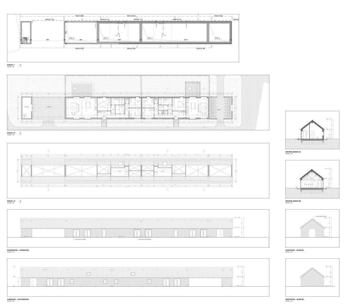
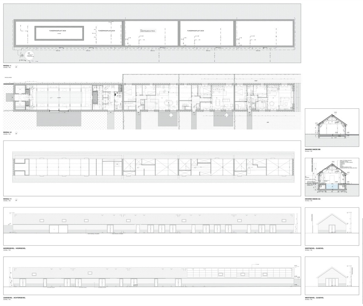
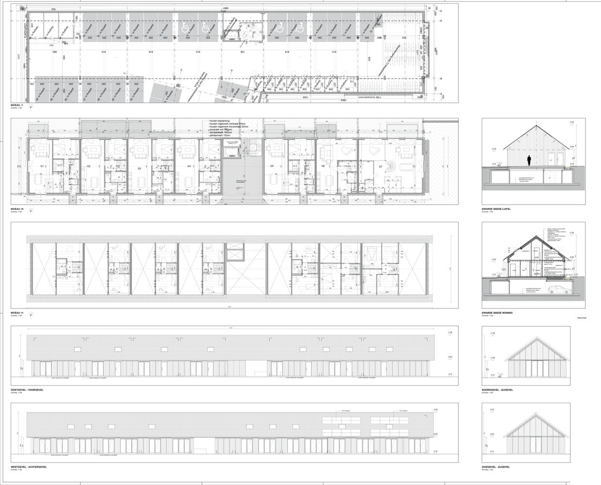
Památkově chráněná oblast u belgického Essenu vyniká svým přírodním a zemědělským charakterem – a nově také inspirativním projektem autonomní ekologické vesnice s takřka nulovou spotřebou energie, kterou tady navrhlo studio B architecten. Domy nevznikly na zelené louce, ale přestavbou starých stájí a dalších zemědělských budov.
Architekti navazovali na historický i přírodní kontext místa. Budovy mají po vzoru původních stájí typické sedlové střechy – ty však prořezávají střešní okna přinášející do interiérů dostatek denního světla. Fasády pak tvoří obklady z cihel a tmavého dřeva.
Více k tématu
Celkem 13 budov poskytuje dostatek místa pro 44 bytů, společenské prostory a služby. Bydlení je možné v bytech s až 4 pokoji, v nabídce však najdeme taky vícegenerační domy. Aby celý soubor držel z urbanistického hlediska pohromadě, propojují jednotlivé budovy dlážděné cesty, přičemž ke každému domu přísluší vlastní zahrada.

Soukromé bydlení doplňují společenské prostory. Obyvatelé mají přístup do komunitního centra s pracovní plochou, krytého bazénu i wellness. Zastřešená terasa s kuchyňkou a jídelním stolem vyzývá ke společnému trávení času a vyšší míře socializace obyvatel. Prostor lemuje přírodní jezírko, ve kterém se dá celoročně koupat po celý rok.

Přírodní ráz oblasti a malá automobilová doprava podnítily architekty k návrhu inovativního systému sdílených aut, včetně dobíjecí stanice na solární energii. Důležitou roli hrají v lokalitě spíše cyklisté, kteří si svá kola mohou zaparkovat ve společných přístřešcích uvnitř areálu.

- Ateliér: B-architecten
- Město: Essen
- Realizace: 2020
- Užitná plocha: 5966 m²