
Bílá šachovnice v Brně. I dům s dostupným nájemním bydlením může mít architektonickou kvalitu
Ulici Bratislavská v Brně doplnil dům s šachovnicovým motivem na fasádě. Postavilo ho město, a jsou tu hlavně sociální nájemní byty menších rozměrů. Rozpočet byl omezený, přesto se podařilo navrhnout střídmý, kvalitní a městotvorný dům.
Jan Bureš , 5. 10. 2023
Městské nájemní bydlení, a především pak to sociální, v našem prostředí stále nevzniká v takovém měřítku a s takovou koncepcí, jak by vzhledem k aktuální bytové krizi mělo a jak je tomu například v západních zemích včetně Skandinávie, Nizozemska či Francie. Přesto se jedná o velmi důležitou součást celkové skladby bydlení. I proto jsou projekty podobného typu příjemnou zprávou.
Více k tématu
Jeden povedený příklad se nedávno podařil v Brně. Bytový dům se startovacími byty pro mladé rodiny a osoby s omezenou schopností pohybu podle návrhu brněnského studia CL3 doplnil proluku mezi činžovními domy z předválečného a meziválečného období na ulici Bratislavská. Ta je součástí tzv. „brněnského Bronxu“, který se postupně proměňuje v moderní rezidenční čtvrť.

Zadání znělo jasně. S poměrně malým rozpočtem navrhnout a zrealizovat bytový dům s menšími byty 1+kk a 2+kk, který bude odpovídat svému účelu, ovšem tak, aby to nebylo na škodu jeho architektonické kvalitě. Nebo slovy architektů ze studia CL3: „Použitím levných materiálů, absencí detailů a efektivním prostorovým řešením se pokusit dokázat, že úspornost a kvalita obytného prostředí nemusí být vzájemně v rozporu.“
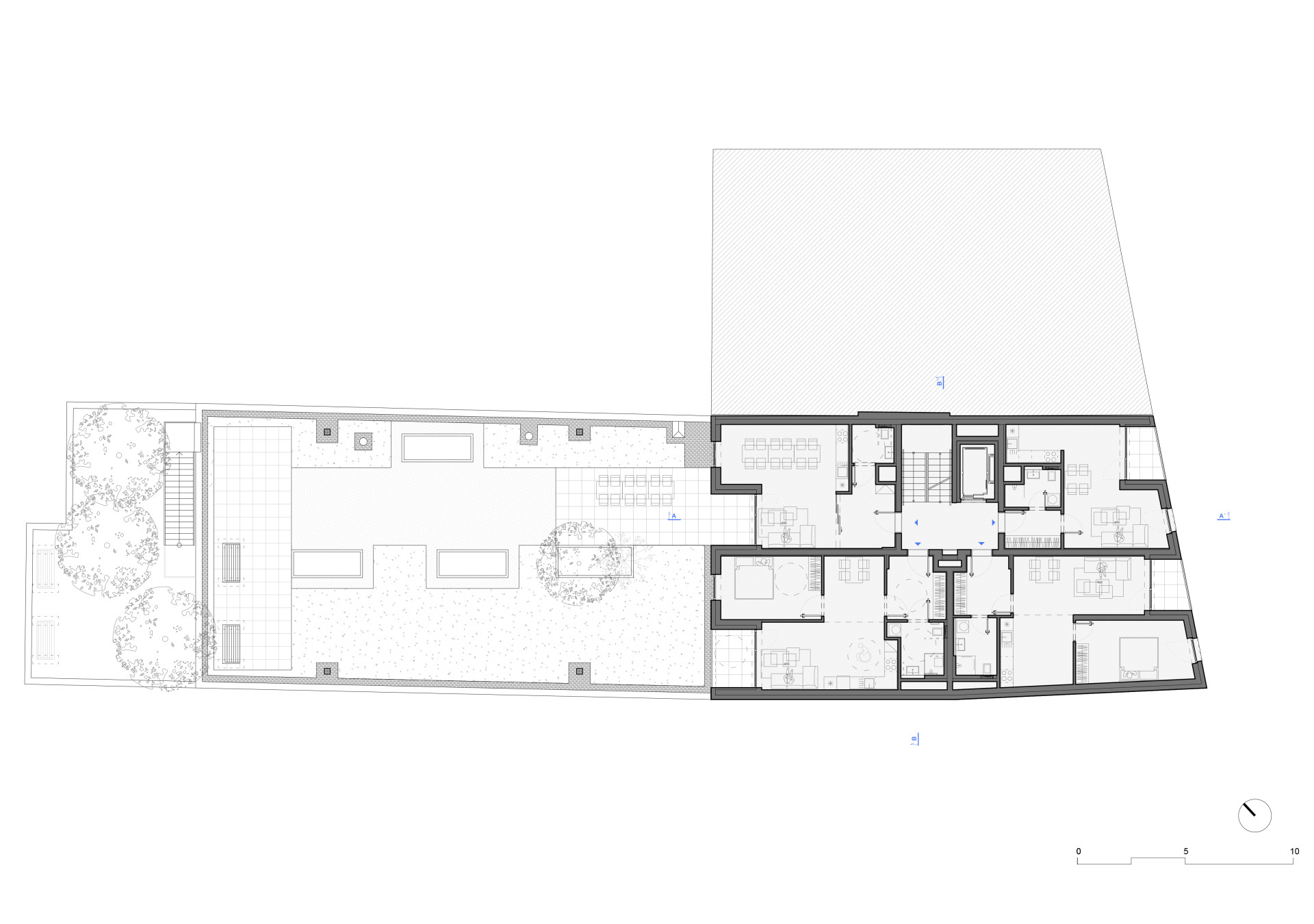
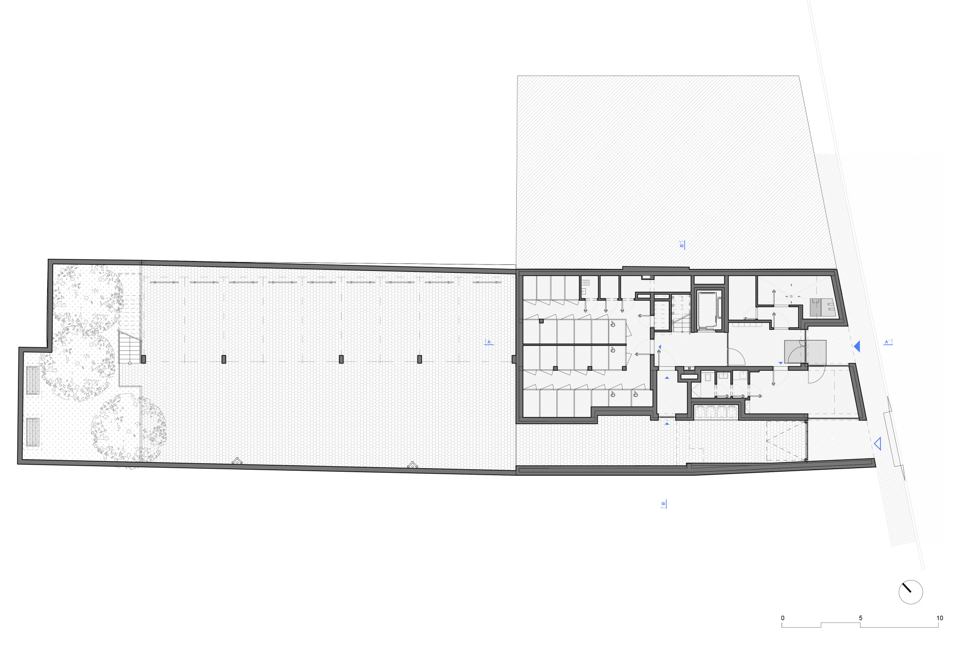
Každé patro domu má čtyři byty, dva orientované do ulice a dva do dvora. Byty v prvním patře jsou přizpůsobeny osobám s omezenou možností pohybu. Parter obsahuje jednu komerční jednotku, technické zázemí, sklepní kóje a zastřešenou garáž ve dvoře. Vzhledem k rozpočtu stavby, a bezesporu i složité situaci úzké proluky, objekt není podsklepen. Podzemní stavby, u bytových domů především s garážemi totiž bývají nejdražší složkou rozpočtů staveb.
Charakteristickým poznávacím znakem stavby je fasáda, která střídáním oken a zasunutých lodžií vytváří geometrický prostorový motiv šachovnice. Fasáda je svým pojednáním proměňujícím se prvkem města, který především v noci, když se mezi bílými plochami rozsvítí okna a lodžie, vytváří měnící se scénografii ulice. Čisté bíle plochy s jednoduchým zábradlím lodžií vzdáleně odkazují k meziválečnému funkcionalismu, který v Brně zachoval nemalou stopu.

V podobně jednoduchém duchu je koncipován také interiér domu, především jeho schodiště, které je u bytových domů centrálním prvkem. Primární barvou je opět bílá, která ovšem, aby nepůsobila až příliš klinicky, je doplněna akcentem tmavší rudé barvy na podlaze, zábradlí a dveřích do bytů, čímž do prostoru vnáší dynamiku a živost. Poslední patro schodiště je ve střeše zakončeno kruhovým světlíkem, který ve své jednoduchosti a provedení celý prostor osvětluje až „chrámovou“ atmosférou.
Bytový dům Bratislavská 51 dokazuje, že i s omezeným rozpočtem, kdy si architekti „nemohou tolik vymýšlet“ lze vytvořit kvalitní bytový dům, který nestrádá na architektonické kvalitě. Jeho hlavní kvalitou je však ta sociální - v době rostoucí bytové krize přispívá i chybějícím fragmentem bytové politiky Česka.

Doufejme, že podobných příkladů bude přibývat a také tomu, že proměna „ brněnského Bronxu“ na moderní rezidenční čtvrť nebude následovat klasické gentrifikační schéma, ale stane se opravdu heterogenní městskou čtvrtí nabízející různé formy kvalitního bydlení různým vrstvám populace.
- Autoři: Roman Gale, Radek Pasterný, David Bureš
- Ateliér: CL3
- Země: Česká republika
- Město: Brno
- Adresa:: Bratislavská 51, 602 00 Brno
- Projekt: 2017-2020
- Realizace: 2022
- Užitná plocha: 1780 m²
- Náklady: 40 mil. Kč
- Investor: Statutární město Brno