Bydlení v mini bytě? Každé místo musí mít víc funkcí a lepší je kulatý stůl
Architekt Ivan Zachar dostal na dvacet pět metrů čtverečních obývací pokoj, pracovnu i postel pro návštěvu. V malém bytě je potřeba počítat s každým centimetrem, říká.
Karolína Vránková , 6. 11. 2023
Jednopokojový byt v centru Prahy obývají dvě studentky. Doma se učí, odpočívají, vaří, spí, to vše na 25 m², přičemž hlavní obytná místnost má jen sedmnáct metrů. Jak všechny tyto činnosti nějak účelně naskládat na malý prostor, nad tím uvažoval architekt Ivan Zachar; sám jako student strávil několik let v šestnáctimetrovém bytě, takže s problémem byl seznámený důkladně. „Důležité je vše používat víceúčelově, každé místo v bytě musí mít více funkcí,“ říká.
Více k tématu
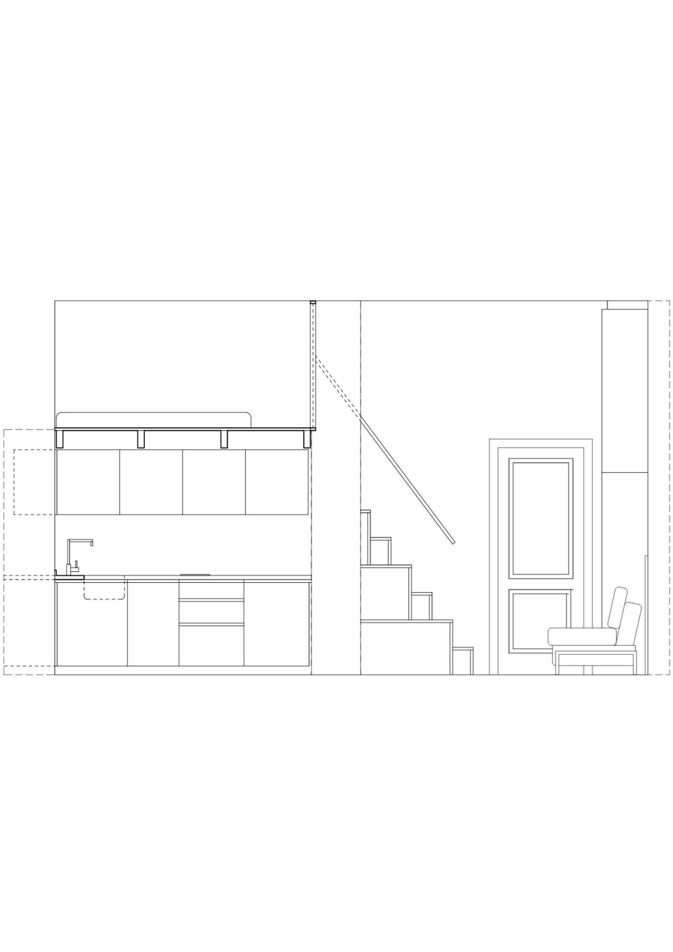
Tuhle myšlenku důsledně uplatnil. Křeslo je rozkládací, takže může posloužit jako lůžko pro návštěvu. V nice pod oknem na místě parapetu vznikl malý pracovní stůl. Minimální kuchyňskou linku doplňuje deska na zdi, která může sloužit jako rozšíření pracovní plochy na vaření, ovšem při večírku se může proměnit v barový stůl. A dále je tu ještě jeden mnohoúčelový kus vybavení, „Zacharův C stolek“, jak si architekt pojmenoval svůj skladný a multifunkční autorský nábytek.

Je to jednoduché dřevěné „céčko“, které se dá využít na mnoho způsobů – v jedné poloze slouží jako lavice na sezení pro dva nebo jako konferenční stolek. Když se postaví na výšku, je vysoký jako barová židle anebo se může postavit vedle křesla, umístit na něj notebook a je z toho další pracovní místo.
„Také je potřeba hlídat, aby každý kus nábytku byl jen tak velký, jak je nutné. A dobře stanovit šíři koridorů, aby člověk pohodlně prošel. V takovém bytě je prostě potřeba počítat každý centimetr,“ říká architekt. Proto je podle něj vhodnější kulatý stůl než hranatý, prostor kolem něj lépe „plyne“.
Obvyklé dilema při zařizování malých bytů je, kam umístit spaní. Tady však nebylo na výběr, prostor je malý, ale vysoký skoro 3,5 metru. Galerie na spaní byla tedy logickým řešením. Bylo ovšem potřeba se vypořádat se sloupem, který v místnosti stál. Výstup na patro se kvůli němu musel vejít na 56 cm šířky. Architekt to vyřešil variací na takzvané „mlynářské schody“, které se tradičně používají všude tam, kde by klasické schodiště bylo příliš úzké a strmé.

Byt je v přízemí s okny do dvora, a světla je tu málo. To byla konstanta, s níž bylo potřeba se smířit. Aby byt nepůsobil ponuře, využil architekt zemité tóny na stěnách a přírodní dřevo. Z dubu je podlaha, nábytek i spací patro. „V malém bytě je důležité, aby byl interiér jednoduchý a vizuálně klidný a používalo se co nejméně materiálů. Prostor to harmonizuje,“ vysvětluje architekt. Proto udělali ze dřeva i obklad za kuchyňskou linkou. Je to namáhané místo vystavené vlhku a kuchyňské špíně. „Časem ten obklad ztmavne. Ale podle mé zkušenosti to nevadí. Dřevo stárne hezky a i poškrábaná architektura je pořád architektura,“ říká Ivan Zachar. A když je něco kvalitně navrženo a provedeno, stopy stárnutí nevadí.
- Ateliér: Architekti Zachar
- Autoři: Ivan Zachar
- Země: Česká republika
- Město: Praha 1
- Užitná plocha: 25 m²
- Projekt: 2022
- Realizace: 2023
- Realizace interiéru: Vasitruhlari.cz