
Namísto jednoho bytu dva. Jsou malé, ale ne stísněné, na dvaceti metrech čtverečních zůstal prostor i pro umění ze seškrábaných omítek
Autoři jim říkají Vršovická dvojčata, vznikly rozdělením jednoho většího bytu na dvě (skoro) identické garsonky „modrák“ a „žluťák“. Jejich barevnost se odvíjí od textury původních omítek.
EARCH.CZ , 30. 8. 2023
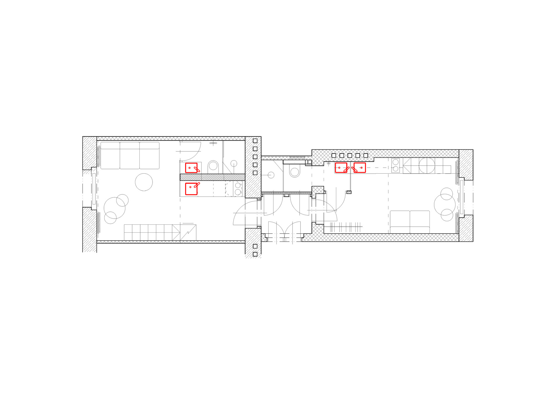
V Pražských Vršovicích se v činžovním domě z přelomu 19. a 20. století nacházel byt o přibližně 40 metrech čtverečních. Jednalo se o dvoupokojový byt s podélnou dispozicí a okny na obou stranách. Architekti ze Studia Reaktor se rozhodli rozdělit už tak vcelku malý byt na dvě skoro identické garsonky. A jak se jim to povedlo?
Více k tématu
V místě původního zádveří vznikla malá hala spojující oba byty. Dispozičně širší byt si pro svou barevnost získal přezdívku „modrák“. Je oblečený do tmavých odstínů, charakteristickou modrou doplňují černé doplňky a kouřové sklo. Jeho soused/kolega „žluťák“ je celkově světlejší, hraje si se světlými odstíny – béžovou, zelenou a šedou v kombinaci s průsvitným prosklením. Byty mají velmi podobné dispozice, hlavním rozdílem je poloha koupelny. Jedna zůstala na svém původním místě a druhá byla přidána do širšího levého bytu.

„Skleněné příčky mezi kuchyní a koupelnou v obou prostorech propouští světlo do útrob půdorysu. Koupelnový nábytek hmotově navazuje na kuchyňskou linku, vzniká zde optický klam zrcadlení dřezu, baterie a skříněk. Jedná se však o pomyslné rozdvojení odkazující se na rozdělení celku,“ upřesňují koncepci prostoru a jeho prvků autoři.
Aby bylo možné na tak malé ploše vytvořit spací prostor, který by zároveň nebyl obývákem, jak je u garsonek běžné, rozhodli se architekti vybudovat nad kuchyní a koupelnou vestavěné spací patro. Tvoří ho ocelová konstrukce doplněná o zábradlí vypletené nerezovými lanky, svým dekorem odkazuje na secesní zábradlí z exteriéru domu. Schodiště do spacího koutu vede po stěně a jeho spodní část vyplňují skříně a přihrádky, aby ani kousek prostoru nepřišel nazmar.

Razantní proměna bytu měla zůstat patrná. S novými prvky a materiály kontrastuje stará, nahrubo oškrábaná omítka, která se podobá abstraktní malbě. Tímto kontrastem celý interiér ožívá.
„V polovině dispozice zůstala zachována stará výmalba. Drobné praskliny dodávají stěnám opravdovost, dokreslují prostor jako umělecké dílo. Na malbách přibyly jen lineární značky od elektrikáře pro osazení vypínačů a poznámky dělníků,“ uzavírají autoři.

- Autoři: Jakub Heidler, Tereza Komárková
- Ateliér: Studio Reaktor
- Spolupráce: Stanislav Heidler, Blanka Heidlerová
- Země: Česká republika
- Město: Praha 10
- Projekt: 2022
- Realizace: 2023
- Užitná plocha: 20 m²
- Náklady: 2 mil. CZK