
Byt s klenbami a výhledem na Národní divadlo
Byt na Janáčkově nábřeží v Praze získal nový interiér, který rozvíjí historické řemeslné detaily. Každá místnost má vlastní barevnou náladu i specifický výraz, dohromady vše drží motiv kazet z původních ostění oken a dveří.
Adéla Vaculíková , 12. 8. 2025
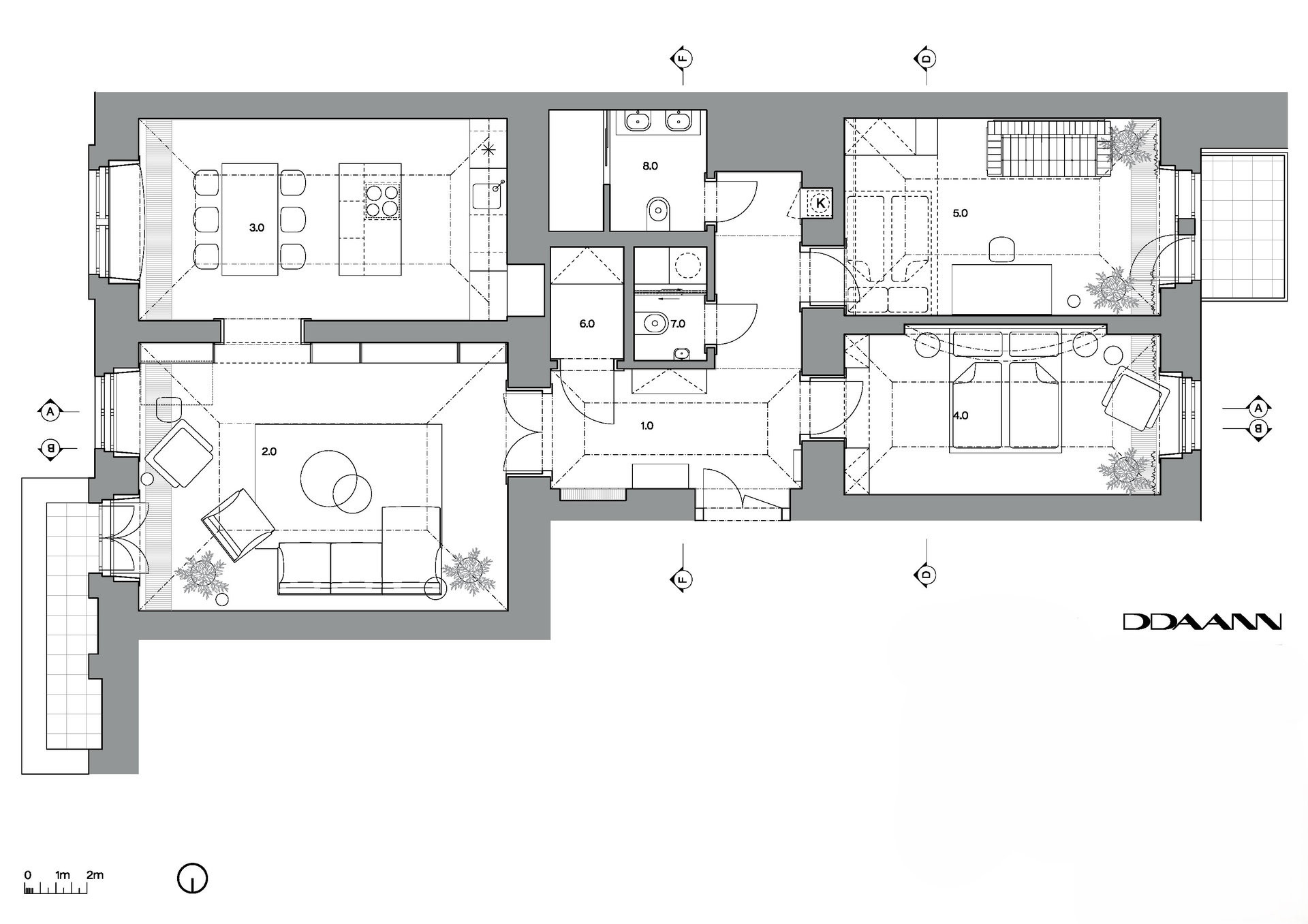
„Hlavní kvalitou bytu jsou jeho velkorysé místnosti s vysokými stropy, výhledy na protější nábřeží s budovou ‚zlaté kapličky‘, orientace ložnic do klidného dvora a historické řemeslné prvky ve formě kazetových ostění dveří a oken,“ popisují klíčové vlastnosti bytu architekti z ateliéru DDAANN. Rekonstruovali ho v jednom z činžovních domů z 19. století na Janáčkově nábřeží. Právě historické prvky se pro návrh interiéru staly výchozí inspirací.

Nejvíce architekty oslovily dochované kazety na ostění dveří a oken, jejich principy pak vtiskli i do nového vestavěného vybavení napříč bytem. Jemně profilované fazety na něm vymezují pole, která se materiálově mění. Pracovalo se s dýhou, perforovaným plechem, umělým kamenem, sametem – ovšem nikdy ne najednou, pro každou místnost se zvolila vlastní kombinace.
Obývací pokoj je světlý, knihovna v bílo-béžových tónech zabírá celou čelní stěnu. V kuchyni, do které se odtud prochází portálem (s původními kazetami), architekti použili tmavé barvy. Kuchyňská linka s ostrůvkem je tmavě modrá s bílými a zlatými prvky, které se hodí k honosnému stolu na míru.

Dále se upravovala ložnice, v té je nejvýraznější polstrované čelo postele čalouněné v azurovém sametu – efektní a zároveň pohodlné řešení, při čtení knížky se člověk opře do měkkého. Z posledního pokoje je pracovna, v té se opět vsadilo především na neutrální barvy. Kromě práce pokoj slouží také k ubytování hostů. Spaní se tady vybudovalo na vloženém patře, pro které bylo pod vysokým stropem dostatek místa, díky bílé barvě prostor vůbec nezahlcuje.
Více k tématu
Ve všech místnostech jsou současně efektní zrcadlové klenby – po kazetách další výrazná stopa a důkaz, že je byt v historickém domě. Díky celobílé výmalbě ale nejsou tolik výrazné, architekti na ně upoutali pozornost výraznými závěsnými svítidly, v každé místnosti jinými, ovšem vždy seskupených do klastrů – působí to efektně a současně, ovšem člověku se při pohledu na ně začnou evokovat velkolepé starožitné lustry, jaké tady asi kdysi visely. Staré a nové na sebe v tomto bytě zábavně odkazuje.
- Autoři: Daniel Rohan, Daniel Baudis
- Ateliér: DDAANN
- Země: Česká republika
- Město: Praha
- Adresa:: Janáčkovo Nábřeží
- Realizace: 2024