
Do prázdné budovy v centru Bělehradu umístili srbští architekti vlastní studio. Upozorňují na problematiku nevyužívaných domů
V centru Bělehradu stojí od roku 2002 opuštěná výšková budova, ze které po letech chátrání zbyl pouze železobetonový skelet. Toho v roce 2019 využili architekti z místního architektonického studia Stattwerk, kteří do jednoho ze třinácti podlaží vložili dřevěný objekt sloužící jako zázemí jejich kanceláře. Cílem intervence je upozornit na chátrání nevyužívaných budov.
Vojtěch Eliáš , 19. 3. 2023
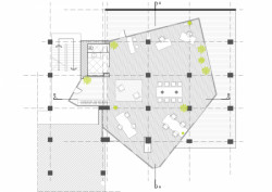
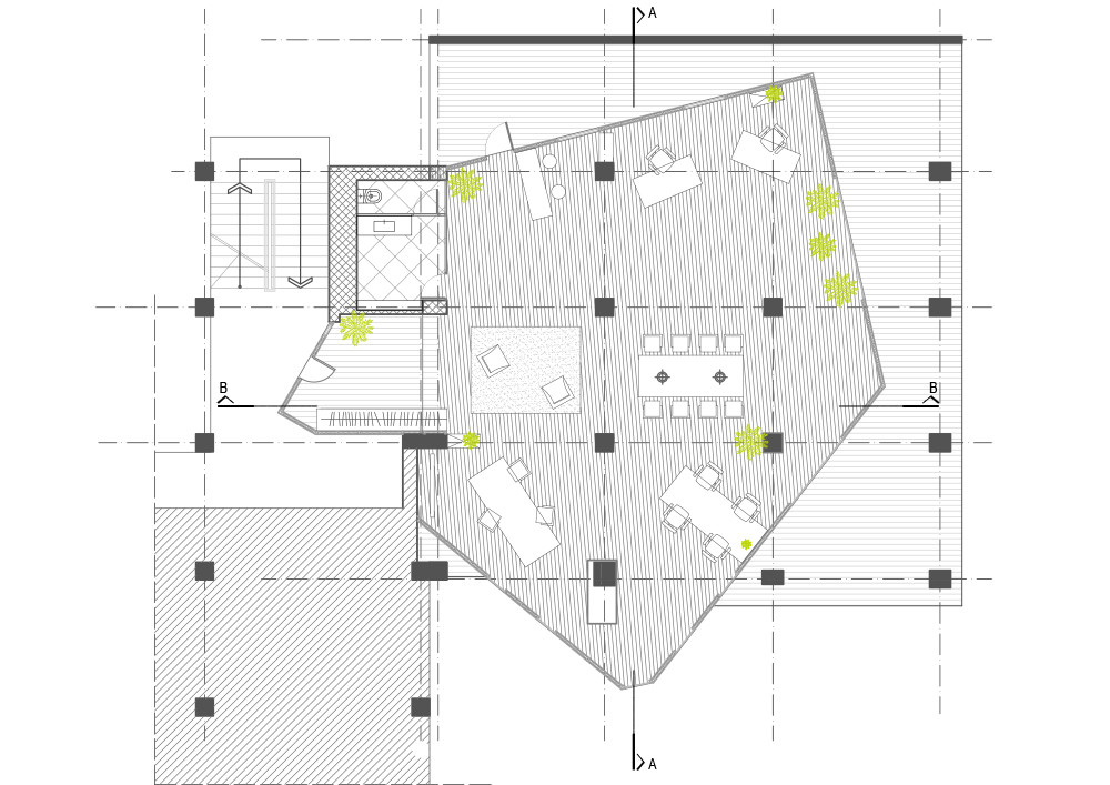
Studio architektonického ateliéru z Bělehradu Stattwerk se nachází ve čtvrtém patře budovy na ploše necelých 200 metrů čtverečních. Dřevěný objekt má nepravidelný půdorys vycházející ze tvaru srdce. Část objektu navíc vystupuje ven z budovy, čímž už z dálky přitahuje zvídavé pohledy kolemjdoucích. Celá hmota tvoří jeden velký otevřený prostor s výhledy do třech světových stran. Konstrukci z OSB desek zvenku pokrývá černý nátěr, v interiéru je ponechána bez úprav. Otevřenou plochu studia rozděluje pouze nábytek a poličky s drobnou zelení. V interiéru najdeme pouze nábytek vyrobený na míru, který zároveň slouží k rozčlenění prostoru kanceláře. Stoly s nohami z roxorových tyčí slouží pro jednání s klienty, jako konferenční stolky nebo ke hře ping pongu.
Budova v centru Bělehradu vznikla v 60. letech pro potřeby společnosti Energoprojekt (tehdy slavné stavební firmy), od 80. let pak sloužila jako sídlo Beobanky. Od roku 2002 ale stojí bez využití. Proto se místní architekti rozhodli najít její další využití. Pomocí instalací a dalších intervencí navíc vyzývají k šetrnosti a hledání náplně pro ostatní opuštěné stavby, které představují celou řadu problémů nejen po celém Srbsku, ale i v dalších zemích včetně České republiky.
Více k tématu

V roce 2018 nechalo studio Stattwerk zpracovat studenty architektury z bělehradské univerzity návrhy rekonstrukce a dostavby opuštěné bělehradské budovy. Jejich dalším projektem je pak instalace “BIOTOP”, kterou zpracovávali studenti digitálního umění. Ti pomocí pláten umístěných ve všech patrech stavby vytvořili velký pulzující strom v centru města.
I když budova stále zeje prázdnotou, stává se postupem času místem pro konání veřejných a uměleckých aktivit i pouličního umění. Studio Stattwerk tak postupně vdechuje prázdnému skeletu druhý život.

- Ateliér: Stattwerk Beograd
- Země: Srbsko a Černá Hora
- Město: Bělehrad
- Ulice, číslo: Zeleni venac 18
- PSČ: 11000
- Datum projektu: 2017
- Realizace: 2017
- Užitná plocha: 189.00m2