
Architekti Kilo a Honč ukazují, jak proměnit panelákový byt v atraktivní bydlení
Byty v panelácích není vhodné zatracovat, jen se s nimi musíme naučit dobře pracovat, tak aby mohly nabídnout atraktivní bydlení také pro mladší generace. To tvrdí autoři radikální rekonstrukce bytu v Bratislavě, který překvapuje monochromatickou barevností i prořezanými otvory.
Matěj Beránek , 7. 7. 2022
„Přijde nám mimořádně důležité vyjádřit se k tématu bydlení v ‚panelácích‘. Současná situace se na trhu s nemovitostmi, obrovské finanční nároky na získání nemovitosti a mladé rodiny, jejichž způsob života je neslučitelný s prostory, které tyto byty nabízejí. Abychom dokázali tyto domy udržet, je potřeba ukázat, že je není nutno zatracovat a že je možná jejich adaptace pro dnešní potřeby,“ říkají architekti Richard Kilo a Matej Honč.
Více k tématu
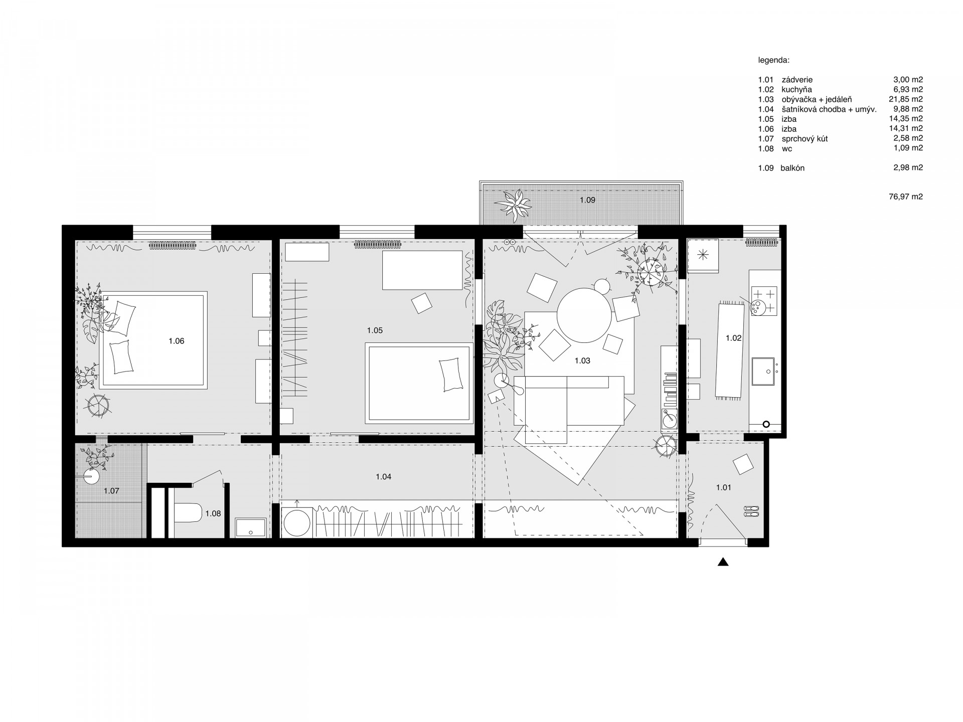
Kompletní rekonstrukce se týkala bytu v panelovém domě ze 60. let s výměrou 75 metrů čtverečních. Stávající rigidní dispozici definoval skeletovo-panelový prostorový rám s osovým rozměrem 3,9 x 3,9 metru – kvůli tomu byt nabízel jen uzavřené místnosti. „Tuto prostorovou mřížku se snažíme uchopit více jako nositele základního ohraničení prostoru a nikoli jako nedotknutelný element striktně definující jednotlivé prostory,“ rozvádí autoři návrhu.“
Aby mohli architekti vytvořit otevřenější a propojenější dispozici, navrhli několik nových otvorů do stávajících konstrukcí, tak aby se jednotlivé prostory mohly nadechnout a prosvětlit. Betonové panely nechali architekti prořezat, takže pomocí osově řazených otvorů vznikají nečekané průhledy napříč dispozicí. Nové tvory jsou dimenzované tak, aby nebylo potřeba ocelových překladů a rámů. Došlo také k propojení kuchyně s obývákem, tak aby vznikl jeden velký otevřený prostor, snížení počtu dveří a přisvětlení chodby otvory z obytných místností.

„Všechny tyto intervence přispívají k vytvoření plnohodnotného, vzdušného, inspirativního a otevřeného prostoru a pomáhají tak při hledání dostupného řešení bydlení pro mladé lidí,“ tvrdí architekti.
- Autoři: Richard Kilo, Matej Honč
- Ateliér: Kilo / Honč
- Země: Slovensko
- Město: Bratislava
- Projekt: 2021
- Realizace: 2022
- Užitná plocha: 76,9 m²
- Fotograf: Matej Hakár