Dvojčata, která jdou příkladem. Rodinné domy zaujmou rafinovanou hrou s rozložením hmot
Rodinné domy na severu Prahy svým obyvatelům poskytují dostatek soukromí, zároveň ale nepřestávají komunikovat s okolním veřejným prostorem. „Službu“ architektům z ateliéru SENAA prokázal i nerovný terén, který vilovým stavbám vždy přidá něco na atraktivitě.
EARCH.CZ , 14. 9. 2022 / Advertorial
Vily ve svahu
Rodinné domy zasazené do Šáreckého údolí na severním okraji Prahy vstoupily se svým střídmým a moderně působícím výrazem do poměrně komplikované situace. Vedle toho, že se snaží reagovat na architektonický ráz místa, se musely vypořádat i s atypickou parcelou se silně svažitým terénem. Architekti z brněnského studia SENAA se ale s úkolem vyrovnali maximálně elegantně.
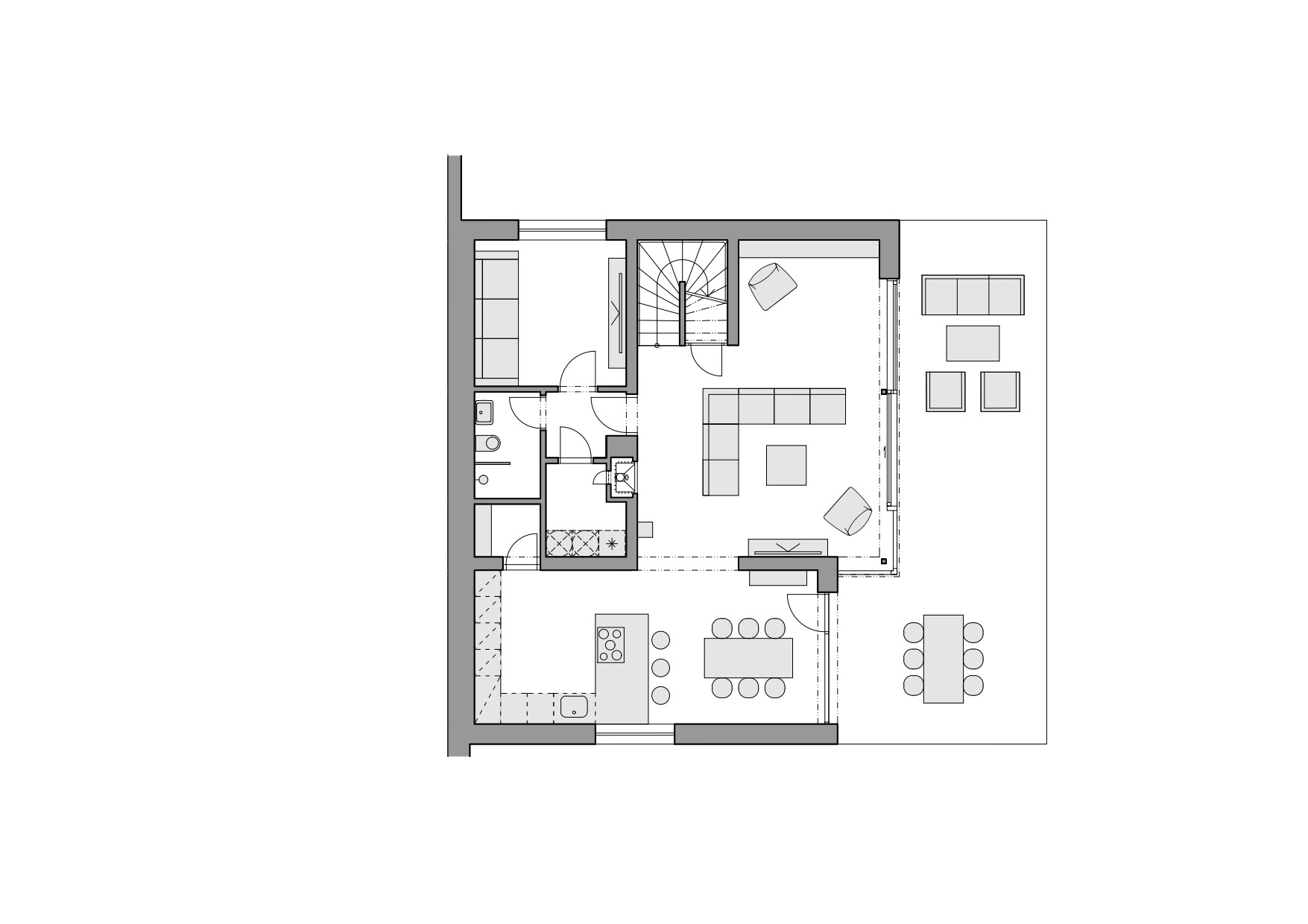
Dva na první pohled stejné domy stojí na parcele zalomené do půlkruhu, úplně totožné ale přeci jen nejsou. „Domy mají základní kompozici hmot stejnou, liší se však v dílčích částech jako je vstup, vjezd, venkovní opěrné stěny i schodiště,“ podotýkají architekti a vybízejí k bližšímu prohlédnutí jednotlivých staveb. Změny v rozmístění hmot a systémů schodišť jsou dány především členitým terénem. Architekti totiž museli vyřešit velké převýšení mezi úrovní ulice vedoucí nad domy a zahradou, které místy dosahuje až šesti metrů.
Více k tématu
V souladu s terénem
Architekti situaci nápaditě vyřešili prostornými vstupními terasami, které jsou napojeny na příchod z ulice. V případě krajního domu se k ní terasa přimyká ihned, u domu vedlejšího je vše propojeno zakřiveným schodištěm. „Důležitým spojujícím prvkem obou domů je důsledná práce s osazením na terén a zakomponování domu do svahu, propojení zahrady pomocí betonových a ocelových schodišť,“ podotýkají architekti Václav Navrátil a Jan Sedláček ke způsobu vetknutí novostaveb do terénu.

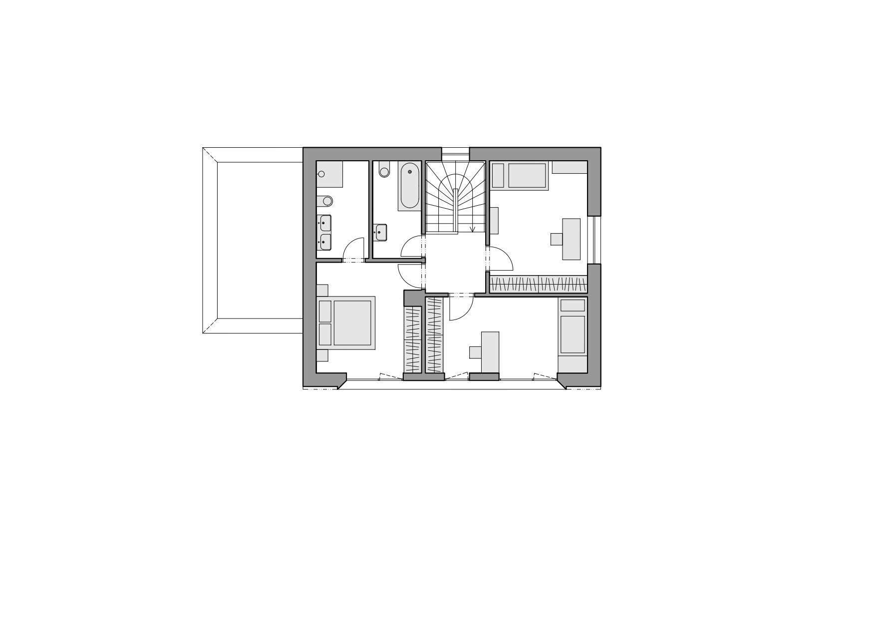
Oba domy mají tři podlaží a jsou postaveny za použití zděných systémů z cihel Heluz. Nadzemní úrovně jsou vyhrazené převážně ložnicím, dětským pokojům, koupelnám nebo šatně. Hlavní obytný prostor se nachází v přízemí – může se tak zcela propojit se zelení v zahradě. „Hlavní výhled z celého domu je směrem na protilehlý svah s dominantou kostela sv. Matěje,“ dodávají architekti. Zahradním fasádám dominují velkoformátová posuvná okna zasazená v dřevěných rámech, která jsou místy přetažená až přes roh, interiéry tak působí maximálně vzdušně.

Architekti rovněž usilovali o to, aby novostavby do svého prostředí maximálně zapadly i z hlediska svého tvarosloví. Ve zcela současné realizaci proto použili několik prvků inspirovaných tradiční architekturou. Vedle sedlových střech, které domy začleňují do místního střešního panoramatu, je to i pro lokalitu specifický druh plotu. „Jednotícím prvkem typickým pro tuto lokalitu jsou tzv. hanspaulské ploty, které tvoří spárované zdivo z bílých cihel a dřevěná výplň,“ dodávají autoři na závěr.
Architektům ze studia SENAA se v Šáreckém údolí podařilo realizovat domy, které si i přesto, že jsou obklopeny silnicí z obou stran, zachovávají velkou míru soukromí. Vedle důmyslné práce s terénem, který z jedné strany umožnil přízemí s obytnými prostory zanořit pod úroveň ulice, je to i kultivovaný plot, který dům cloní z pohledu druhého. Ačkoliv skutečně brání přímému průhledu do zahrady, je maximálně přívětivý i z ulice – efekt neprostupných hradeb, stále aktuálního nešvaru postihujícího architekturu rodinných domů, se tak zde nekoná.
- Ateliér: SENAA
- Autoři: Václav Navrátil, Jan Sedláček, Kateřina Zabadalová, Jan Gadziala
- Země: Česká republika
- Město: Praha
- Realizace: 2017-19
- Použité zdící prvky: Heluz FAMILY