
Ke staré jizerskohorské chalupě připojilo studio Mjölk transparentní přístavbu ze skla
Chalupa v Jizerských horách je nově plná pohledového betonu, mosazi a skla. Rekonstrukce a částečná dostavba horského domu starého asi 130 let ale rozhodně nepůsobí jako tvrdé převrstvení. Původní konstrukce se zde přátelsky potkávají s křehkou současnou vrstvou.
EARCH.CZ , 10. 2. 2023
Architekti z libereckého studia Mjölk citlivě zrekonstruovali chalupu v Jizerských horách. Na stavbě z konce 19. století nechali vyměnit (a místy doplnit) její původní dřevěné konstrukce. Dostala také nový obklad ze sibiřského modřínu a šindelovou střechu. Nezůstalo ale jen u rekonstrukce, ke staré chalupě se totiž připojila i ryze současná přístavba.
„Dům jsme opravili s myšlenkami na budoucnost, ale zároveň jsme se nechtěli vzdát všech těch krásných, divokých a nepohodlných vlastností, které mu zůstaly z minulosti. Zachovali jsme, co jen šlo. To zbylé jsme doplnili novou kvalitou, která se s minulostí nesnaží soutěžit,“ komentují svou realizaci architekti.
Více k tématu
Nová transparentní přístavba se k hmotě chalupy ze dřeva a kamene připojila ze strany. Nachází se na místě, kde původně stála kůlna a nově rozšiřuje hlavní obytné prostory v přízemí. Přístavba je využívaná jako obývací pokoj propojený s kuchyní, zůstává však stále v kontaktu s místnostmi v původní chalupě. Nové lité betonové podlahy obývacího pokoje se tak dostávají do kontaktu se starým masivním kamenným zdivem nebo světlou pecí a kamny v původní světnici.
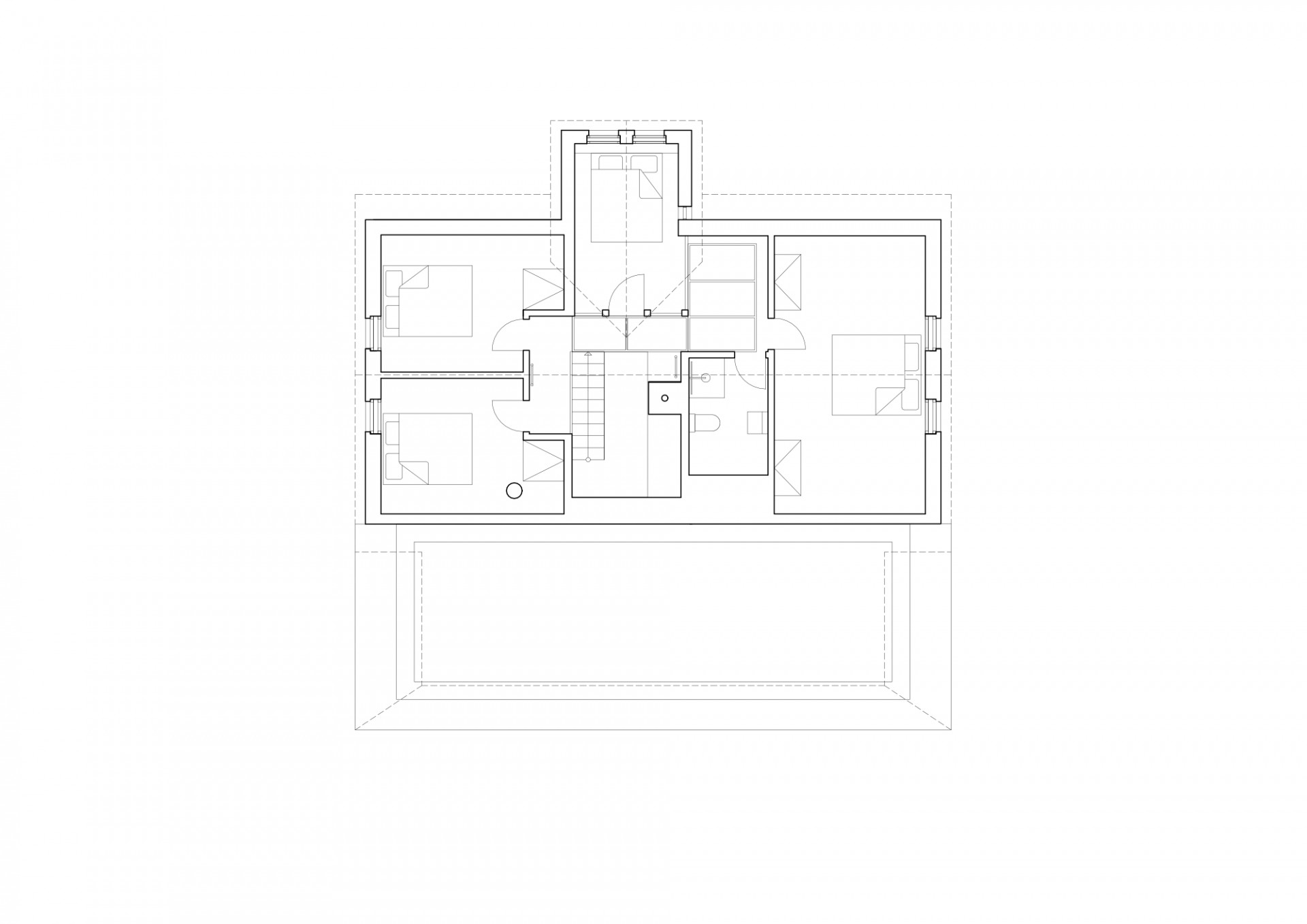
Přístavba s ocelovou konstrukcí obalená velkoformátovým bezrámovým zasklením zůstala pouze přízemní. Podkroví chalupy, kterému dominuje dřevěná konstrukce krovu, je určené pro spánek. „Velká dětská ložnice je zároveň i hernou, kam se mohou za nepříznivého počasí přesunout všechny dětské aktivity. Pro další dvě ložnice byly předobrazem klasické pokoje horských chalup,“ popisují náplň podkroví architekti. Stejně jako v přízemí zde hraje důležitou roli sklo. Na nové ocelové schodiště propojující přízemí s patrem přivádí světlo kulatý světlík s vypouklým zasklením. Chodby mezi jednotlivými ložnicemi zase mají prosklené podlahy.

„Interiér jsme vybavili decentně. Uzavírá celkovou filozofii našeho přístupu k rekonstrukci. Nechtěli jsme do domu násilně umisťovat kousky světového designu. Většinu nového vybavení tvoří autorský nábytek a doplňky, které jsme sami navrhli. Odráží se v nich kvalita ruční práce řemeslníků z Jizerských hor, kteří tu stále žijí a pracují,“ říkají o vybavení interiéru architekti.
Jednoznačně nejspecifičtějším prvkem realizace je pak zapojení lesklého mosazného obkladu. Materiál zrcadlící své okolí pokryl celý strop obývacího pokoje a také ocelovou konstrukci přístavby. „Kontrast a zároveň harmonie mezi klasickou světnicí a novým přístavkem je to, oč v naší architektonické hře šlo,“ charakterizují svou realizaci architekti ze studia Mjölk.

- Ateliér: Mjölk architekti
- Země: Česká republika
- Adresa:: Polubný, Kořenov, Liberecký kraj
- Projekt: 2018
- Realizace: 2020
- Zastavěná plocha: 189 m²
- Užitná plocha: 121 m²
- Hrubá podlahová plocha: 239 m²
- Plocha pozemku: 3364 m²
- Dodavatel: Aron house s.r.o.
- Interiér: Sollus nábytek s.r.o.