Kilo Honč vs. panelákový byt v Bratislavě: Panel snese hodně. Každý takový byt může nabídnout kvalitní bydlení
Rekonstrukce bytu v bratislavském paneláku od Richarda Kila a Mateje Honče šla až na dřeň samotných panelů. Proč by se lidé neměli bydlení v panelácích bát? Jak předefinovat stísněné dispozice bytů? A jak by zrekonstruovali celý panelák?
Adéla Vaculíková , 10. 10. 2022
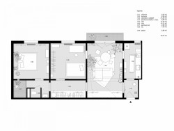
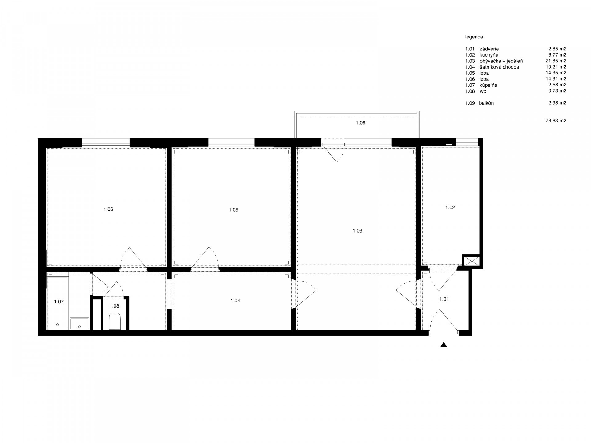
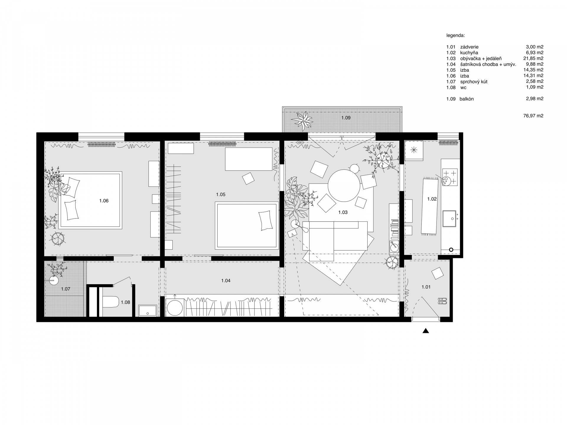
Byt v panelovém domě v Bratislavě je po vaší rekonstrukci plný ostrých průřezů. Jak těžké je prořezat se panelem? Co takový panel z hlediska statiky snese?
Richard Kilo + Matej Honč: Je dôležité mať špecializovanú firmu zo skúsenosťami, statický posudok a podanú minimálne ohlášku, v závislosti od toho, o aké steny ide. Do betónu sa reže pílou na betón, ktorá pripomína karbobrúsku. Je možné viesť mokrý rez alebo suchý v závislosti od podmienok. V obývanom dome je lepšie ísť suchým spôsobom kôli zatekaniu vody cez podlahu do susedných bytov. Nevýhodou je však vyššia prašnosť. Panel znesie veľa. No vždy treba posúdiť konkrétnu situáciu, nakoľko je to aj veľmi tažký konštrukčný systém a najmä pri nižsích podlažiach treba otvory vystižovať oceľou, aby nedošlo k deformácii zo záťaže vlastnou váhou konštrucie.
Prakticky jste nezměnili původní dispozici, místnosti vzájemně propojují pouze průřezy. Nezůstalo v bytě až příliš příček? Mění se dispozice bytu lépe v paneláku nebo v klasickém zděném domě?
Dispozícia sa určite jednoduchšie mení v tehlovom dome, kedy je nenosné priečky možné vybrať celé. Panelové konštruckie obsahujú zväčša nosné prvky aj vo vnútri dispozície. Preto je s týmito pôdorysmi pracovať náročnejšie. Aj cena za vybúranie tehlovej priečky je nižšia ako za rezanie do betónu, kde sú navyše tony odpadu. Dispozícia sa z tohto pohľadu nezmenila tak dramaticky, no strategicky vybranými prierezmi sme docielili otvorenosť, prepojenie jednotlivých miestností, presvetlenie a značné pretransformovanie celkového fungovania v byte, kde pôvodná skeletová konštruckia figuruje len ako akýsi relikt.
Více k tématu
Bydleli jste sami někdy v paneláku? A pokud ne, co by vás přesvědčilo se do něj nastěhovat?
Obaja sme z paneláku. Dokonca sme susedia. Presvedčilo by nás práve dobré riešenie bytu ako takého.
Šli byste do komplexní rekonstrukce celého panelového domu (nikoli jen interiérů)? Jak by vypadala?
Určite a veľmi radi. V zahraničí a v súčastnosti aj doma sú príklady ako sa s panelovým bytom dá pracovať. Nám sa páči prístup ateliéru Lacaton Vassal, ktorý v Bordeaux zrealizoval predsadené zimné záhrady pred panelový dom. Získali zaň cenu Mies van der Rohe. V naších končinách by sme hľadali samozrejme riešenie adekvátne situácii, lokalite a domu. Určite by sme sa snažili zatraktívniť, zväčšiť priestor bytov samotných.
Myslíte si, že se dá udělat dobrý byt opravdu v jakémkoliv paneláku z období socialismu?
Samozrejme. Niektoré priestory majú lepšie predispozície ─ výmera, svetlá výška, rozmery balkónov, loggií, konštrukčný systém ─ iné horšie. Určite sa však dá z týchto bytov spraviť kvalitné a súčasné bývanie.

Sami říkáte, že byty v panelových domech není potřeba zatracovat, ale stačí se s nimi naučit pracovat a přizpůsobovat je současnému způsobu život. Co byty v panelových domech obecně postrádají?
Ich dispozície sú určené pre inú generáciu a samozrejme iný režim ─ kde sme mali byť všetci rovnakí. Byty sú veľmi štrukturované, uzatvorené, všetky priestory sú vzájomne oddelené, nie je miesto pre spoločné fungovanie.
Umí podle vás architekti na Slovensku a v Česku s panelákovými byty zacházet?
Určite vedia. Myslím si skôr, že tých príležitostí ešte nebolo nebolo toľko.
Jaký je váš vztah k panelovým domům? Měnil se časem?
Panelové domy sú naše nechcené dedičstvo, s ktorým sa musíme naučiť žiť a pracovať. Nie je cesta ich všetky pobúrať. Sú svedkom doby a spoločnosti.
