 
					
                    				
					
                                                    Architektura
                                                /
                                                    bytové domy
                                            
					
			Kuba & Pilař architekti kontextuálně doplnili brněnskou čtvrť souborem 4 viladomů
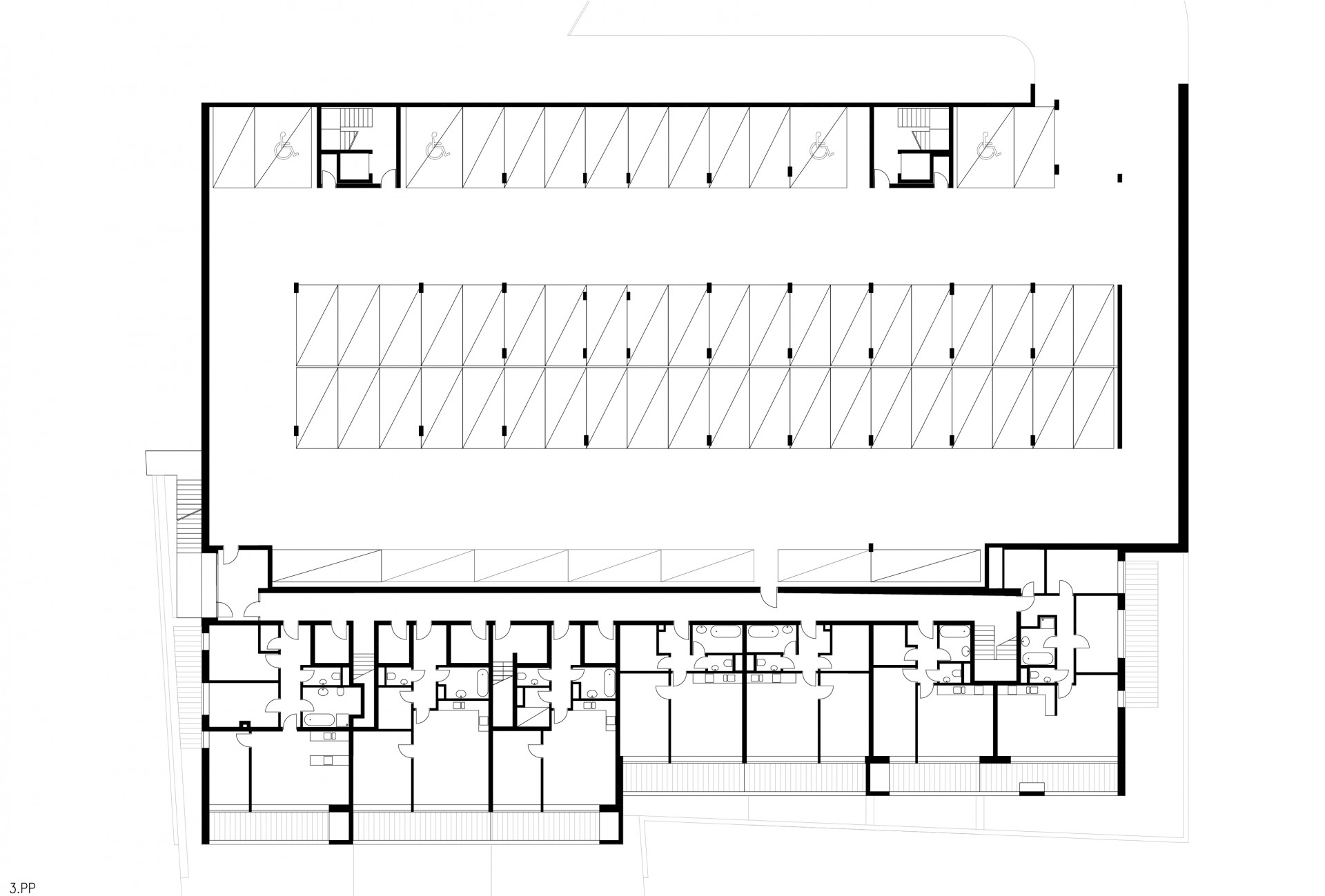
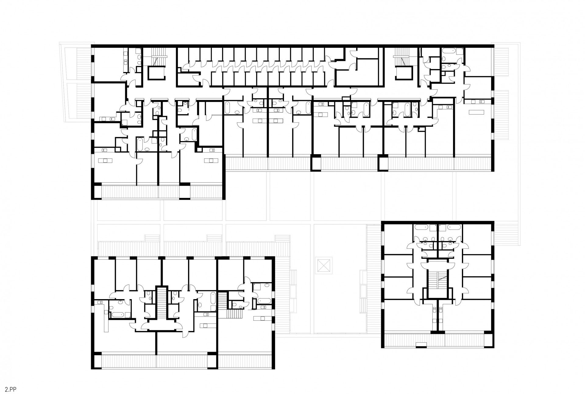
Architektonické studio Kuba & Pilař architekti dokončilo soubor čtyř viladomů pro brněnskou Masarykovu čtvrť. Ta je typická svou vilovou zástavbou převážně z funkcionalistické éry. Rezidenční čtvrť doplnili autoři o rezidenční soubor, který hmotově navazuje na její charakter a svým obyvatelům poskytuje kromě dalekých výhledů také třeba zahrádky na střeše parkovací podnože propojující všechny čtyři domy.
Kuba & Pilař architekti , 9. 8. 2021
- Autoři: Tomáš Pilař, Ladislav Kuba, Wojciech Wilczek, Jan Kopecký
- Ateliér: Kuba & Pilař architekti
- Země: Česká republika
- Město: Brno
- Ulice, číslo: Neumannova 578/17
- Datum projektu: 2018
- Realizace: 2020
- Užitná plocha: 3 316.00m2
- Zastavěná plocha: 3 322.00m2
- Plocha pozemku: 4 036.00m2
 
                             
                             
                             
                             
                             
                                 
            
         
            
         
            
         
            
         
            
         
            
         
            
         
                             
                             
                             
                             
                             
                             
                             
                             
                             
                             
                             
                             
                             
                             
                             
                             
                             
                             
                             
                             
                             
                             
                             
    
	 
            		 
            		 
            		 
            		 
            		 
            		 
            		 
            		 
                     
                     
                     
            		 
            		 
            		 
            		 
            		 
                     
					 
                                                                                                             
                                                         
                                                         
                                                                                                             
                                                         
                                                         
				 
				 
				 
				 
				 
				 
				 
				 
				 
				 
				 
				 
				 
				 
				 
				 
				 
				 
				 
				 
				 
				 
				 
				 
				 
				 
				 
				