Architektura / rodinné domy

Minimalistická kostka zasazená do chaotické dělnické kolonie

Fasádu kompaktního rodinného domu v hornoslezském Krnově vizuálně rozčleňují pouze černé obdélníky s okny. Elegantní bílá kostka o malé zastavěné ploše 86 metrů čtverečních splňuje při vynaložení do nejnižších finančních prostředků všechny požadavky klienta. Svým minimalistickým zpracováním se vyčleňuje z nesourodé zástavby bývalé dělnické kolonie.

Atelier 38 , 9. 1. 2018

  • Autoři: Tomáš Bindr, Petr Doležal
  • Ateliér: Atelier 38
  • Země: Česká republika
  • Realizace: 2017
  • Zodpovědný projektant: Radomír Pauler
  • Město: Krnov
  • Ulice, číslo: Petrovicová
  • Datum projektu: 2015
  • Realizace: 2017
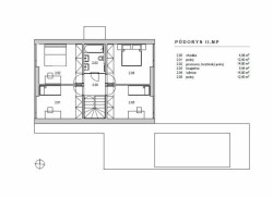
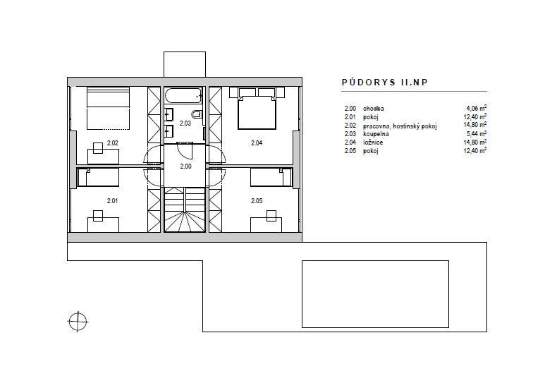
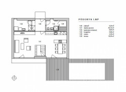
  • Užitná plocha: 128.00m2
  • Zastavěná plocha: 86.00m2
  • autor: Atelier 38 *
  • publikováno: * 9. 1. 2018
  • zdroj: * Autorská zpráva

Klíčová slova:

minimalismus

Mohlo by vás zajímat

Generální partner
Hlavní partneři