Moderní vila v Utrechtu vychází z tradičních nizozemských domů
Do rezidenční zástavby okrajové části Utrechtu, na břeh řeky, navrhlo místní studio EVA architecten rodinnou vilu, která vychází z klasických nizozemských domů. Tradiční tvarosloví ovšem architekti pojali po svém - stěny do uzavřené části pozemku navrhli jako maximálně otevřené výhledům a klasickou sedlovou střechu rozbili praktickými světlíky, které do interiéru přivádí dostatek slunce. Moderní přístup k náveh se projevil i v materiálovém řešení, kde režné zdivo (tradiční materiál pro nizozemské stavebnictví) doplnil plášť z hnědého měděného plechu.
EARCH.CZ , 3. 1. 2019
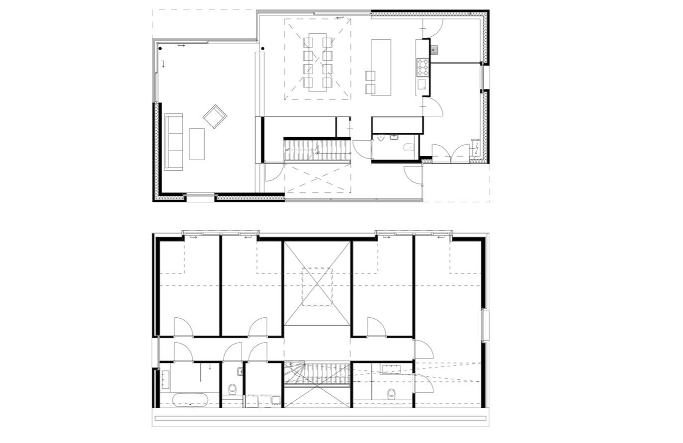
Rodinný dům se nachází přímo na hrázi a architekti jej umístili na pozemek tak, aby ze svých oken nabízel výhled na říčku Hollandse IJssel. Zatímco stěna směrem k řece nabízí velké prosklené plochy pro výhledy, do ulice se dům uzavírá, aby majitelům poskytl dostatek soukromí. Dům svou formou odkazuje na sousední domy v původní zástavbě, odlišuje se od nich ale současným zpracováním.
Měděná střecha a cihly byly zvoleny ve stejném odstínu červenohnědé barvy, aby dům působil jako kompaktní celek. Interiér navrhli EVA architecten ve spolupráci se studiem NEST. Vnitřní dispozici organizuje dřevěné jádro, které ukrývá schodiště, úložné prostory a další vybavení. Díky tomu tak lze zbytek plochy nechat otevřený a volně ho využít. Technické zázemí domu se nachází u uzavřené uliční stěny, takže všechny pokoje v patře mohou disponovat výhledem na vodní tok. Prostor patra osvětlují střešní světlíky orientované směrem do ulice i velká okna do zahrady.
Na energetickém managementu domu se podílí konstrukce i orientace budovy. Otevřená severní strana dovoluje pronikat světlu, ale ne slunci, zatímco uzavřená jižní strana omezuje přehřívání. Výbava v podobě zvlášť izolovaných stěn, tepelného čerpadla a solárních panelů vytváří z nizozemské vily velmi ekologický domov.
- Země: Nizozemsko
- Město: IJsselstein
- Realizace: 2016
- Užitná plocha: 250.00m2
- Materiál: měď


