Mozaika přiznaných stavebních materiálů. Pardubickou školu rozšířila přímočará věž
Beton, cihly a sádrokartonové desky se v nové přístavbě prezentují v roli ušlechtilých materiálů, které mají být vidět. Schodišťová věž mateřské a základní školy není ryze utilitární stavbou, ale promyšlenou architekturou.
Adéla Vaculíková , 13. 9. 2022 / Advertorial
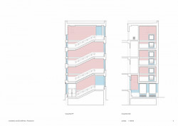
Nové věžové přístavby k budově Křesťanské ZŠ a MŠ Noe v Pardubicích si kolemjdoucí všimnou především proto, že stávající budovu o jedno patro převyšuje. S jejími šedými omítkami navíc kontrastuje jasně bílou barvou. Zdánlivě obyčejná přístavba má své skryté kouzlo, které se odehrává především v jejím interiéru.
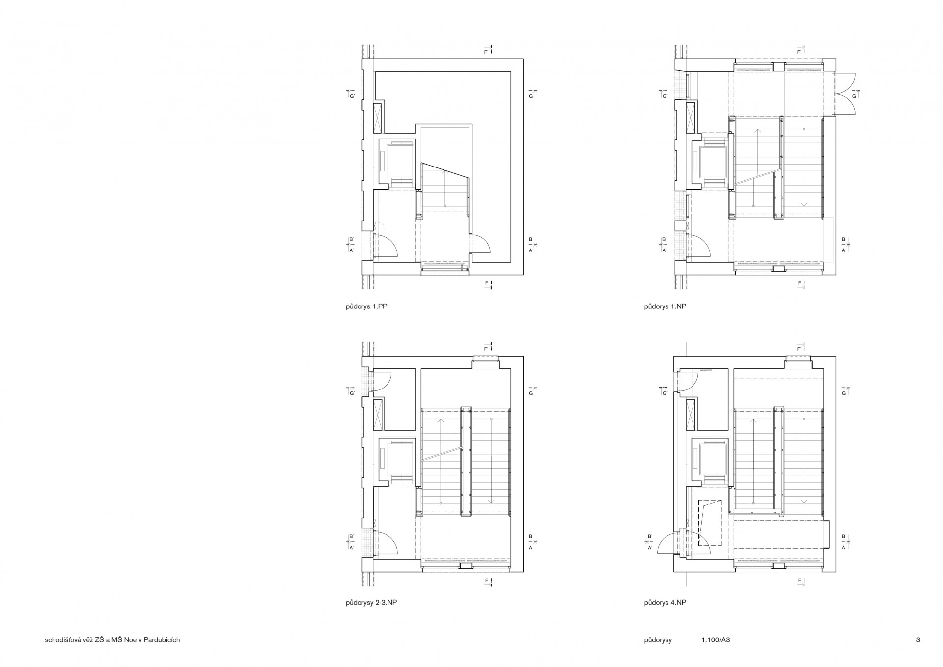
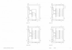
Vysoká věž je hlavní vertikální komunikací, která propojuje jednotlivá patra školy s jejím dvorem. Uvnitř se kromě schodiště vine i originální mozaika složená z hlavních stavebních materiálů. Betonová ramena a stropy schodiště se potkávají s keramickými cihlami na obvodových zdech. Živé barvy pak do kompozice vnáší sádrokartonové obklady opatřené modrým nátěrem.
Více k tématu
„Od začátku jsme si kladli otázku, jak udělat hlavní školní schodiště, které bude zapamatovatelné, reprezentativní, velkorysé a zároveň splní požadavky dané přísnými požárně–bezpečnostními normami, požadavky na bezbariérové řešení i na minimalizaci investičních nákladů,“ říkají architekti z ateliéru Světlík Šedý Šefl. Schodišťová věž měla být bezpečná, praktická a hravá zároveň. Vedle schodiště jí prochází i výtahová šachta. Jelikož jde o požární únikovou cestu, nemohou zde být žádné hořlavé materiály. Z bezpečnostního hlediska chybí i výtvory dětí, nástěnky a další potenciální překážky.
Sami architekti říkají, že se chtěli vyhnout tomu, aby nová přístavba působila sterilně. Interiér pojali jako stále přítomný abstraktní obraz. „Architektům jsme nechali hodně volnou ruku, spoléhali jsme na to, že své práci rozumí a přijdou jistě s neotřelým nápadem. Jsme přesvědčeni, že odhalené prvky, které architekti navrhli, prostor skvěle rozčlenily a schodišťová věž tak nepůsobí dojmem ‚komínu‘,” hodnotí realizaci Markéta Chmelová z kanceláře propagace a fundrasingu Křesťanské ZŠ a MŠ Noe.

Přitažlivé interiéry musí jít ovšem ruku v ruce s jejich praktickým užíváním a údržbou. Architekti pro vytížený komunikační prostor zvolili šedé podlahy s epoxidovým nátěrem. Stěny jsou v místech náchylných ke špinění opatřené bílým nátěrem, který je možné obnovovat. „Údržba prostorů, zejména podlah, je bezproblémová. Jenom mytí velkých oken z plošiny je náročnější,“ dodává Markéta Chmelová. Okna, která věž prosvětlují, jsou zasazená do tmavých rámů, ladí ke všem dveřím i tmavému trubkovému zábradlí.
A proč je vlastně schodišťová věž o patro vyšší, než samotná budova školy? Křesťanská ZŠ a MŠ Noe se totiž plánuje dál stavebně rozvíjet. Na současnou budovu realizovanou v 60. letech nasedne nová nástavba, ve které budou odborné učebny. V plánu je také dostavět vstupní halu a nový blok šaten. Všechny zamýšlené přístavby se zároveň napojí na již realizovanou schodišťovou věž.

„Provádění hrubých stavebních konstrukcí tak, aby mohly být v interiéru přiznány — zejména kombinace keramického zdiva, které pro pohledové zdění není primárně určeno a betonových konstrukcí — vyžadovalo trpělivost, opatrnost a profesionálnost všech, kteří se stavby účastnili,“ říkají architekti na závěr. Cihly Porotherm od společnosti Wienerberger, které byly na obvodové zdi použity, jsou totiž primárně určené pro omítnutí. Prezentace jejich struktury v kombinaci s betonem však do interiéru přináší určitou jedinečnost. „Z estetického pojetí interiéru se jedná o ojedinělou a zdařilou ukázku odhalené architektury. Neskrývá základní prvky stavby a vhodným odhalením režného zdiva vytváří příjemné prostředí,” hodnotí práci architektů Jan Huber, produktový manažer společnosti Wienerberger. Za realizaci schodišťové věže si ateliér Světlík Šedý Šefl ostatně odnesl i nominaci na Českou cenu za architekturu 2022.

- Ateliér: Světlík Šedý Šefl
- Autoři: Jan Světlík, Vojtěch Šedý, Filip Šefl
- Projekt: 2020-2021
- Realizace: 2021-2022
- Město: Pardubice
- stavební řešení: Luboš Laksar
- Projekt vytápění: Libor Sauer
- Projekt elektro: Daniel Hajzler
- projekt PBŘ: Jan Trafina
- Statika: Pavel Doležal, Jitka Jiravová
- Slaboproudé systémy: Miloš Hort, Petra Kvapilová
- Generální dodavatel: Chládek a Tintěra, Pardubice a.s.
- Hlavní stavbyvedoucí: Martin Štorek
- Betonové konstrukce: TAKO, spol. s r.o.
- Sádrokartony: UNI-GIPS, spol. s r.o.
- Zámečnické prvky: Zámečnictví a kovovýroba Vojtaš
- Podlahy: TECHFLOOR s.r.o.
- Zděné konstrukce: konkrétně broušené cihly Porotherm Profi v tloušťkách 44 a 24 / vyzdívky parapetů pak 30 T Profi.
- Zděné konstrukce z keramických cihel: firma Wienerberger