
Můj dům, můj beton – část 1
Soukromí investoři – často rodiny s dětmi – si v dnešní době nezřídka volí obnažený, přiznaný, pohledový beton, v různé míře v kombinaci s dalšími materiály např. dřevem, sklem, ocelí, jako základní rys svého domu. Záměrem redakce časopisu Beton TKS je postupně představovat zdařilé realizace, které dokáží zaujmout svým vzhledem, technickým řešením, příběhem či oceněními v architektonických soutěžích… První z nich je Dom LJM od slovenského ateliéru n/a.
Benjamín Brádňanský / Ján Pivarč , 31. 5. 2016
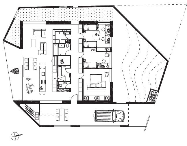
Dům postavený na okraji malé obce nedaleko Bratislavy je příkladem použití surového pohledového betonu pro jeho estetické kvality. Zvnějšku se dům na první pohled jeví jako betonový hrad, železobetonové stěny vymezují soukromou část chráněnou před zraky kolemjdoucích, avšak samotný jednopodlažní dům o čtvercovém půdoryse je cihlový.
Při bližším seznámení s domem je nicméně jasněji vidět výrazný prvek této stavby – železobetonové stěny neslouží jako hradby, ale naopak se rafinovaně podílí na znejistění hranice mezi jednotlivými částmi (domem, zahradou, lodžií, vstupem a okolím).
Nejednoznačná identifikácia
Dom LJM bol naplánovaný na mieste obyčajnej prímestskej krajiny obklopený romantizujúcou individuálnou zástavbou postavenou bez zaujatia architektúrou. Vytýčili sme si cieľ vytvoriť dom, ktorý prinesie kvalitu nielen vo vnútri bývania, ale aj do jeho okolia. Zjednodušene povedané, dom sme obklopili rôznymi prostrediami s rôznym stupňom otvorenia k okoliu. Tieto medziprostredia medzi domom a okolím sa dajú používať rôzne. Zo spální je výhľad na jemný kopec zelenej trávy. Pred vstupom do domu je loggia, v ktorej sa dá parkovať, ale aj stolovať a hrať sa pokiaľ prší, alebo veľmi svieti. Južná loggia tieni zasklenú stenu a rámuje pohľad do ovocnej záhrady. Západná stena láme silné svetlo, oddeľuje dom od budúcich susedov a vytvára úzku štrkovú záhradu. Dom zvonku neposkytuje jednoznačnú identifikáciu, nie je jasné, ktorá časť je dom, čo je prístrešok, čo je plot. Je to hybrid poskytujúci niekoľko možností. Dom je vo vnútri jednoducho rozdelený na spaciu, obslužnú a obývaciu zónu.
Zaujatie výrazom surových materiálov
Cieľom bolo čo najmenej maskovať použité konštrukčné riešenie, teda ukazovať rôzne materiály odrážajúce proces výroby aj starnutia. Dôvod bol snaha o pravdivosť a nemaskovanie a naše estetické zaujatie výrazom surových materiálov.
Voľba padla na betón, pretože najlepšie spĺňal tieto naše predstavy a požiadavky. Fascinuje nás jeho jednota, to ako obsahuje v sebe konštrukciu, materialitu, formu a textúru. Jeho jedinou nevýhodou je dobrá tepelná vodivosť. Samozrejme existujú rôzne riešenia od jednoduchých až po sofistikované na to, ako sa vyrovnať s týmto problémom. My sme sa rozhodli pre veľmi jednoduché riešenie.
Dom, ktorý sme navrhli je jednoduchá zateplená tehlová konštrukcia v pasívnom štandarde a exponované betónové konštrukcie sú len vonkajšie priestory, ktoré nepotrebujú riešiť tepelné mosty a odpory. Betónová konštrukcia okolo domu je samonosná, na konštrukciu domu sa opiera len v jednom mieste. Perforovaná betónová doska – strecha prístrešku je uložená cez dosky penového skla na východnú obvodovú stenu domu.
Konštrukčné riešenie
Založenie stavby v daných geologických podmienkach je navrhnuté na základových pásoch šírky 400 mm.
Nosná konštrukcia stavby domu je tvorená keramickými murovanými obvodovými stenami, dvomi vnútornými nosnými stenami z debniacich tvárnic šírky 200 mm a železobetónovým stropom hrúbky 200 mm z pohľadového betónu. Vnútorné nosné steny podopierajú stropnú dosku na okrajoch centrálneho svetlíka. Vzhľadom na zvýšené zaťaženie strechy zemným substrátom sú do stropnej dosky v mieste koncov vnútorných nosných stien zabudované šmykové rebríčky. Stropná doska je obojsmerne vystužená.
Okolo domu je plot tvorený železobetónovými stenami s otvormi. Steny sú z pohľadového betónu, preto bola zvýšená požiadavka na kvalitu ošetrenia debnenia a spracovania betónovej zmesi.
Na južnej strane domu je lodžia, ktorá je tvorená železobetónovými stenami plotu a do nich votknutým prestrešením taktiež z pohľadového betónu. Lodžia má svetlosť popri dome takmer 8 m. Tento rozpon je zabezpečený prievlakom 200/580 mm, do ktorého sú votknuté dve vnútorné rebrá hrúbky 150 mm v tretinách dĺžky prievlaku. Vyloženie lodžie je skosené vo vodorovnej rovine, od 900 mm na jednom okraji do 2,2 m na opačnom. Prestrešenie lodžie je skosené aj vo zvislom smere od domu kde má výšku 580 mm az po jej okraj s výškou 150 mm. Rebrá zabezpečujú tuhosť a spojenie spodnej a hornej obalovej železobetónovej dosky prestrešenia.
Záver
Dom LJM relativizuje hranice prostorů soukromé vily, jak vystihuje architekt Benjamín Brádňanský: „Zmiešali sme dom, plot, záhrady, loggie, prístrešok do jedného objektu aby sme vytvorili niekoľko rôznorodých typov priestorových kvalít a rôzne spôsoby otvoreniauzatvorenia voči okoliu.“
Více k tématu
- Autoři: Benjamín Brádňanský, Víto Halada
- Ateliér: n/a
- Země: Slovensko
- Zodpovědný projektant: Ján Pivarč
- Město: Miloslavov
- Ulice, číslo: Alžbetin Dvor
- PSČ: 900 42
- Datum projektu: 2011
- Realizace: 2015
- Poznámka: Archiv časopisu Beton TKS