Architektura / interiér

Pod baldachýnem z ocelových nudlí

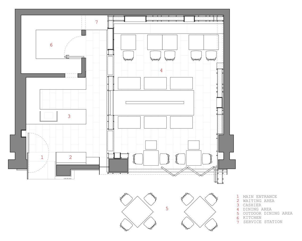
Máte chuť na pravé rýžové nudle? Udělejte si výlet do čínského města Changsha, kde v nové designové restauraci dostanete dokonalé nudle nejen na talíři, ale budou vás ve své ocelové podobě obklopovat všude kolem.

Christina Luk , 2. 11. 2015

  • Autoři: Christina Luk
  • Ateliér: Lukstudio
  • Země: Čína
  • Realizace: 2015
  • Město: Changsha
  • Ulice, číslo: W1003, Wanda Plaza, Zhongshan Road No. 589
  • PSČ: 410000
  • Datum projektu: 2015
  • Realizace: 2015
  • Užitná plocha: 50.00m2
  • autor: Christina Luk *
  • publikováno: * 2. 11. 2015
  • zdroj: * Autorská zpráva. Překlad: Karolína Řeháčková

Klíčová slova:

bistro

Mohlo by vás zajímat

Generální partner
Hlavní partneři