Příběh anti-atriového domu a jedné z nejikoničtějších fotografií současné architektury
„Když za námi přijel budoucí investor Aatriového domu svým Porsche Carrera do ateliéru v nevytápěném sklepě rodinného domu, zapochyboval. Povídáme si, venku sedí dva psi a pozorují nás sklepním okénkem. Šílené," vypráví polský architekt Robert Konieczny o návrhu domu, jehož jediná fotka obletěla celý svět. „Vyžádal si od nás koncept projektu s tím, že smlouvu podepíše pouze v případě, že se mu bude nápad líbit. Dnes by to bylo nemyslitelné, protože idea je na každém projektu to nejcennější. Tehdy jsme ale neměli na výběr.“
Matěj Beránek , 28. 6. 2017
Scéna se totiž odehrávala v době, kdy kancelář KWK Promes slavného polského architekta Roberta Konieczného byla na samém začátku své kariéry, a tudíž museli přistoupit na tvrdé podmínky. Jednání ale klaplo, klientovi se návrh domu líbil, a tak se společně pustili do navrhování a následné realizace domu, jehož jediná fotka obletěla celý svět. Nechybělo ale mnoho, a ikonický snímek vůbec nevznikl.
AUTEM AŽ DO DOMU
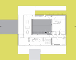
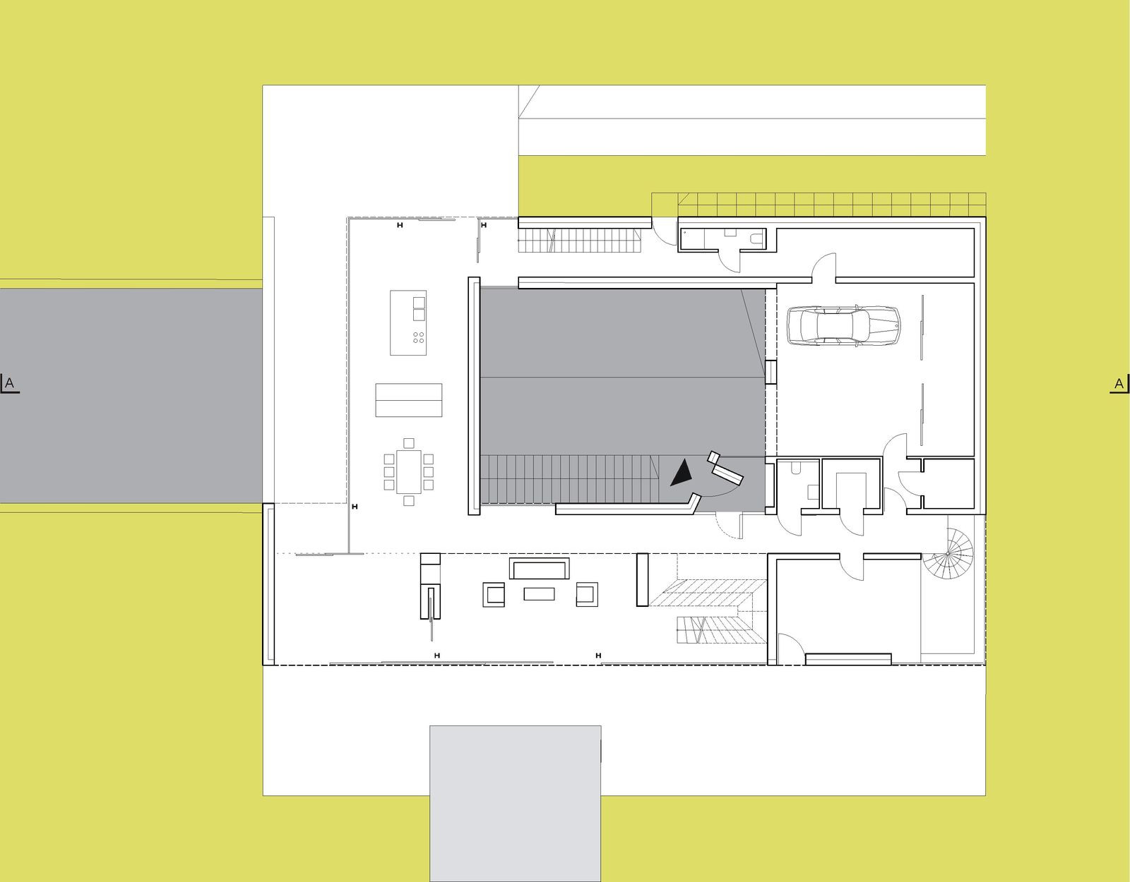
Klient měl k dispozici krásný jednohektarový pozemek u lesa na jihozápadě Polska nedaleko českých hranic. Největší problém ovšem spočíval v jihozápadně orientovaném přístupu. Architekti se proto museli vypořádat se skloubením zahrady a příjezdové cesty, kterou nakonec zapustili pod úroveň terénu, aby tak došlo k jejímu oddělení od zahrady. Myšlenka nakonec vedla k protažení příjezdové cesty až do nitra domu, kde se opět zvedá k úrovni přízemí. Na základě tohoto rozhodnutí vzniklo vnitřní atrium, které se stalo nejsignifikantnějším prvkem celého projektu.
V důsledku se ovšem jedná o určitou negaci klasického prostoru atria, které už od antiky sloužilo jako centrální prostor společenského života uvnitř rezidenčních vil. Konieczného dům ale na tento prostor reaguje přesně opačně, odvrací se od něj a prostřednictvím svých teras a prosklených stěn se maximálně otevírá do svého okolí. Popření klasického modelu atriového domu vyjadřuje také samotný název projektu Aatrial House. Dům je tak ve výsledku uzavřen zevnitř a naopak otevřen do svého okolí.
Hmota domu vychází především ze zástavby lokálních sídel, kterým dominují krychlové domy ze sedmdesátých let. Po konstrukční stránce se jedná o železobetonový monolit, jehož výsledná podoba vznikla postupnou transformací jednotlivých krychlí. Ostatní přidané hmoty pak zdůrazňuje tmavý obklad ebenového dřeva.
Celý pozemek domu vytyčuje obvodová stěna vysoká dva a půl metru, která zároveň vyrovnává převýšení terénu. Kvůli snazšímu zapuštění příjezdové cesty došlo totiž k částečnému zvednutí úrovně zahrady. Pozornost si zasluhuje také zpracování deset metrů široké cesty, po které majitelé přijíždějí přímo do svého domu. Perfektně provedená dlažba ze žulových kostek se jemně zvedá přesně pod hranou stavby, kde přechází do přilehlého venkovního schodiště. Žula byla použitá také pro opěrné zdi příjezdové cesty i obvodovou zídku – jde totiž o charakteristický materiál celé oblasti projektu.
VYPADNĚTE
Ačkoli se jedná o velmi promyšlenou architekturu, kterou korunovala řada ocenění, tak podle vlastních slov Roberta Konieczného „Aatriový dům proslavila jediná fotka. Fotka, která obletěla celý svět.“ Šlo přitom o velmi vypjatou situaci, když se architekt spolu s fotografem pohybovali po areálu. „Na focení jsme měli jediný den. Přijel fotograf z Varšavy, zajímaly ho hlavně interiéry, protože na fotografiích koupelen mohl vydělat. Já jsem rozhodně trval na večerní fotce zvenku. Začali jsme na ní s jeho asistentem pracovat, když tu na příjezdovou cestu vjela majitelova žena. Vyfotili jsme to a já jsem viděl, že ta dlouhá expozice světel automobilu pří sjíždění do atria má potenciál. Fotograf a asistent byli nadšení už z první fotky, já ještě tak úplně ne a chtěl jsem, aby auto vyjíždělo, aby to vypadalo ještě líp. Nesouhlasili. Dnes bych jim řekl: ‚Vypadněte, to jsou poslední fotky, které pro mě děláte. ‘ Tehdy jsem je ale po dlouhém přesvědčování uprosil a majitel také souhlasil s tím, že s autem vyjede. Upozornil nás ale, že máme jen jeden pokus.“
„Udělali jsme to. Ukázalo se, že je to nejdůležitější fotka této stavby, protože objasňuje její ideu. Pomohla nám získat sérii ocenění po celém světě v čele s titulem Nejlepší dům roku, který je výsledkem hlasování ve World Architecture News,“ shrnuje proces architekt Konieczny, při kterém vznikla fotografie zachycující dům při stmívání s dynamickými liniemi světel automobilu.
Příběh v širší rovině poukazuje na stále důležitější roli, kterou vizuální výstupy v dnešní době hrají. Konieczny své úsilí při focení svých realizací nevynakládá nadarmo, je si moc dobře vědom toho, že o medializaci budovy, která je zejména pro začínající architekty velmi důležitá, rozhoduje často několik málo vteřin na obrazovkách světových novinářů a kritiků architektury.
Citace byly použity z článku „Dlouhá cesta Roberta Konieczneho na vrchol“ („Roberta Koniecznego długa droga na szczyt“) publikovaného 3. ledna 2017 na webu Onet Wiadomosci pod odkazem http://wiadomosci.onet.pl/tylko-w-onecie/roberta-koniecznego-dluga-droga-na-szczyt/y64k3q. Text je součástívýstavy Robert Konieczny - Prostory na míru, kterou vytvořila Galerie Architektury Brno.
Více k tématu
- Autoři: Robert Konieczny
- Ateliér: KWK Promes
- Spolupráce: Marlena Wolnik, Łukasz Prażuch
- Země: Polsko
- Realizace: 2006
- Město: Opole
- Datum projektu: 2003
- Realizace: 2006
- Užitná plocha: 660.00m2
- Zastavěná plocha: 414.00m2