
Vana s výhledem na les. Dům pro život v přírodě nedaleko České Lípy
Dvojice z Prahy chtěla rekreační chalupu. Dům si ale majitele získal natolik, že zde tráví stále více času. Klid, příroda a dechberoucí výhledy jim nahradily město.
EARCH.CZ , 13. 3. 2025 / Advertorial
Místo je prý kouzelné. „Již při první návštěvě pozemku byla cítit výjimečná atmosféra,“ říká architekt Jakub Loučka ze studia XYLO Atelier, který dům navrhl. Na pozemku dříve stála zemědělská usedlost, z níž ale zbyly jen drobné technické objekty. Dnes je tu louka a na dohled les. Právě krásnému přírodnímu okolí se podřídila celá stavba. Aby dům splynul s přírodou, k tomu přispívá i fasáda z neošetřeného modřínového dřeva a střešní krytina z tmavých vláknocementových desek, které připomínají břidlicové střechy, pro Českolipsko typické.

Z obýváku do kádě
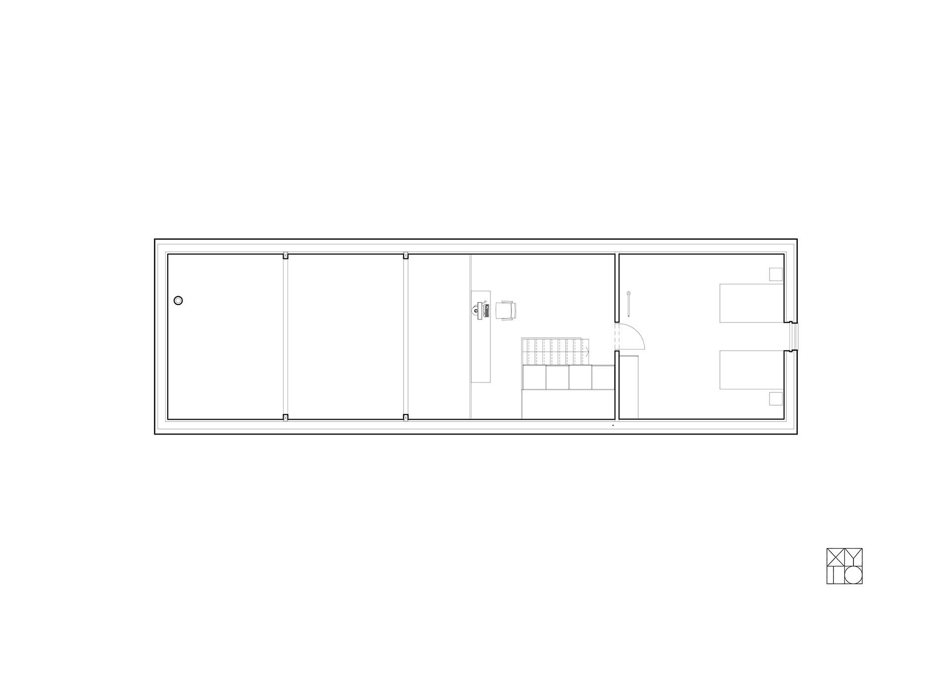
Srdcem domu je velký obytný prostor s krbovými kamny, který se rozměrnými okny otvírá do okolí. Je odtud možné vyběhnout po molu až do otužovací kádě. Anebo vyjít na venkovní posezení. Obývací pokoj je otevřený do krovu, v jedné části je galerie, která slouží jako pracovna.

Dále je zde technické zázemí a ložnice, jejíž součástí je koupelna, oddělená od spací části skleněnou stěnou. Myšlenka dosti neobvyklá, která vzešla od klientů, a překvapila i architekta. „Původně to byly oddělené místnosti. Náhle ale padl nápad, že bychom to spojili do jednoho velikého prosvětleného prostoru. A od té doby bylo jasno. Jsem tím naprosto nadšený. Málokdy se něco takového povede,“ říká architekt. Výhodou je, že koupelna je plná světla, a i ze sprchy je vidět na les. A pokud by si někdo tenhle výhled chtěl užívat déle, může si lehnout do vany, která je přímo v ložnici před velkým bezrámovým oknem.
Interiér navrhoval architekt spolu s domem, klienti se intenzívně zapojili a nastavený styl dotáhli do detailu.
Jedná se o dřevostavbu; projekt vytvořila a ke spokojenosti klientů provedla firma Las Dřevostavby. Na povrchu je fasáda z modřínových prken, která časem tmavnou. V kontrastu k nim je výrazná, žlutá, stále zářivá barva okenních rámů: „Na svém vlastním domě jsem si ověřil, že kontrast patiny neošetřené modřínové fasády a exaktních okenních výplní, které vzhledově nestárnou, mě velmi baví,“ říká architekt Loučka. A tak podobná okna navrhl i klientům.

Jak na ochranáře
Dům stojí v chráněné krajinné oblasti a toho se stavebníci a architekti vždy obávají: pravidla pro podobu staveb v CHKO nejsou jasně definovaná, často se lpí na detailech a úředníci současné architektuře moc nerozumí. Jak říká Jakub Loučka, tohle nebyl ten případ, referentovi šlo o to podstatné, vjem člověka, který přírodní oblast navštíví. Důležitá byla tedy silueta, proporce, materiály a také volba střešní krytiny. „V původním návrhu jsem trochu lenivě použil klasickou falcovanou krytinu, po upozornění referentem jsme hledali alternativu, která svým formátem odpovídá členění typických krytin v okolí. Jako nejlepší řešení se ukázala krytina známá jako anglický obdélník, v tmavě šedé barvě, od firmy Swisspearl,“ říká architekt Loučka. Systém zahrnuje také zachytávače sněhu, kotvení hromosvodu a další důležité prvky. „Krytina nepůsobí uměle, malým formátem a ručním kladením vzniká rozmanitost, která přispívá k bohatosti vjemů. Dům se přirozeně noří do svého prostředí a splývá s ním,“ popisuje architekt.
K hlavní obytné budově přibude ještě hospodářský objekt s parkováním, dílnou a místností pro hosty.
[related]
Kromě domu tráví obyvatele hodně času na své zahradě. Její koncept vytvořila manželka architekta Anna Loučková, klienti ho dále rozvinuli. Okolní přírodní terén, kam přichází lesní zvěř, plynule přechází do nesečené květnaté louky. V jejím centru je veliké kamenné ohniště a přírodní jezírko. Vyvýšené zeleninové záhony jsou plně využívány již nyní, brzy bude plodit i menší ovocný sad. Do odlehlejší části zahrady byla umístěna kořenová čistička odpadních vod.
Ale péče majitelů nekončí u plotu, na vlastní náklady zrevitalizovali také kilometr aleje, která vede k domu. „Výjimečný počin, kdy majitel pozemku vnímá krajinu v širších souvislostech. Hluboce se klaním a přál bych si, aby takto uvažovalo více lidí. Svět by byl možná zase o něco krásnější,“ shrnuje architekt.
Použité produkty:
Swisspearl skládaná střešní krytina, která je vhodná pro moderní i historické stavby. Díky vysoké pevnosti, odolnosti proti extrémním povětrnostním podmínkám a minimálním nárokům na údržbu poskytuje spolehlivé řešení pro každou střechu.
Více k tématu
- Autoři: Jakub Loučka
- Ateliér: XYLO Atelier
- Země: Česká republika
- Dodavatel: Las Dřevostavby
- Fotograf: Ondřej Bouška
- Realizace: 2021
- Užitná plocha: 145 m²
- Projekt: Las Dřevostavby
- Návrh zahrady: Anna Loučková
- Realizace zahrady: Zahradní pomoc - Milan Bruchter s manželkou