Rekonstrukce univerzitní auly ze 60. let sází na principy cirkulární ekonomiky
Aula České zemědělské univerzity v Praze prošla celkovou rekonstrukcí, získala novou přístavbu a snaží se být environmentálně šetrná. Dnešní podobu jí dalo studio Architekti DRNH ve spolupráci s autorem původní stavby Janem Čejkou.
EARCH.CZ , 19. 8. 2022
Objekt auly České zemědělské univerzity v Praze je jednou z dominant univerzitního kampusu v Suchdole. Stavbu, kterou realizoval v polovině 60. let architekt Jan Čejka, nechala univerzita kompletně zrekonstruovat a přizpůsobit dnešním provozním požadavkům.
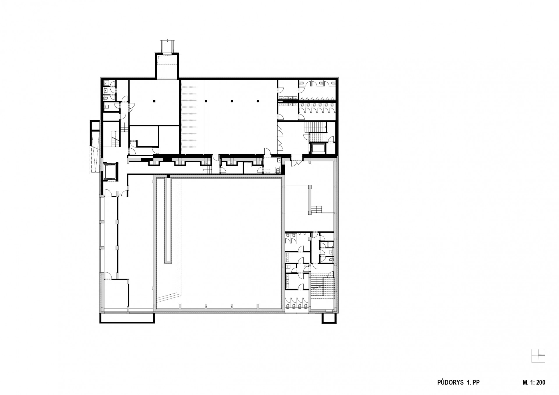
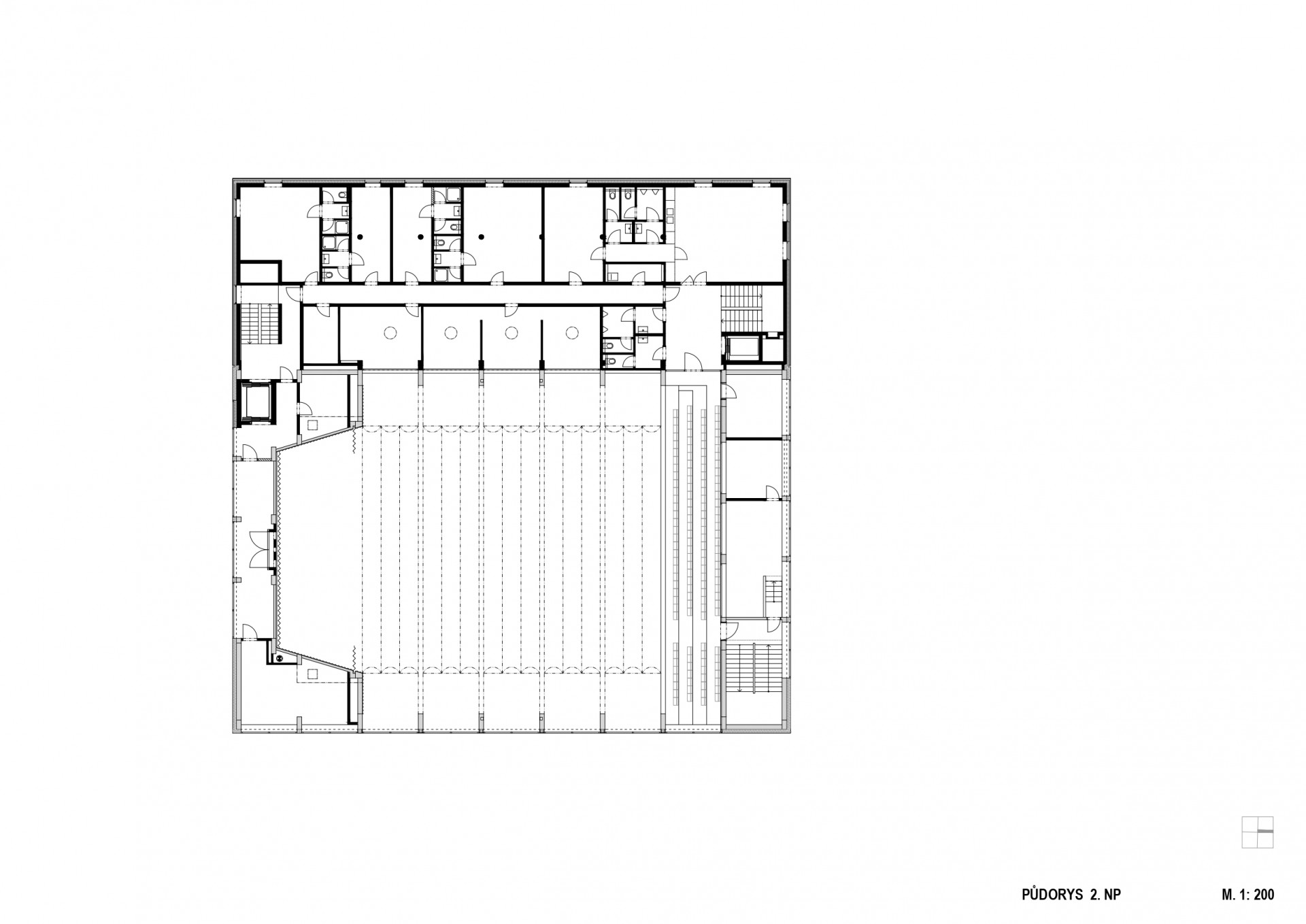
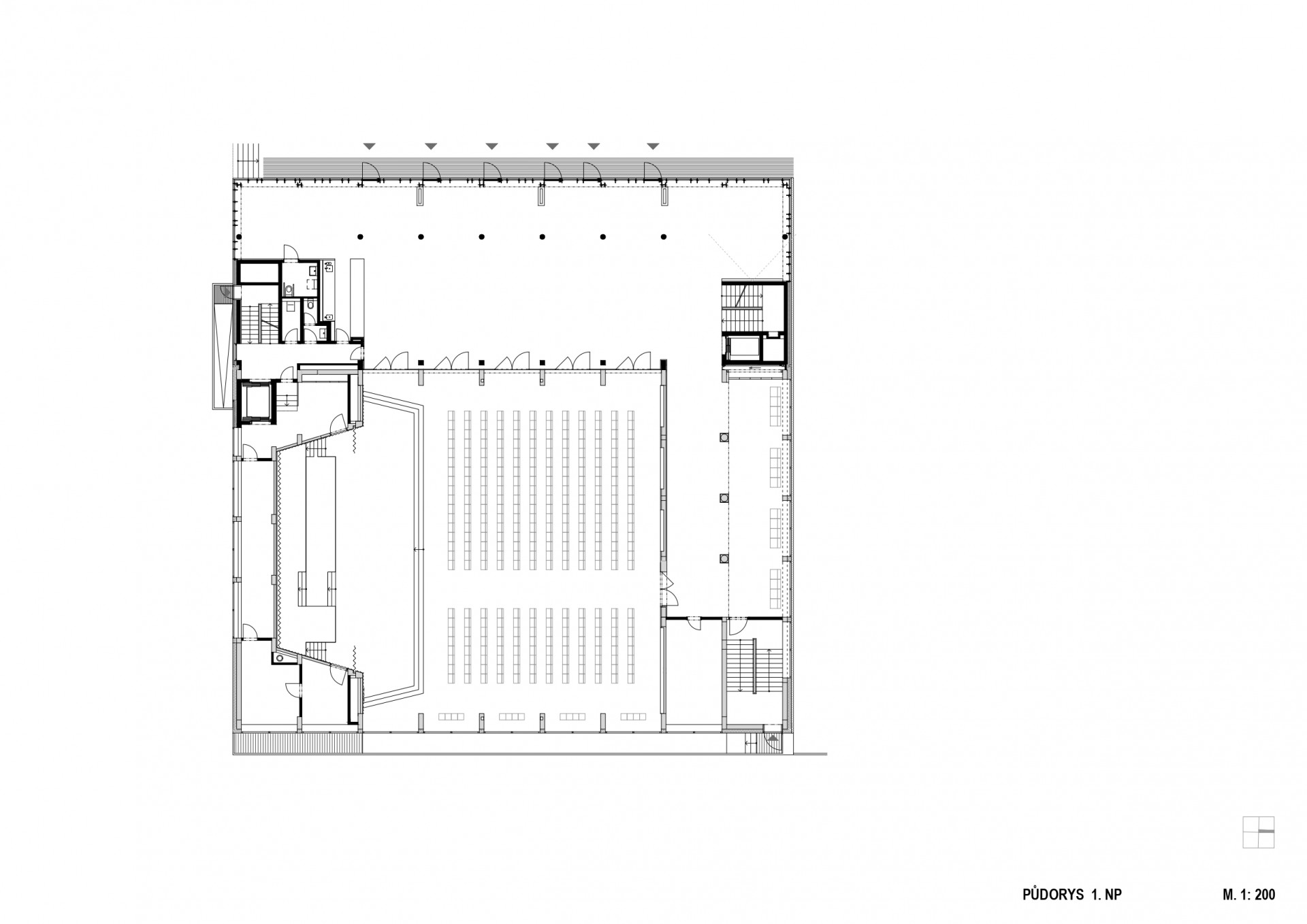
„Původní objekt už nevyhovoval a vzhledem k tomu, že má historický význam, vedení univerzity zvolilo cestu revitalizace. Přístavbou se rozšířilo hygienické i technické zázemí, zvýšila se kapacita hlediště i jeviště na celkových 528 osob,“ uvádí Česká zemědělská univerzita v Praze. Rekonstrukce se chopilo studio Architekti DRNH ve spolupráci s původním autorem auly Janem Čejkou.
Více k tématu
Stavba s výraznou fasádou a prohnutou střechou prošla zateplením, dostala nové interiéry a přístavbu. „Fasádní plášť přístavby je v úrovni přízemí zcela transparentní pro propojení exteriéru s foyer auly, v úrovni patra pak naopak bez přiznaných okenních otvorů, které jsou překryty předsazeným skleněným obkladem s nepravidelným vertikálním formátováním,“ popisují architekti.
Ačkoliv se fasáda auly ze 60. let už od prvního pohledu změnila, to hlavní z jejího charakteru zůstalo zachováno. Rámový skelet, který se dříve propisoval navenek, se schoval pod hladkou omítkou, původní kontrastní vyzdívky zase ztvárnila jemná perleťová mozaika.

Sami architekti říkají, že aule chtěli zachovat její urbanistickou i vizuální roli v areálu. „Tento jev je pak ještě zesílen volbou zlaté barvy střešní krytiny původní auly, navozující dojem koruny a prolínající se i do interiéru v podobě zlatých baldachýnů v podhledu hlavního sálu,“ říkají. Nová přístavba se zase svým proskleným parterem orientuje k budově rektorátu – dalšímu důležitému objektu kampusu.
Revitalizací prošlo i náměstí před aulou. Společně s provedením nových pochozích ploch byly osazeny stromy, vznikly prostory pro záhony a místo pro ochlazení ve formě mlhoviště. „Při rekonstrukci a dostavbě objektu byl kladen důraz na environmentální šetrnost a principy cirkulární ekonomiky, použity jsou recyklované a recyklovatelné stavební materiály, dešťové vody ze střech objektu jsou retenovány v nově vybudované podzemní galerii a zpětně se využívají jako šedá voda pro splachování a závlahu,“ říkají Architekti DRNH na závěr.
- Ateliér: Architekti DRNH
- Autoři: Jan Čejka, Antonín Novák, Petr Valenta, Radovan Smejkal, Eduard Štěrbák, Pavel Veselý
- Země: Česká republika
- Adresa: Praha 8 - Suchdol
- Projekt: 2016-19
- Realizace: 2019-20
- Zastavěná plocha: 1.316 m²
- Užitná plocha: 2496 m²
- Obestavěný prostor: 14 882 m³