
Dům se saunou na střeše a výhledem až na Brdy v dálce
Mladý pár si postavil bydlení v nové části Radotína. Světlé cihly a modřínové dřevo na fasádě dávají jejich domu jemnost, která novostavbám kolem spíš chybí.
Karolína Vránková , 1. 11. 2024 / Advertorial
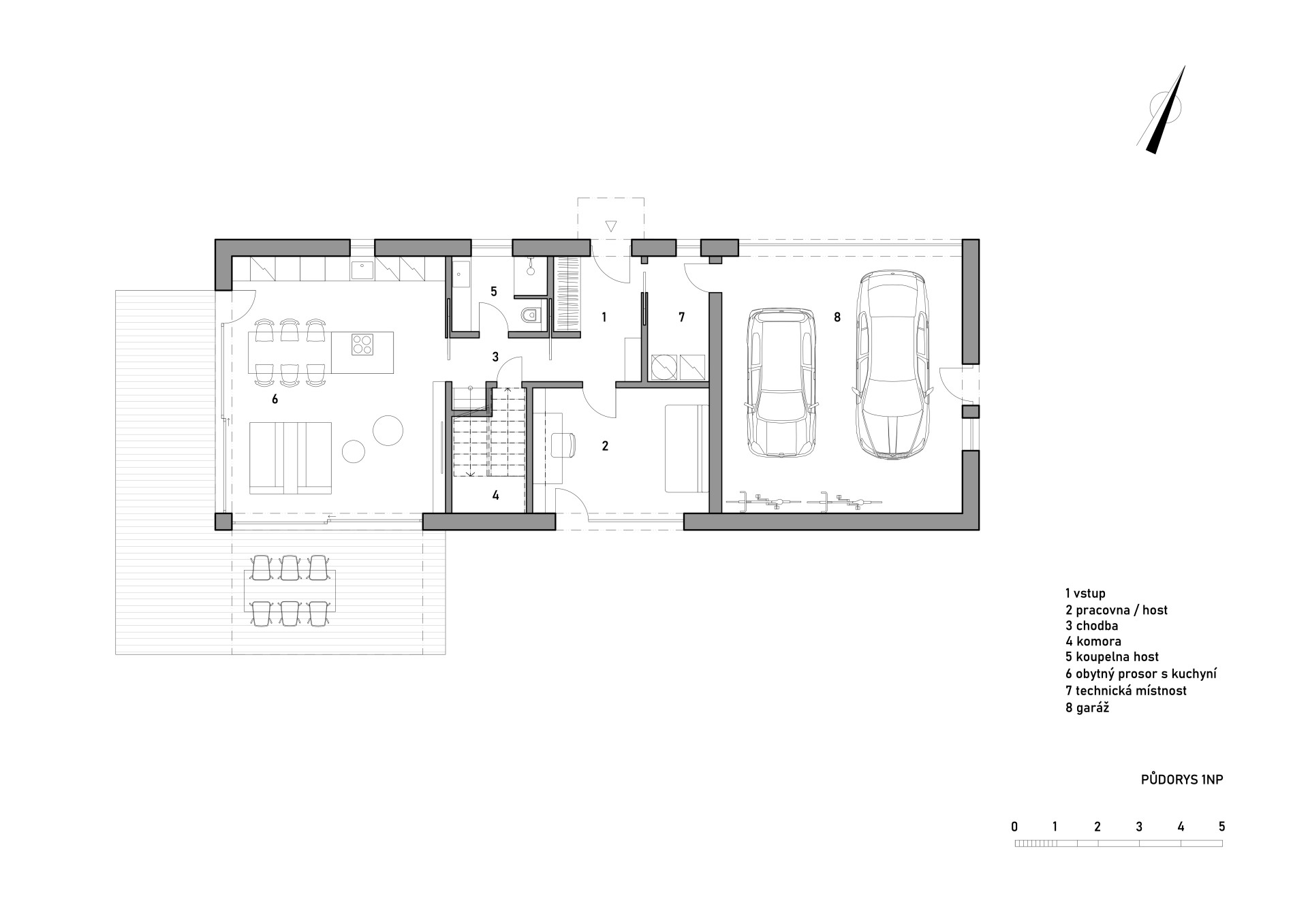
Mladý pár chtěl odejít z města blíž přírodě, zároveň si však chtěli metropoli nechat na dosah. Jejich novým domovem se stala Praha-Radotín, přesněji okrajová oblast, kde se v posledních letech intenzivně staví rodinné domy. Investoři tohoto domu měli obvyklé požadavky: dva dětské pokoje, ložnici, obývací pokoj, dvojgaráž, zahrada...důležitým přáním navíc byla ovšem venkovní sauna.

„Rovinatý nárožní pozemek obklopený nesourodými rozlehlými stavbami sousedů však soukromí pro umístění venkovní sauny zrovna nenabízel. Jedním z určujících motivů návrhu domu se tak stalo vytvoření venkovního prostoru pro odpočinek po saunování chráněného před zraky sousedů,“ popisují architekti ze studia System Recovery Architects.

Také zahradu bylo nutné tak trochu vybojovat – proto je dům umístěný rovnoběžně s ulicí, aby za ním, na jihozápadní části pozemku, bylo soukromí a klid. Do zahrady jsou orientovány obytné místnosti v přízemí – společenský prostor s kuchyní a pracovna. Přilehlou zahradní terasu s venkovním stolováním je možné přistínit kazetovou markýzou zapuštěnou do roviny fasády.
V patře jsou dětské pokoje, ložnice rodičů a koupelny. Z velké koupelny rodičů je přístupný venkovní relaxační prostor se saunou a venkovní sprchou. Tato odpočinková oáza je vymezena ocelovou nosnou konstrukcí posazenou na střeše garáže. Prutová konstrukce je ve své spodní části přiznaná, v horní části je opláštěná modřínovými prkny.

Z terasy je možné vyjít na střechu: „Zde se lze zahledět přes střechy sousedů a dohlédnout daleko za hranice těsného předměstského života, až za Berounku, na Hřebeny, na obzor. Nebo se večer chvíli kochat rozsvícenou pulsující Prahou v dáli a pak se zase vrátit po schodech dolů do náruče klidného domova,“ popisují architekti.
Více k tématu
Fasáda domu je provětrávaná s předsazeným pohledovým lícovým zdivem. Jemný reliéf světlého zdiva i modřínové opláštění sauny dodávají domu jemnost a texturu, která ostatním domů kolem spíše chybí.
System Recovery Architects jsou autory návrhu domu se saunou na střeše. Parter, zahradu a vybavení interiéru si investoři řešili již sami.
Použité produkty:
Na fasádu byly použity ražené cihly WDF.HV.Como, vyrobené v rodinné cihelně v Nizozemsku. Jejich dodavatelem je Klinker Centrum.
- Autoři: Helena Línová, Vítězslav Kůstka
- Ateliér: System Recovery Architects
- Země: Česká republika
- Město: Praha-Radotín
- Projekt: 2020
- Realizace: 2022 - 2024
- Hrubá podlahová plocha: 224 m²