Architektura / interiér

Syrová proměna panelákového bytu

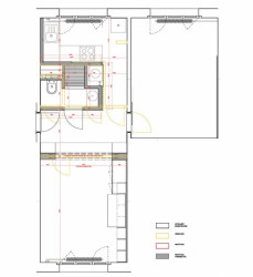
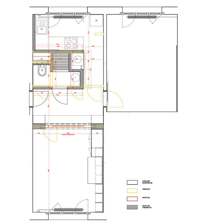
Byty paneláků představují jeden z nejrozšířenějších typů bydlení v Čechách a s jejich nevyhnutelným stárnutím vyvstává i potřeba nalezení jejich nové funkce a podoby. Jeden příklad, jak se s dědictvím výstavby sídlišť a rekonstrukcí jejich interiérů vyrovnat, můžeme nalézt v Plzni. Byt s ani ne 50 m2 prošel radikální proměnou a výsledkem je syrový interiér, ve kterém dominují pohledové kvality OSB desek. Nemusí to být bydlení pro každého, představuje však originální způsob, jak s byty v panelácích naložit.

architectureMADE , 13. 4. 2017

  • Autoři: Tomáš Král, Irena Šebová
  • Ateliér: architectureMADE
  • Země: Česká republika
  • Realizace: 2017
  • Město: Plzeň - Bory
  • Datum projektu: 2015
  • Realizace: 2017
  • Užitná plocha: 48.00m2
  • fotografie:  Roman Muchka iatelier

Mohlo by vás zajímat

Generální partner
Hlavní partneři