Architektura / administrativní stavby

Transformací a dostavbou původní tramvajové vozovny na pražském Smíchově vznikly kanceláře FIVE

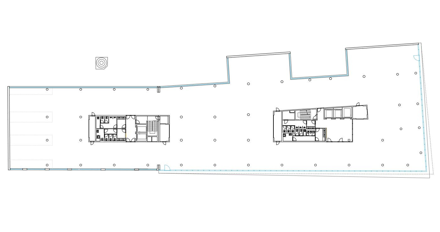
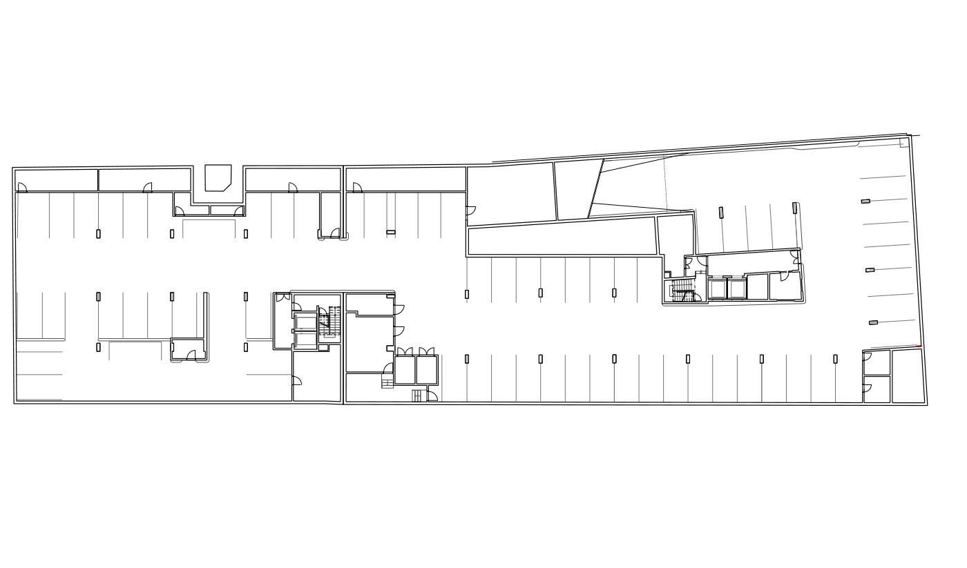
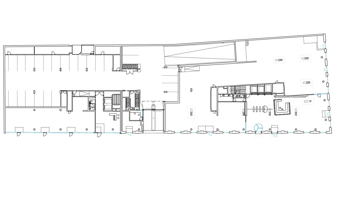
Opuštěný industriální objekt na pražském Smíchově dříve sloužil jako tramvajové a následně také trolejbusové depo. V nedávné době ovšem došlo k přestavbě torza vozovny, na které přibyla sedmipodlažní nástavbu fungující jako administrativní prostor FIVE. Studio QARTA se v interiéru snažilo udžet industriální charakter původního objektu, při pohledu z ulice jsou navíc obě hmoty vozovny a nových kanceláří jasně odděleny.

QARTA architektura , 19. 2. 2019

  • Ateliér: QARTA architektura
  • Země: Česká republika
  • Realizace: 2017
  • Město: Praha 5 - Smíchov
  • Ulice, číslo: Na Valentince, 3336/4
  • PSČ: 15000
  • Datum projektu: 2011
  • Realizace: 2017
  • Užitná plocha: 14 000.00m2

Mohlo by vás zajímat

Generální partner
Hlavní partneři