Uvnitř a zároveň venku. Minimalisticky pojatý dům sází na propojení se zahradou
U projektu rodinného domu v pražských Petrovicích vsadilo studio Labor 13 především na propojení interiéru s exteriérem. Aby si majitelé mohli naplno užívat pobyt ve venkovních prostorech, navrhli pro ně architekti s ohledem na menší velikost pozemku také půvabnou střešní zahradu.
EARCH.CZ , 2. 9. 2021
Propojení
Bílá hladká omítka, světlý a tmavý kámen, sklo, beton… to jsou materiály, se kterými pracovali architekti ze studia Labor 13 během návrhu rodinného domu v rezidenční oblasti pražských Petrovic. Bílá minimalistická ortogonální kompozice stavby kontrastuje svým vzhledem s tmavým kamenným obkladem zahradního domku navazujícího na bazén – společně se však vyjímají mezi okolní zástavbou a zaručují majitelům úzký kontakt se zahradou.
„Investoři měli malý pozemek, takže jsme se snažili co nejvíce uvolnit zahradu a propojit s ní dům. Tvar domu vychází z toho, že jsme chtěli opticky odklonit dům napravo. Z toho vychází hmota, která jde podél celé hrany pozemku, díky čemuž je dům natlačený s minimálním odstupem od hranice pozemku k pravému sousedovi,“ vysvětluje koncept domu architekt Martin Vomastek z ateliéru Labor 13.

Zahrady rovnou dvě
Hlavní zahrada je rozdělena na několik funkčních celků. „Například mezi domem a bazénem se nachází pouze trávník, kde si mohou majitelé jen tak rozložit deku a odpočívat. Úsek zahrady navazující na ulici tvoří přírodní pohledovou bariéru a majitelé tak získávají dostatek soukromí. Soukromí jim rovněž poskytují vysoké borovice vysázené podél zídky v západní části zahrady, pod nimiž je zařízena užitková zahrádka,“ popisuje Vomastek.
Kvůli relativně malému pozemku se architekti rozhodli vytvořit kromě hlavní zahrady ještě jednu menší – a to přímo na střeše domu. Tato terasa slouží k relaxaci obyvatel druhého patra vily, dětem investorů. Střešní zahradu projektovali zahradní architekti z ateliéru Flera, jejichž práce jsou dobře známy po celé republice i v zahraničí.
Součástí hlavní zahrady je pak domek u bazénu, který sloužík posezení s návštěvou. „Celkově tento koncept používáme i v jiných realizacích, kde máme nejprve hlavní dům a pak zahradní domek sloužící pro relaxaci nebo pro návštěvy. Díky tomuto domku potom vnímáme dům v jiné perspektivě,“ poukazuje architekt Martin Vomastek. „Nejsme příliš zastánci pergol přistavených ke konstrukci domu. V našich realizacích rovnou myslíme na to, abychom vytvořili prostory, které mohou fungovat celoročně.“ Nedílnou součástí zahradního domku je privátní infrasauna, koupelna a kuchyň.

Pro více světla
Okna a velké prosklené plochy v přízemí opticky zvětšují vnitřní prostory a dodávají dostatek světla celé domácnosti. „U většiny domů, které navrhujeme, kombinujeme skleněné a plné plochy. Neděláme klasické rastry menších oken, ale snažíme se většinou okna družit tak, abychom co nejvíce prosvítili hlavní obytné místnosti, které jsou maximálně propojené se zahradou. V tomto případě je to dolní obývací pokoj, ložnice a pokoj pro hosty a pak horní obývací pokoj, který je okny propojený se střešní zahradou,“ upřesňuje architekt Vomastek.
I když se může zdát, že dům kvůli množství zasklených ploch postrádá stabilitu, opak je pravdou. „V zasklívacích plochách jsou integrované, okem téměř nepostřehnutelné, sloupy z oceli, které nesou betonový strop,“ uvádí na pravou míru architekt Martin Vomastek. Zajímavostí je, že výroba takto velkých prosklených stěn může skýtat mnoho záludností. „S dodavatelskou firmou bylo potřeba se domluvit na výrobě těchto prosklených ploch tak, aby odpovídaly našemu záměru. Chtěli jsme okna od podlahy až ke stropu, bez viditelných profilů, což nebylo z pohledu výroby úplně jednoduché. Naštěstí se to ale podařilo tak, jak jsme si představovali.“

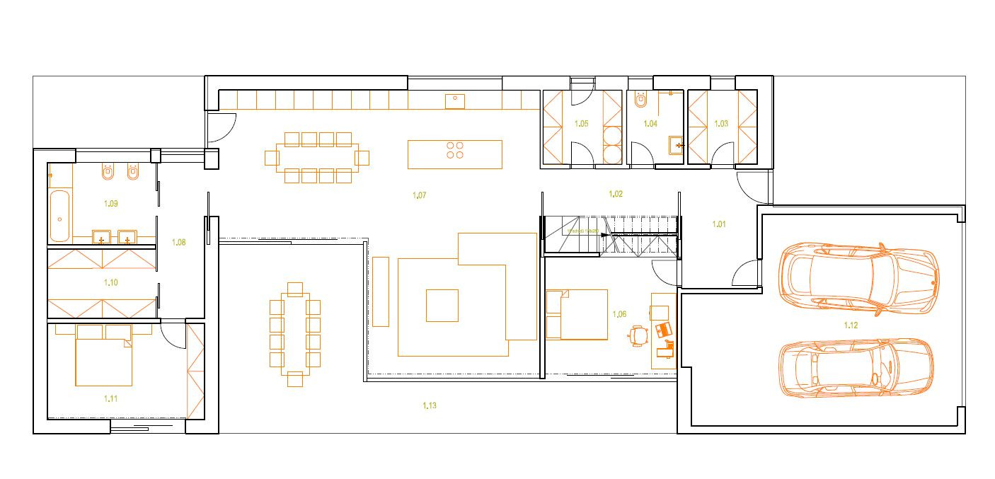
Na dostatek prostoru pro investory bylo myšleno i z hlediska uspořádání jednotlivých místností. Spodní patro skýtá hned několik možností. Návštěvy se mohou ubytovat v pokoji ušitém na míru přímo pro ně, majitelé vlastní ložnici se šatnou a koupelnou. Společný čas mohou trávit buď uvnitř v obývacím pokoji anebo na venkovním posezení hned za prosklenou plochou, ale stále pod střechou domu. Moderní minimalistická kuchyně s jídelnou je součástí místnosti s obývacími prostorami.
Druhé patro vily s terasou je věnováno výhradně dospívajícím dětem, kdy každé z obou dětí má vlastní ložnici se šatnou a koupelnou. Společné chvilky mohou sdílet v horním moderně zařízeném obývacím pokoji anebo na střešní zahradě, která je jeho určitým rozšířením.

Maximální minimalismus
Celkovou atmosféru obou pater udávají všudypřítomné čisté linie, zabudované skříně, vzdušnost a světlost prostoru. Bílé stěny lehce kontrastují s klikami v šedém provedení a detaily ve světlém dubu. Kliky architekti použili od firmy M&T, konkrétně z kolekce MINIMAL. „Kliky MINIMAL jsou příjemné v tom, že jsou prostě minimální. Hlavní výhoda kliky tkví v její osobitosti, pohledové zvláštnosti a odlišnosti od jiných. Vždycky se snažíme, aby byl jeden typ kování pokud možno všude, tedy na dveřích, oknech a HS portálech, což právě MINIMAL díky komplexnosti této řady umožňuje,“ objasňuje architekt.
„Kliky MINIMAL plně vyhovují požadavkům minimalistického interiéru. Jejich výjimečnost spočívá především v synergii a variabilitě, kterou nabízí. Jde o ucelenou kolekci, ve které lze najít ve stejném designu a mnoha barevných a materiálových variantách produkty pro všechny typy oken a dveří,“ popisuje Roman Ulich, hlavní designér společnosti M&T, jediného českého výrobce designového dveřního a okenního kování.

Byť to nemusí být na první pohled patrné, v této stavbě hrály hlavní roli drobné detaily, které do sebe musely zapadnout. „Cesta byla náročná, ale díky vynikající spolupráci a komunikaci s investory se nám podařilo vilu vystavět do dnešní podoby. Snažili jsme se maximálně splnit jejich požadavky a oni byli zase naopak otevřeni našim nápadům, došlo tak k příjemné spolupráci završené povedenou realizací,“ uzavírá Martin Vomastek.

- Ateliér: LABOR13
- Země: Česká republika
- Město: Praha 15 - Petrovice
- Datum projektu: 2014
- Realizace: 2017
- Užitná plocha: 346.00m2
- Zastavěná plocha: 269.00m2
- Návrh střešní zahrady: Flera