Z historického domku v centru Vídně vznikl přestavbou víkendový dům o jednom pokoji
Malé architektonické studio Smartvoll získalo před pár lety od soukromého klienta krásný, ale náročný úkol: přestavět více než sto let starý domek v kulturním centru Vídně na víkendovou rezidenci splňující dnešní komfort bydlení. Architekti z malého prostoru vytvořili jeden otevřený prostor, který těží ze svého propojení s venkovním prostředím.
EARCH.CZ , 5. 10. 2019
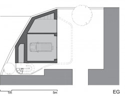
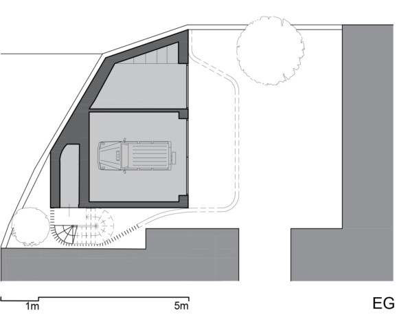
Rekonstruovaná stavba se nachází v kulturně exponované části Vídně MuseumsQuartier, kde se současná architektura mísí s historickými budovami. Malá strohá stavba původně sloužila jako domek kočího. Kromě bydlení proto musela zajistit také například skladování potravy pro koně i příslušného vybavení. Samotný obytný prostor kočího se pak dále dělil podle potřeb na menší části sloužící ke stravování, hygieně a spaní.
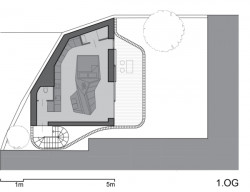
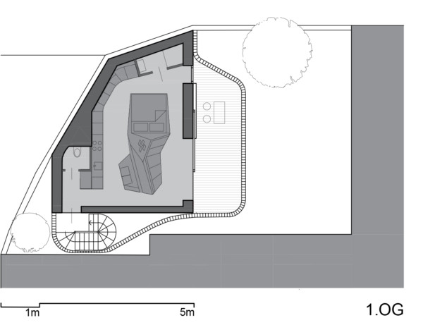
Tento princip vídeňské studio Smartvoll ve svém konceptu přestavby domu doslova obrátilo naruby. Vedly jej k tomu především velmi skromné rozměry jednopatrového domu. Přízemí domu využili architekti jako garáž a technické zázemí, v patře pak navrhli jeden otevřený prostor, který v sobě kombinuje ložnici, kuchyň s jídelnou i obývák. Za obvodovou stěnou obsahující vestavěné skříně se pak nachází malá toaleta s koupelnou a samostatný sklad. Ve středu místnosti stojí multifunkční na míru navržený kus nábytku, který v sobě integruje stůl, pohovku i postel a zároveň tak určuje i jednotlivé funkční zóny. Nad ním se pak nachází dálkově ovládaný světlík CVP od společnosti VELUX, který přivádí do místnosti sluneční světlo a zároveň zajišťuje také provětrání celého prostoru.
Více k tématu

Vzhledem k velmi omezené ploše obytného prostoru o velikosti 35 metrů čtverečních se architekti rozhodli byt podstatně navýšit o venkovní prostory v podobě balkonu a střešní terasy. Celé patro po obvodu objímá plášť z bílých lamel, které odcloňují zvídavé pohledy kolemjdoucích v rušné části města a zároveň scelují celou hmotu domu včetně točitého schodiště vedoucího na střechu do jednoho kompaktního celku. Lamely lze navíc v průčelí s balkonem rozevřít podobně jako závěsy a tím otevřít interiér do romantického nádvoří se stromem.
