Olgoj Chorchoj postavili hybrid mezi vilou a bytovým domem
Reprezentativní vila mezi ambasádami v rezidenční čtvrti pražské Bubenče zapadá do okolní zástavby více, než by se dalo čekat. Okolní vily zahradního města vznikly na přelomu 19. a 20. století. Stavby tak dělí více než sto let, přesto je spojuje velkorysost, smysl pro detail a honosnost. Novostavba se mimo jiné snažila najít i odpověď na otázky soudobé reprezentativní architektury.
Tomáš Kodet , 26. 3. 2018
Řešený lichoběžníkový pozemek je mírně svažitý, nachází se na rohu ulic Romaina Rollanda a V Tišině. Přístup na pozemek je z jeho delší strany na severu. Dříve se na parcele nacházel menší stavební objekt, rodinný dům s nízkou valbovou střechou. Jeho demolice se obhajuje neodpovídající hmotou k okolním vilám a neadekvátním architektonicko-stavebním ztvárněním.
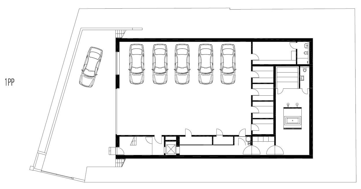
Novostavba se svému okolí chtěla více přiblížit. Koeficient zastavěnosti pozemku odpovídá průměru dané lokality, výškově hřebeny okolních domů nepřekračuje. Rezidence je umístěna na severovýchodní části pozemku, zahrada na jihozápad zůstává volná a je zajištěna dostatečná míra oslunění a proslunění obytných místností. Vjezd je situován v nejnižším části svahu, rampa pro auta vede do polozapuštěného suterénu s pěti parkovacími místy, technickým zázemím a saunou.
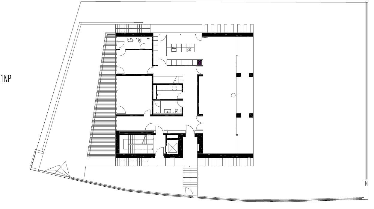
Pro přízemí jsou důležité velkorysé prostory obytné místnosti, návaznost na zahradu a krytý prostor mezi vnitřním a vnějším prostředím. Dále je zde umístěna kuchyň, pokoj s příslušenstvím pro chůvu, pokoj pro hosty s vlastní terasou a příslušné zázemí, jako je šatna, koupelna a prádelna.
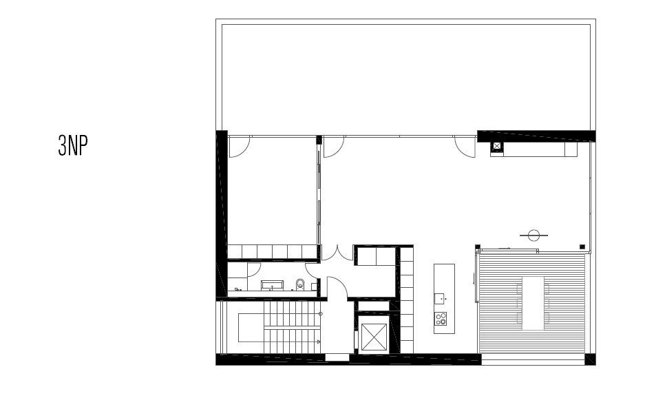
První patro je koncipováno jako ložnicová část, každá z nich má stejný standard: koupelnu, šatnu a terasu. Třetí podlaží je na jih odstoupené a může fungovat i jako ateliér se samostatným vstupem.
Jakousi „exkluzivitu“ si vila nechává převážně pro sebe, kolemjdoucí si všimne velkoplošného obkladu z kamene Onsernone včetně děrovaného detailu prosvětlující schodiště a některé koupelny. Výsledkem je homogenní kubický objem na čtvercovém půdorysu, který si od okolí zachová odstup. Využívá základní kompaktní hmoty, kterou rozbíjí lodžiemi a ustupujícím podlažím.
- Ateliér: Olgoj Chorchoj
- Autoři: Štěpán Abt, Kateřina Hroncová, Michal Froněk
- Spolupráce: Jan Němeček
- Země: Česká republika
- Stavebník: Systemtronic-real s.r.o.
- Město: Praha 6 - Bubeneč
- Ulice, číslo: Romaina Rollanda
- PSČ: 16000
- Realizace: 2016
- Užitná plocha: 1 068.00m2
- Zastavěná plocha: 265.00m2
- Plocha pozemku: 922.00m2



