Architektura
/
rodinné domy
Vila v Černošicích od studia Olgoj Chorchoj upoutává rezavou fasádou
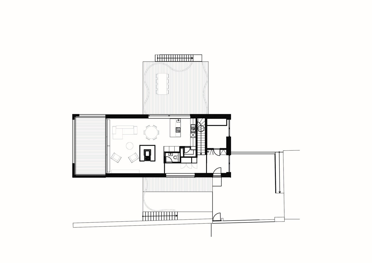
Studio Olgoj Chorchoj postavilo v roce 2011 výrazný dům ve svahu v Černošicích. Dům upoustává především nápadnou fasádou ze zkorodovaných ocelových plechů a levitující hmotou, kterou nadnášejí subtilní pilíře. Vilu architekti původně navrhli jen pro rekreační využívání, majitelé se do ní však později nastěhovali natrvalo.
Olgoj Chorchoj studio , 16. 5. 2018
- Autoři: Jan Němeček, Michal Froněk, Ondřej Kopečný
- Ateliér: Olgoj Chorchoj studio
- Spolupráce: Ondřej Kopečný
- Země: Česká republika
- Realizace: 2011
- Město: Černošice - Vráž
- Realizace: 2011