Ze svahu v šumavském pohraničí vyrůstá dvojice dřevěných domů od studia A.LT
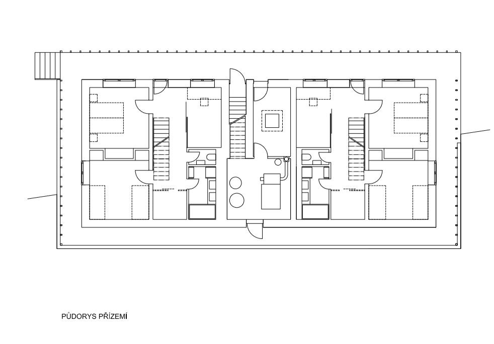
Studio A.LT Architekti umístilo do svahu v šumavském pohraničí dva totožné domy sloužící rodinnému bydlení a pronájmu k rekreačním účelům. Strmé klesání pozemku využili architekti ve svůj prospěch a navrhli objektům samostatné přístupy z obou podlaží vedoucí přímo na terén. Ze stran nepřiléhajících ke svahu obklopuje domy velkorysé podloubí s rastrem z modřínových trámků, které vytváří jemný přechod mezi interiérem a exteriérem. Návrh podléhal schválení CHKO Šumava, vzhledem k tradičnímu pojetí staveb však nenastal žádný problém.
A.LT Architekti , 1. 11. 2018
- Autoři: Peter Lacko, Filip Tittelbach, Tereza Schneiderová, Markéta Burešová
- Ateliér: A.LT Architekti
- Země: Česká republika
- Realizace: 2012
- Zodpovědný projektant: Radek Muller
- Město: Nové Městečko
- Realizace: 2012