Rekonstrukce funkcionalistického transatlantiku Mace Friče
Po celé republice najdeme mnoho slavných modernistických vil významných majitelů, kteří jejich výstavbou pověřili nejlepší architekty své doby. Mezi ně patří i rodinný dům nejpopulárnějšího režiséra meziválečného období Mace Friče od architekta Ladislava Žáka. Původní charakter mu roku 2004 vrátila příkladná rekonstrukce ateliéru Nacházel architekti.
Matěj Beránek , 26. 5. 2017
Po architektovi Ladislavu Žákovi (1900-1973) zůstalo v Praze celkem šest funkcionalistických vil – kromě domů ve výstavní kolonii Svazu československého díla Baba mezi ně patří také dvojice realizací pro nejslavnější filmové představitele první republiky. V polovině třicátých let vznikla reprezentativní vila režiséra Martina „Mace“ Friče, na základě které poté oslovila architekta stavby Žáka také herečka Lída Baarová. Pro ni Žák navrhl vilu na Hanspaulce, která byla postavena v letech 1937-1938.
Projekt vlastního rodinného domu zadal Frič Žákovi po svém sňatku s producentkou Suzanne Marwille. Během období mezi lety 1934 a 1935, kdy byla vila ve výstavbě, Frič zároveň vytvořil několik slavných snímků, na nichž pracoval například i s duem Voskovec Werich a Václavem Wassermanem.
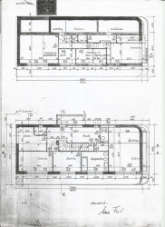
Pro budovu na vyvýšeném strmém pozemku v pražských Hodkovičkách se stala charakteristická především dynamicky tvarovaná zaoblená nároží, která dynamizují její celkovou funkcionalistickou tvář. Třípodlažní transatlantik od Ladislava Žáka, žáka Josefa Gočára, ve kterém se během třicátých let scházela prvorepubliková smetánka, byl navíc vybaven autorským nábytkem architekta Josefa Hesouna.
V přízemí domu se nacházejí ložnice, první patro souží obytnému prostoru s terasou. Až do devadesátých let užívala vilu v nezměněné podobě Fričova dcera, na začátku nultých let byl objekt na prodej. Mezi lety 2003 a 2004 zároveň proběhla její velmi citlivá rekonstrukce, během které se její autoři ze studia Nacházel architekti za spolupráce Juliany Chlumské zaměřili především na její adaptaci pro současné potřeby čtyřčlenné rodiny a na repasi původních prvků interiéru, přičemž stávající dispozice domu zůstaly nezměněny.
Více k tématu
- Autoři: Petr Nacházel, Zuzana Nacházelová
- Ateliér: Nacházel architekti
- Spolupráce: Juliana Chlumská
- Země: Česká republika
- Realizace: 2004
- Město: Praha 4 - Hodkovičky
- Realizace: 2004