Zámek pro 21. století. Dům za Prahou inspirovaný renesančními vilami získal mezinárodní cenu BMIAA
Dům se čtyřmi křídly a garáží na střeše – možná překvapí, má však jasnou logiku. Porota mezinárodní ceny BigMat International Architecture Award ocenila na téhle vile právě „nečekané prostorové souvislosti“.
EARCH.CZ , 7. 2. 2024
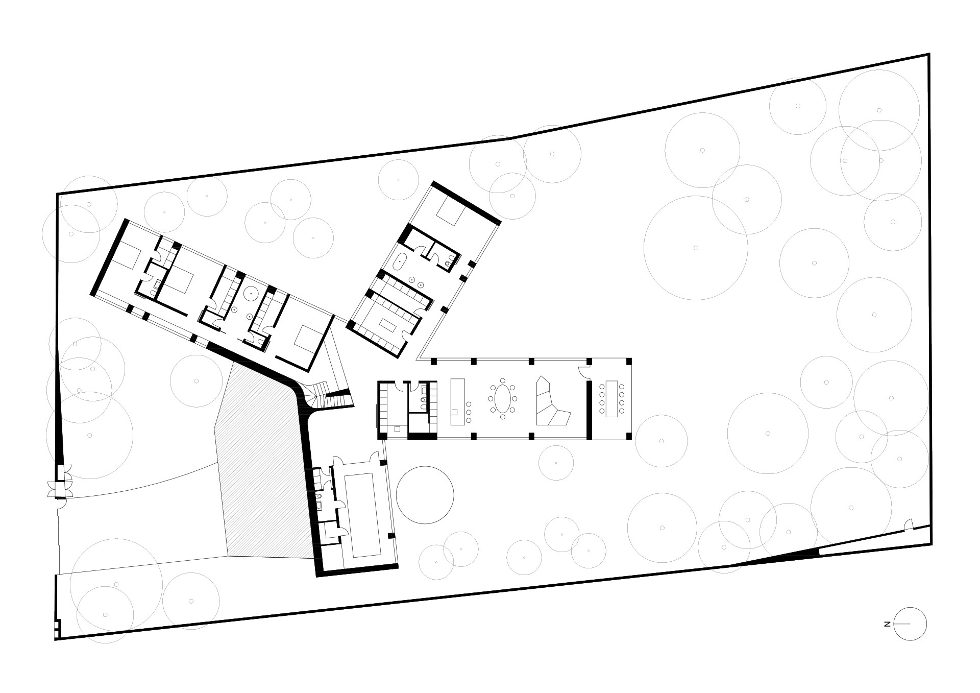
Když si rodina začala plánovat stavbu domu, nejvíce jim šlo o kontakt se zahradou. Z toho požadavku se pak odvíjela celá koncepce vily. Má čtyři křídla a zahrada proniká mezi ně – je na ni možné vyjít z obývacího pokoje, z ložnice i z koupelny.
Více k tématu
„Vyšli jsme z logiky křídlových dispozic renesančních a barokních vil. V přízemí jsou čtyři samostatná křídla, směřující do hlavní schodišťové haly,“ vysvětlují architekti Zuzana a Petr Nacházelovi. Křídla jsou rozdělená podle funkcí: kuchyně a obývací pokoj, dětské pokoje, ložnice a krytý bazén. Charakter přiléhající části zahrady tomu odpovídá: „Vstupní zahrada a hlavní společenská zahrada domu jsou osázeny stromy a postupem času se promění v park. Soukromé zahrady jsou naopak řešeny jako uzavřené atriové,“ popisují architekti.
Aby se plocha zahrady zvětšila, je garáž umístěná na střeše domu. Zemina vytěžená při stavbě se využila jako příjezdová cesta, zemní val dům také ze severu stíní a udržuje stabilní teplotu.
I uvnitř vila těží z koncepce rozvětvených částí: „Pokoje v každém křídle jsou propojeny jedinou chodbou, která poskytuje průhled celým souborem místností,“ vysvětlují architekti. Chodbu však lze také předělit otočnými panely. Materiály jsou střídmé, ale ušlechtilé: pískovaný beton působí jako kámen, litý beton a teraco na podlahách, dýha, v koupelnách onyx. Dohromady neustále se měnící hra světla, barev a obrazů. I důrazem na krásu vnitřního prostoru připomíná tahle vila šlechtické sídlo.
Za práci s prostorem uvnitř i vně získali Zuzana a Petr Nacházelovi ze studia Nacházel architekti loni na konci roku cenu BigMat International Architecture Award, pro kterou si dojeli do španělské Sevilly.
Mezinárodní porota ocenila „jednoduchý a jasný výraz domu“, celkovou kompozici s garáží „v superpozici nad obytným podlažím“ i to, jak dům „dokáže opticky potlačit svůj značný objem a splyne se zahradou,“ píše se v jejím hodnocení.
Soutěž pořádá firma Big Mat, což je síť prodejců stavebnin, která oceňuje stavby ze zemí, kde působí – v Česku, na Slovensku, v Belgii, Itálii a Francii. I když cenu pořádá a sponzoruje firma se stavebninami, v porotě zasedají respektovaní architekti a vybrali stavby na vysoké úrovni: za Česko byla oceněná ještě galerie Plato, na Slovensku ubytování v Jelšavě a vila od ateliéru ksa. plus další pozoruhodné stavby z ostatních zemí. Nyní jsou otevřeny přihlášky do dalšího ročníku.
- Autoři: Zuzana Nacházelová, Petr Nacházel
- Ateliér: Nacházel architekti
- Země: Česká republika
- Realizace: 2022
- Projekt: 2017
- Užitná plocha: 648 m²
- Projekt: 2017
- Realizace: 2022
- Fotograf: Petr Nacházel