Zničený klasicistní dům v Londýně nahradila „nedokonalá replika“ odlitá z betonu
Nárožní dům v londýnské čtvrti Islington, který byl zničen během bombardování za druhé světové války, nahradilo místní studio GROUPWORK jeho „nedokonalou replikou“. Kopii původní neoklasicistní fasády architekti částečně zjednodušili a rozbili několika záměrnými chybami, což z novostavby vytvořilo hravý objekt, který novým způsobem kombinuje současnost s historickým dědictvím.
Tereza Hůrská , 7. 10. 2019
Islington – rezidenční čtvrť centrálního Londýna – se rozkládá na rozloze bezmála patnácti kilometrů čtverečních přibližně tři kilometry severně od koryta Temže. Stejně jako mnoho dalších míst britské metropole, ani jej neminula zkáza v podobě bombardování během 2. světové války. Nálety poničily více než tři tisíce bytů a způsobily tak rozsáhlé škody v místním bytovém fondu. Řada bloků byla poškozena a následně částečně zdemolována a své opravy se domy dočkaly až o desítky let později.
Příkladem takového bloku byl také soubor domů lemujících nákupní třídu Upper Street – jednu z rušných tepen protínajících Islington. Prázdnou parcelu po zničeném severním rohu místního bloku zakoupila v roce 2012 místní nábytkářská firma Aria, s cílem znovu scelit blok a umístit do prostor nového objektu svůj showroom. Na řešení novostavby, jež by doplnila jinak zachovalý komplex domů z konce 19. století, společnost vyhlásila architektonickou soutěž, v níž zvítězil návrh londýnského studia GROUPWORK.
Více k tématu

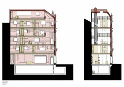
Tým vedený berlínským architektem Aminem Tahou přišel s odvážným návrhem. Po důkladném nastudování historických pramenů, dobových fotografií i laserových průzkumů nárožního objektu architekti vytvořili virtuální model, jenž svým řešením odpovídal původní, neoklasicistní stavbě. Římsy, zdobené pilastry i slepé balustrády – bohatý dekor, jímž se budovy konce 19. století vyznačovaly, převzalo GROUPWORK do svého projektu s úmyslem artikulovat jej jazykem současné architektury.
Výsledná podoba domu ovšem nepředstavuje věrnou kopii zničeného objektu. Prvky fasády na sebe místy přesně nenavazují, některé z jejich částí dokonce zcela chybí, současné okenní otvory dokonce naprosto nerespektují původní pravidelné rozložení. Jako by se snad někde stala chyba. „Naše vzpomínky nejsou dokonalé, upravujeme si je tak, aby vyhovovaly našim potřebám v současnosti,“ vysvětlují koncept svého projektu GROUPWORK „stejně tak, jak chybně si vybavujeme minulost, jsou chybné i příběhy, které z ní vytváříme.“ Chyb, které z projektu 168 Upper Street činí nedokonalou repliku své předlohy, se tak architekti dopustili úmyslně. Tyto záměrné vady však výslednému objekt nejsou na škodu, právě naopak – místo fádní kopie architekti vytvořili hravé, ale stále majestátně působící dílo, které nutí k diskuzi nad vhodností a možnostmi používání architektonických stylů.

Čím se ale projekt londýnského studia liší od původního, je jeho materiálové provedení. Celá konstrukce je řešena jako betonový monolit s jednolitým terakotovým zbarvením. Zmiňovaný 3D model architekti rozdělili na 300 tvarově odlišných panelů, sloužících jako předloha pro bezmála 450 metrů čtverečních polystyrenovového bednění. Jednotlivé polystyrenové formy byly následně, již s úmyslnými chybami, sestaveny na staveništi a vyplněny betonem. Vznikla tak půl metru silná konstrukce obsahující veškeré zdobné prvky fasád. Betonovou skořápku doplnily vodorovné konstrukce podlah z laminátových dřevěných CLT panelů.
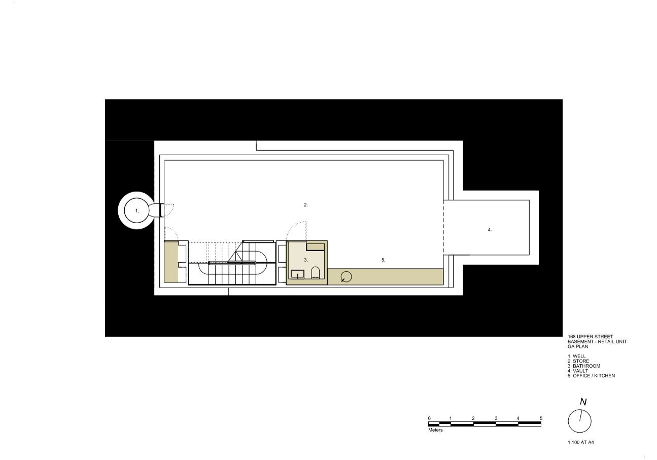
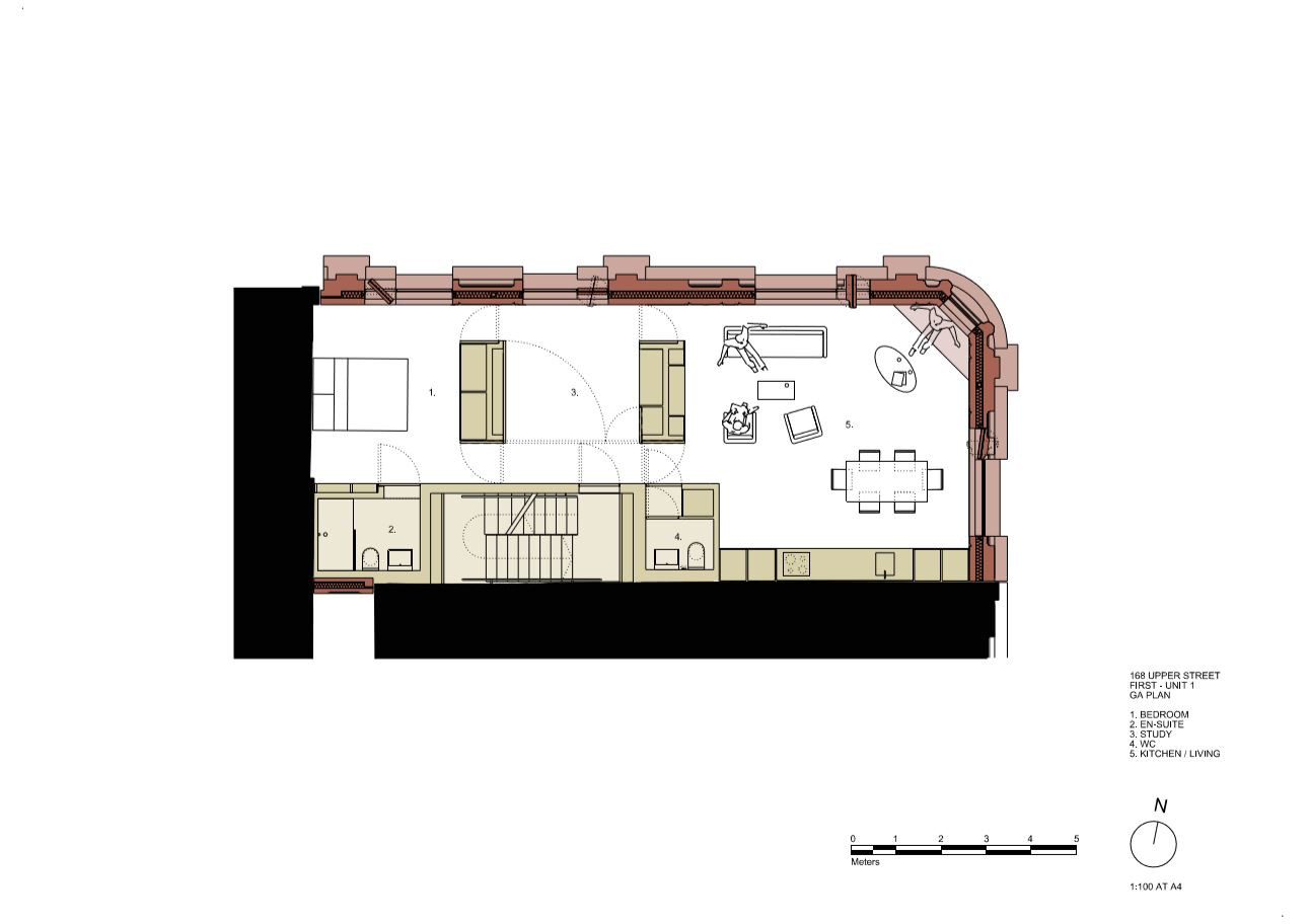
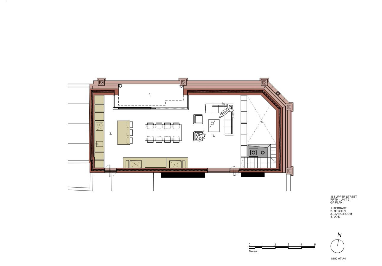
Bohatá zdobnost fasád odkazující k neoklasicistní architektuře stojí trochu v kontrastu s jednoduchým řešením vnitřní dispozice. Tu totiž architekti nechali maximálně otevřenou, místy předělenou pouze vloženými boxy nábytku či kuchyně, které však nedosahují ani výšky podlaží. Prostory se tak mohou flexibilně přizpůsobit potřebám budoucích uživatelů. Přízemí objektu je navrženo jako showroom nábytkářské firmy Aria, horní tři patra pak slouží jako byty.

Tento článek vznikl za podpory společnosti Českomoravský beton v rámci popularizace tématu "Beton v architektuře".
Českomoravský beton, a. s., je holdingovou společností, která prostřednictvím vlastních betonáren a dceřiných společností dodává transportbeton v široké škále pevnostních tříd a druhů na území České republiky a Slovenska. Skupina, jejíž vznik spadá do počátku 90. let minulého století, v současné době provozuje 85 nově postavených nebo zrekonstruovaných betonáren, které mají zavedený systém managementu kvality, systém managementu hospodaření s energií a splňují nejpřísnější ekologická kritéria. Celá skupina – holdingová společnost a její dceřiné společnosti, historicky označované ve svém názvu TBG – vystupuje na trhu ČR pod jednou společnou obchodní značkou Českomoravský beton.
- Ateliér: Amin Taha + Groupwork
- Země: Velká Británie
- Město: Londýn - Islington
- Ulice, číslo: Upper Street
- Realizace: 2017
- Užitná plocha: 545.00m2