Architekti A B.K.P.Š. - Přístavba domu v areálu bývalé cihleny v Čachticích

Prístavba je súčasťou súboru stavieb v mieste bývalej dedinskej tehelne s klenbovou pecou na pálenie tehly. Patrí sem aj dom bývalých majstrov tehliarov, ktorý bol v 90.-tych rokoch radikálne obnovený (upravená replika spustnutého pôvodného domu). Ruina tehliarskej pece bola cca. pred 10 rokmi zachránená a prestavaná na ateliér – letný byt.  

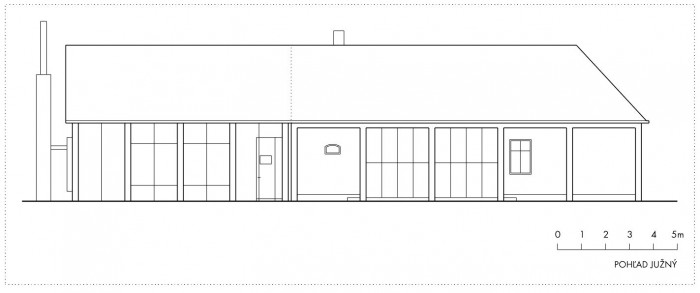
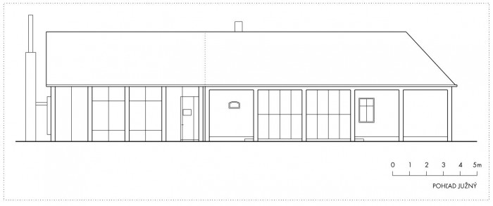
Celý súbor je ponorený v rozsiahlej záhrade na mieste dávnej ťažby tehliarskej hliny. Dom, ku ktorému je prístavba primknutá, je typickej (dnes už zaniknutej) vidieckej siluety gánkového usporiadania a sedlového zastrešenia. Tak, ako vidiecke typy spravidla bývali, je gánkový dom „múdrou“ zostavou – jeho portikus sprevádzajúci hlavný korpus domu je dôležitým a praktickým elementom na rozhraní interiéru a exteriéru. Okrem prirodzenej ochrany tejto frekventovanej zóny takýto gánok (portikus) priaznivo reguluje rôzne režimy letného (vysokého) a zimného (nízkeho) slnka a ich vplyv na masu muriva domu.  

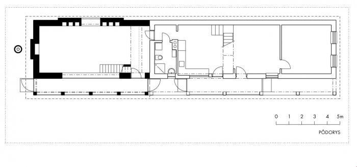
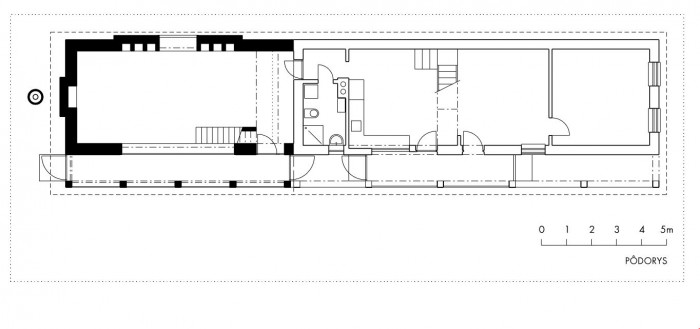
Prístavba k domu je v skutočnosti predĺžením jeho siluety v priečnom reze včítane predĺženia portikusu po celej jej dĺžke. Podriaďuje sa jestvujúcej figúre. Vo vnútri je koncipovaná radikálne rozdielne voči domu, ku ktorému sa pripojila. Je vlastne jediným otvoreným obytným priestorom s vynechaným obvyklým stropom medzi prízemím a podkrovím. Toto prepožičiava neveľkej rozlohe izby veľkorysé priestorové pôsobenie. Konštrukciu krovu je možné čítať v dvoch schémach, ako obvyklú krokvicovú konštrukciu alebo dve šikmo o seba opreté keramicko-oceľové stropné dosky. Použité staré tehly sú všetky so značkami svojho pôvodu – z vyše 2/3 pochádzajú práve z tejto vidieckej manufaktúry, zbytok je z okolitých, dnes už zaniknutých tehelní. Svojím zjavom rozmanitých odtieňov i nepresností, ktoré sú vlastné pôvodnej ručnej výrobe tehly, je takýto krov v skutočnosti bohatým zjavom, pobádajúcim k pozornosti..  

V masívnych murovaných a omietaných stenách sú vsadené okenné otvory – sedacie niky, zapustená murovaná knižnica a krb. V mieste styku s jestvujúcim domom je vsadená spacia empora, prepájajúca tento nový priestor s existujúcim podkrovím. Steny sú omietnuté klasickou vápennou omietkou bez vrchnej maľby. Aj všetky ostatné elementy stavby sú bez ďalšej povrchovej úpravy – betón (podlaha a empora/, betónové tvarovky (stĺpy gánku, teleso komína), oceľ a svetlá preglejka, eternitová krytina. Takto je to akási hotová–nehotová stavba. 

Masívny ťažký krov významne zlepšuje akumulačné vlastnosti obklopujúcich konštrukcií. Eliminuje tepelné výkyvy vetraného vnútra – čo je klasickým problémom obvyklých konštrukcií krovov bez ohľadu na hrúbku ich tepelnej izolácie. Presklenný a uzatvárateľný gánok – portikus po väčšinu roka funguje zároveň ako klimatická medzizóna vonkajška voči vnútornému priestoru.

  • Autoři: Pavol Paňák
  • Země: Slovensko
  • Realizace: 2018
  • Město: Čachtice
  • Datum projektu: 2017
  • Realizace: 2018
  • Zastavěná plocha: 54.00m2
Generální partner
Hlavní partneři