Architekti A B.K.P.Š. - Polyfunkčná budova Konventná

Investorom zrealizovaná architektonická súťaž (kde obsadil náš návrh prvé miesto) preverila, že miera zastavania parcely vo všetkých súťažných návrhoch presvedčuje, že navrhované riešenie pozitívne ovplyvňuje a doplňuje riešené územie, dotvára a sceľuje priestory ulice a dvorov.
Objekt sa do priestoru ulice zapája dodržaním uličnej čiary a vo dvore svetlotechnickým možnostiam priestoru. Hranu rímsy do ulice nebolo možné v celom rozsahu dodržať z dôvodov hygienických noriem svetlotechniky, vyplývajúcich z obytných funkcií priestorov na náprotivnej strane.
Kľúčovou architektonickou otázkou polyfunkčného domu na Konventnej ulici je voľba takých postupov, ktoré na jednej strane reagujú na historizujúci kontext miesta stavby, jeho najbližšieho okolia i priľahlých ulíc a ktoré zároveň jednoznačne identifikujú túto architektúru ako dnešnú, súčastnú.
Neoklasicistné, neorenesančné i eklektické architektúry tohto prostredia vlastnia niekoľko výrazných spoločných čŕt umocnených jednotným vokabulárom architektonických tvaroslovných prvkov. Vysoký rád fasádnych travé pochádzajúci predovšetkým z vtedy obvyklých veľkých konštrukčných podlažných výšok, príbuznú okennú osovú modularitu vertikalizujúcu tieto vedľa seba radené travé , výraznú jednotnú tektonickú horizontálnu osnovu. Táto pozostáva z vrstvenia parteru ako soklovej podnože nesúcu výzdobou akcentovanú zónu 2. a 3. nadzemného podlažia s piano nobile a 4. nadzemné podlažie s doznievajúcou zdobnosťou, ako i pokračovanie na 5., 6., 7. NP v zalomenej streche, ktorej zalomenie a sklon plne rešpektuje a korešponduje s okolitými strechami charakteristickými pre Staré mesto. Sú to všetko architektúry plných plôch stien s otvormi. Tieto otvory (okná) sú podľa tektonickej hierarchie spravidla bohato reliéfne zdobené v zmysle klasicizujúceho kánonu. Túto charakteristickú „bohatosť“ okna sa tento návrh pokúša vyjadriť súčastnými nástrojmi, ktorá smerom na hor abstrahuje.
Bohatá reliéfnosť priečelí je jednotiaco charakteristická pre toto prostredie – účinok tejto plasticity je umocnený tým, že vzhľadom na relatívne úzke ulice sú tieto priečelia vnímané spravidla z ostrých uhlov. Sú to všetko architektúry omietaných povrchov.
Miesto navrhovanej stavby je osobitné tým, že po bokoch susedí s diametrálne odlišnými priečeliami. Sprava je to horespomínaná historizujúca, silne reliéfna architektúra vysokého rádu, zľava bytový dom racionálneho nezdobného charakteru z 50.- 60.tych rokov minulého storočia s úplne bezreliéfnou plochou do ulice a bežných podlažných výšok. Stavebno – technicky ide pritom o solídnu stavbu a dobe vzniku zodpovedajúceho výrazu.
Architektonickou ambíciou navrhovanej dostavby na strane ulice je interpretácia základných tektonických a charakterových čŕt historizujúcich obklopujúcich architektúr bez priamej citácie ich historických slohotvorných elementov – teda výrazovými prvkami dnešnej architektúry a jej vokabuláru.
Je nemenej dôležité sprostredkujúce poslanie architektúry tejto preluky medzi hladkou, nečlánkovanou a „beztektonickou“ architektúrou ľavého suseda a bohato zdobenou plastickou reliéfnosťou a výraznou tektonikou architektúry z pravej strany. Novostavba má byť identicky súčasnou a zároveň akceptovateľným mediátorom medzi prostredím 19. storočia a dneškom.
Samozrejme je charakter architektúry z dvorovej strany prostejší, čo je tiež charakteristické pre obklopujúce jestvujúce stavby. Tu je kladený dôraz na dobré proporcie prevýšených okenných otvorov a plných stien. Podľa možnosti tiež na spoluprítomnosť zelene na strechách.
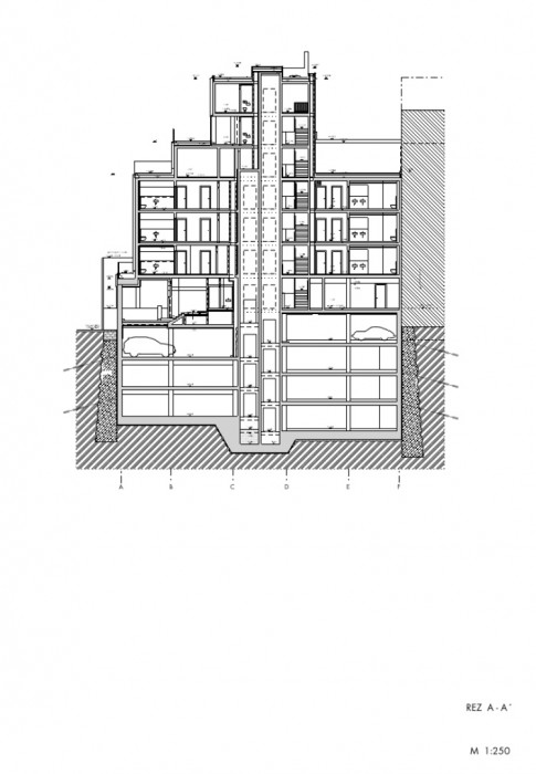
Nadzemný objem navrhovanej zástavby preluky je rozhodujúco určený svetlotechnickými podmienkami, ale aj základnými objemovými danosťami susediacich i náprotivných stavieb. To je zretelné hlavne na cezúre hmoty zo strany Konventnej.
Prevažujúcou materialitou plných plôch sú ušľachtilé omietky, /hladké s prípadným lazúrovaním/. Zámerom je prezentovať takýmto spôsobom celistvosť nového objemu podriaďujúceho sa ovšem uličnému ale aj svetlotechnickému profilu.
- Autoři: Martin Kusý, Pavol Paňák, Martin Kusý (ml.)
- Země: Slovensko
- Město: Bratislava
- Ulice, číslo: Konventná 6
- Datum projektu: 2011
- Realizace: 2020
- Zastavěná plocha: 725.00m2
- Plocha pozemku: 725.00m2
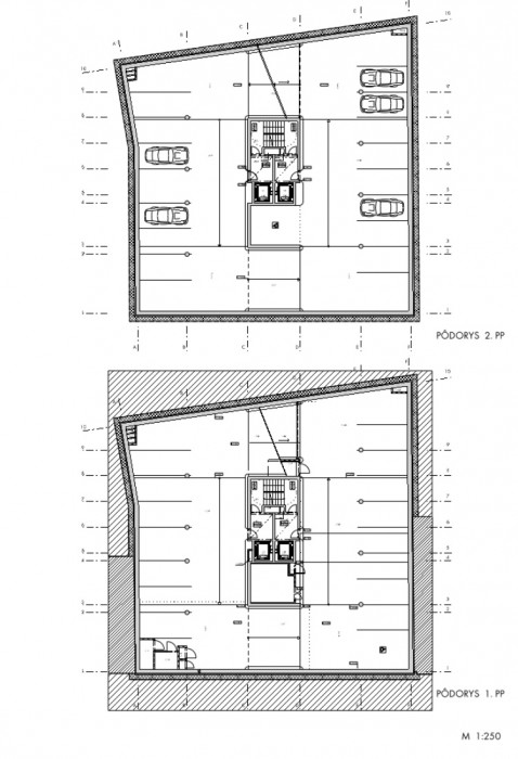
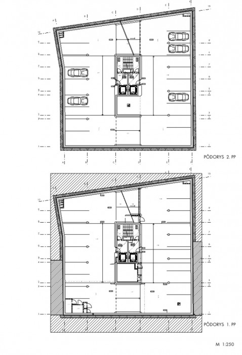
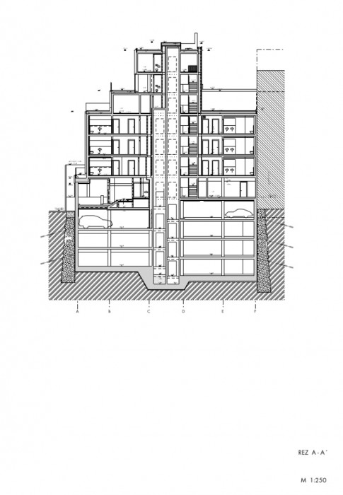
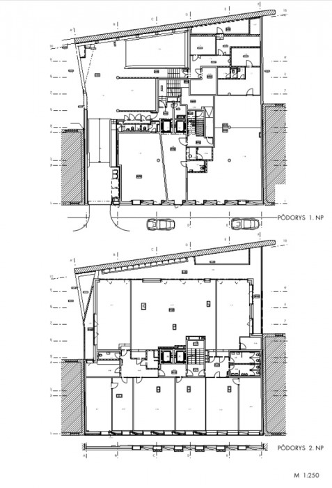
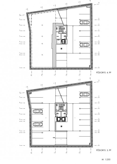
- <p dir="ltr">Počet podzemných podlaží:</p>: 4
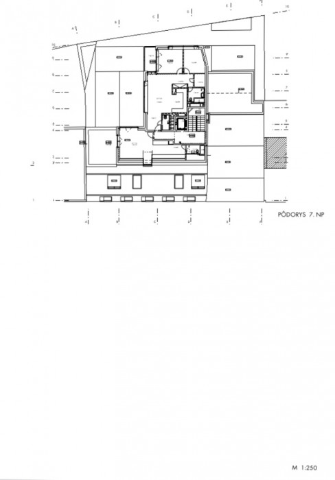
- <p dir="ltr">Počet nadzemných podlaží:</p>: 7
- <p dir="ltr">Úžitková plocha: </p>: 4.PP
Související projekty
Související architekti
Mohlo by vás zajímat

























